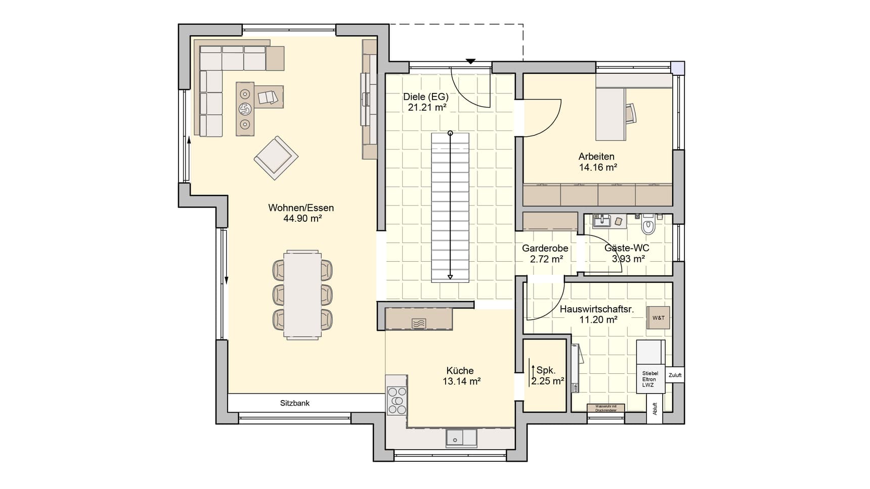
Bauherren genießen hier im wahrsten Sinne alle Freiheiten: Das multifunktionale Grundrisskonzept mit Platz für 5 Schlaf-/Arbeitsräume und zwei Bäder könnte flexibler nicht sein. Wenn die Kinder beispielsweise das Elternhaus verlassen, lassen sich die Räume zu einem Hobbyraum, Gästezimmer, Lesezimmer oder ähnlichem umfunktio¬nieren. Das ist die ganz große Freiheit, denn alles ist individuell gestaltbar – je nach Lebenssituation.


(öffnet Mittwoch um 12:00 Uhr)