Ein Haus für alle Fälle - bis zu 6 Personen können sich in unserem Fingerhut Haus "München" perfekt entfalten. In den lichtdurchfluteten Ess-, Wohn- und Kochbereich mit integrierter Kochinsel gelangt man durch den vorgezogenen Eingangsbereich mit integrierter Überdachung.
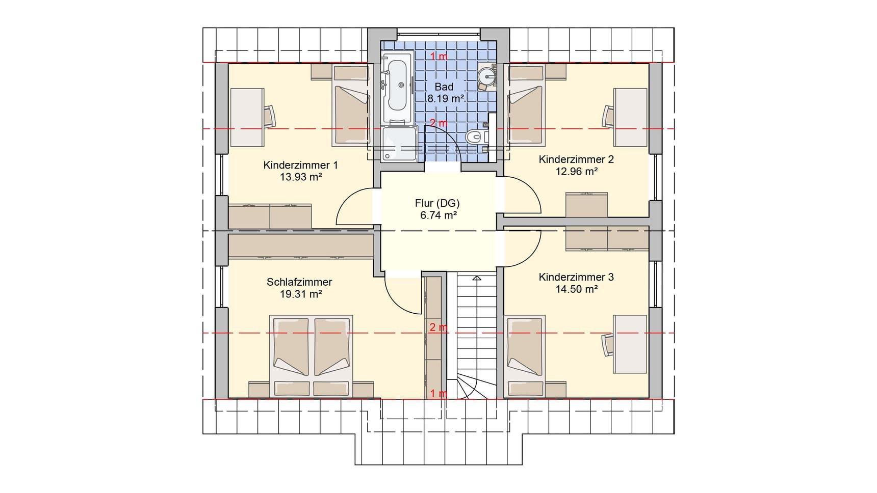
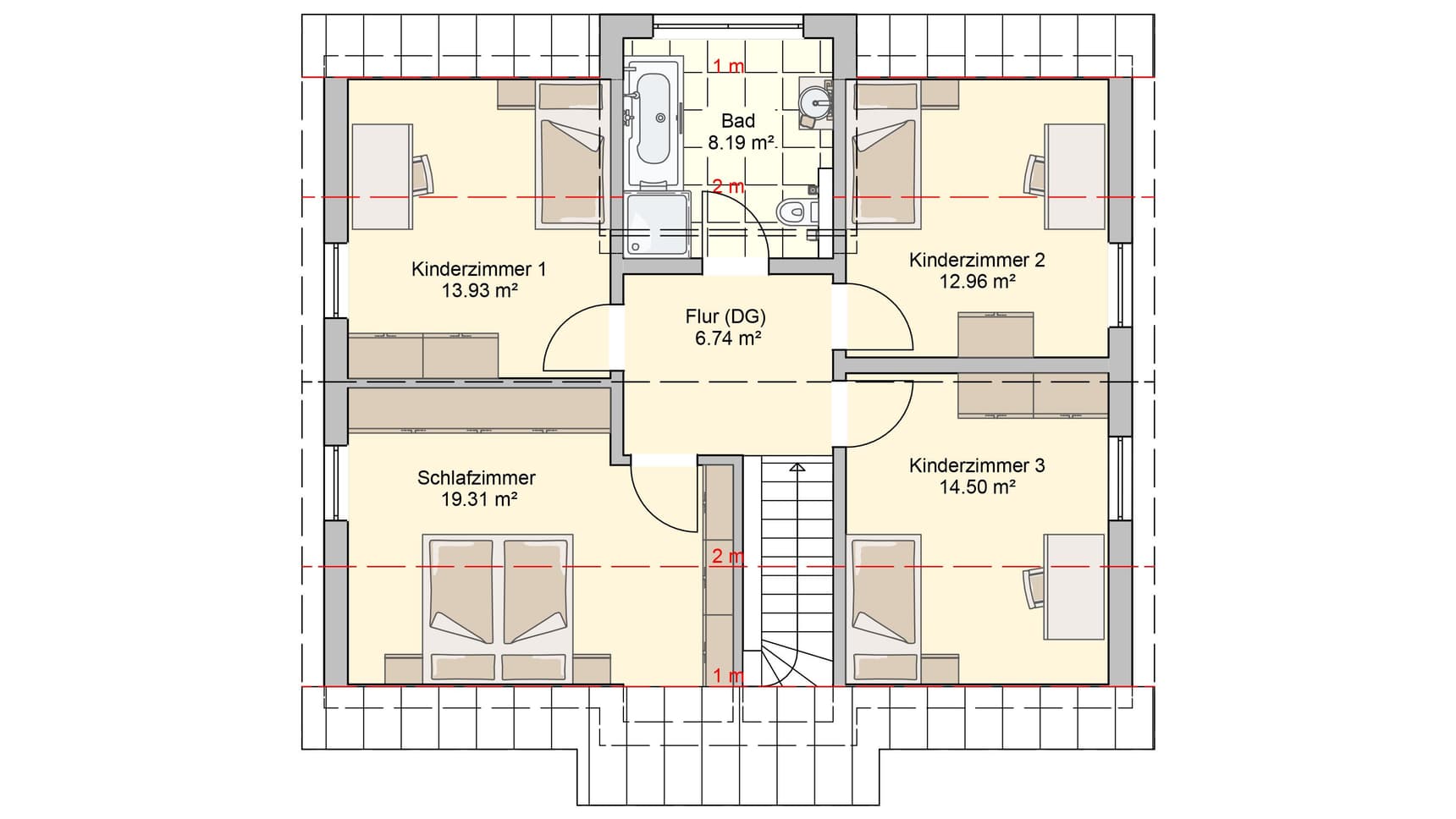
Im Erdgeschoss können Gäste oder Familienmitglieder sich zusätzlich gut zurückziehen. Hierfür wurde extra ein Gästezimmer mit danebenliegendem Gäste-WC eingeplant. Im Dachgeschoss beherbergt neben 3 nahezu gleich großen Räumen, das große Elternschlafzimmer mit anschließender Ankleide. Der dritte Giebel über dem Badezimmer rundet die Großzügigkeit im Dachgeschoss perfekt ab.

