Komfortables Leben auf kleiner Fläche ist mit unserer Stadtvilla Mediol kein Problem. Der Grundriss des Hauses ist genau hierfür ausgelegt und passt perfekt in die Wohnsituation in einer Stadt.
Die Villa hat durch die Geradlinigkeit und die hellen Farben einen unverkennbaren Stil.
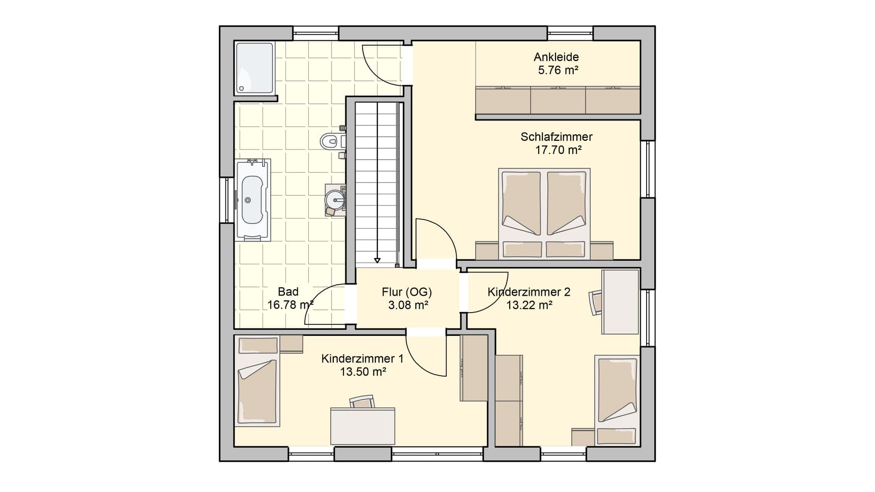
An die große Küche grenzt der Wohn- und Essbereich direkt an, außerdem befinden sich hier der Hauswirtschaftsraum und das Gäste-WC. Das Parterre wird mit einer Treppe mit dem Obergeschoss verbunden. Hier ist neben einem Arbeitszimmer und dem Ankleideraum das Schlafzimmer mit dem angrenzenden Badezimmer. Diese Wohlfühl-Oase kann perfekt durch eine Sauna ergänzt werden.
Im gesamten Haus sorgen die großzügigen Fenster für viel Licht. Komfort und Praktikabilität werden in diesem Hausentwurf auf kleinem Raum kombiniert.

