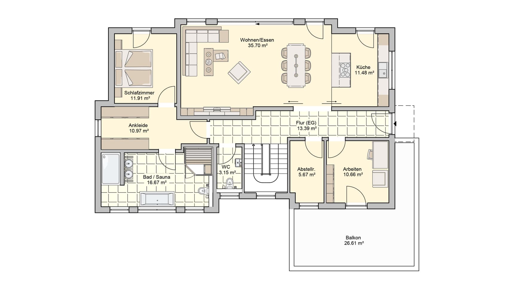
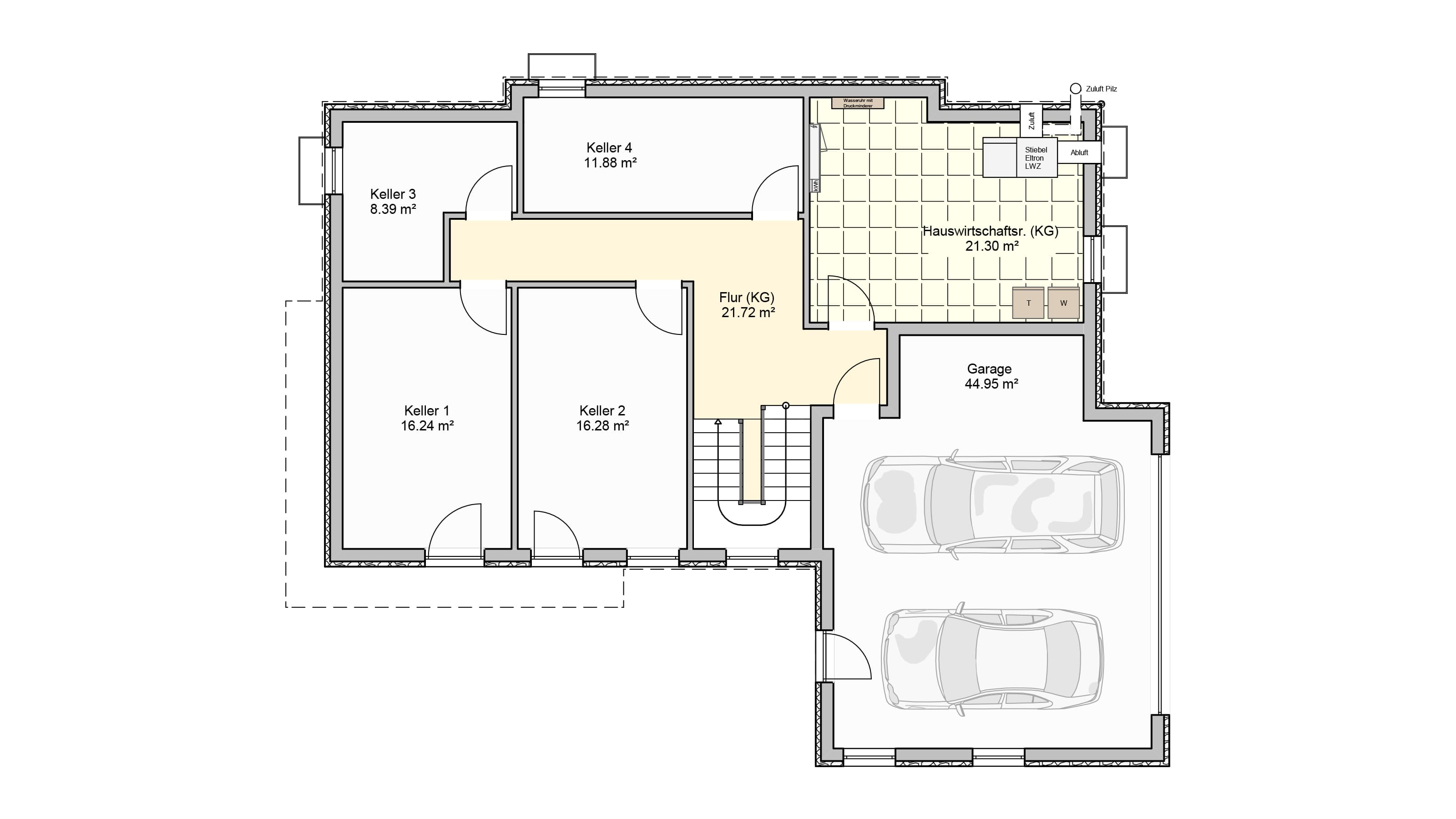
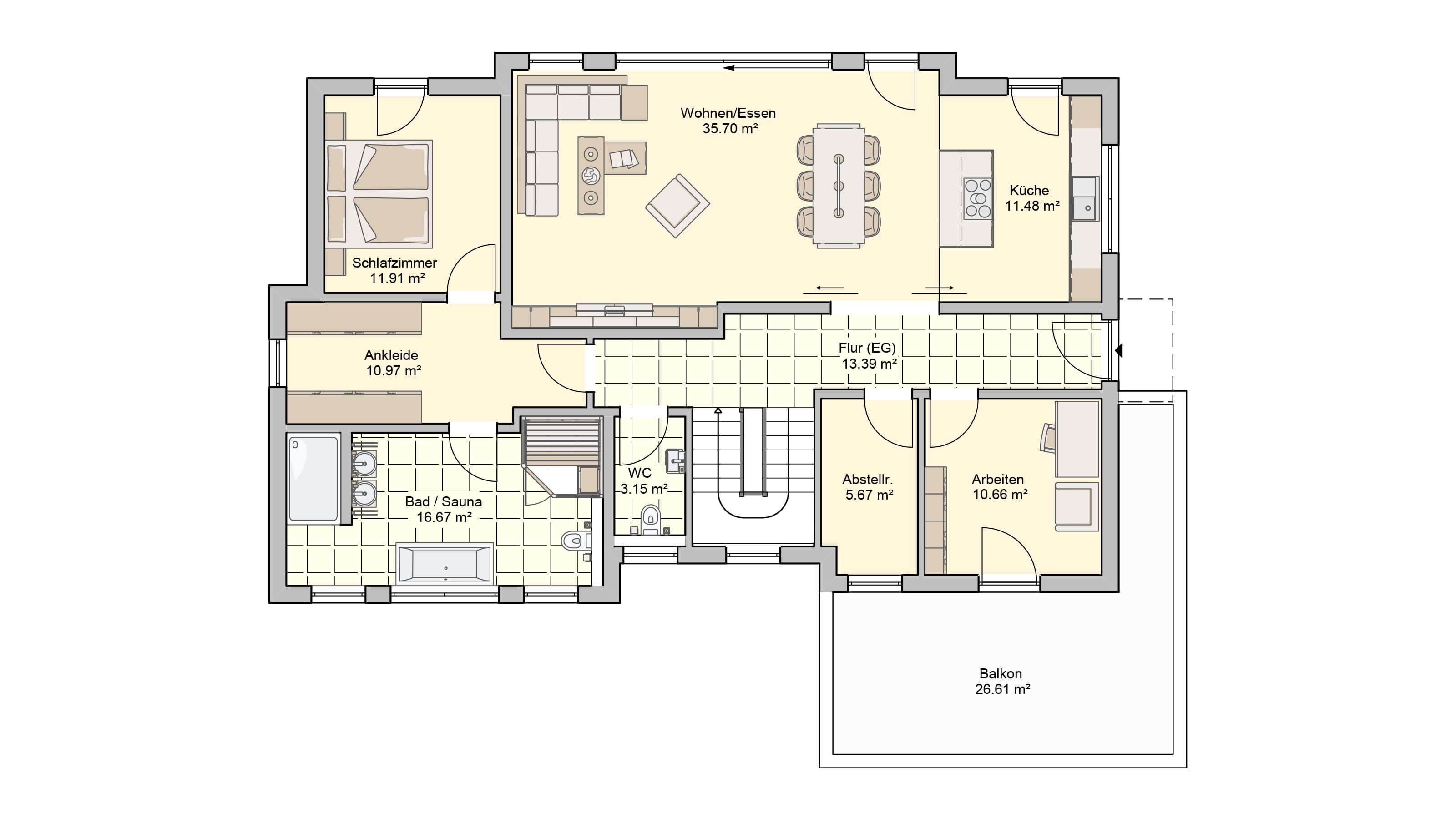
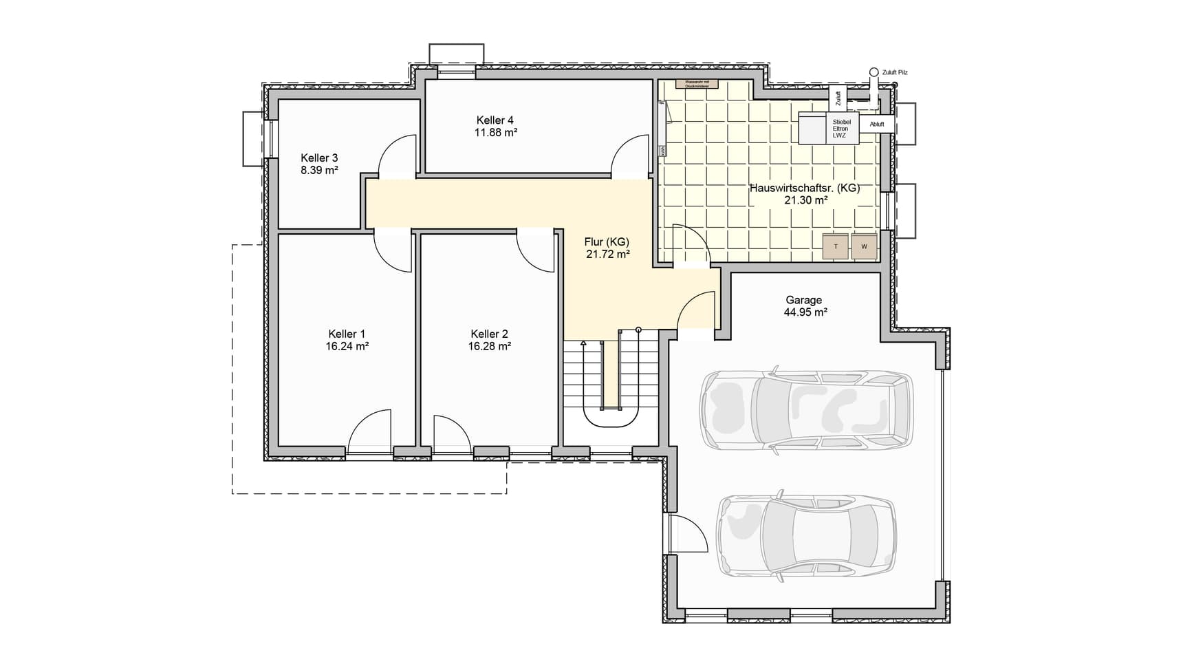
Heute wie vor 100 Jahren ist er das Synonym für Moderne und Purismus: Der Bauhausstil. Er verkörpert für immer mehr Menschen das Ideal der Ästhetik. Dies versinnbildlicht auch der Hausentwurf Malgara. Er transportiert die Tradition in die Neuzeit und interpretiert sie neu. Die Architektur des Objektes, das sich über zwei Etagen erstreckt, besticht mit ihrer klaren modernen Formsprache. Auf knapp 290 m2 ausgebauter Fläche wird Offenheit förmlich kultiviert. Das Haus ist im Interieur prädestiniert für die Schaffung von Gegensätzen: Vintage meets Industrie-Design. Dabei geben bodentiefe Fenster den Blick in die Ferne frei und schaffen eine Verbindung von klaren Oberflächen zur idyllischen Natur.

