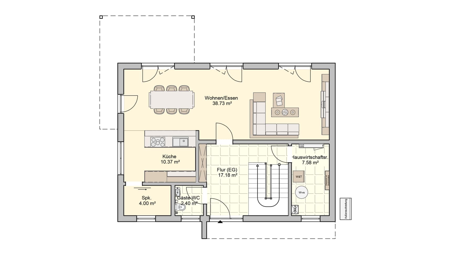
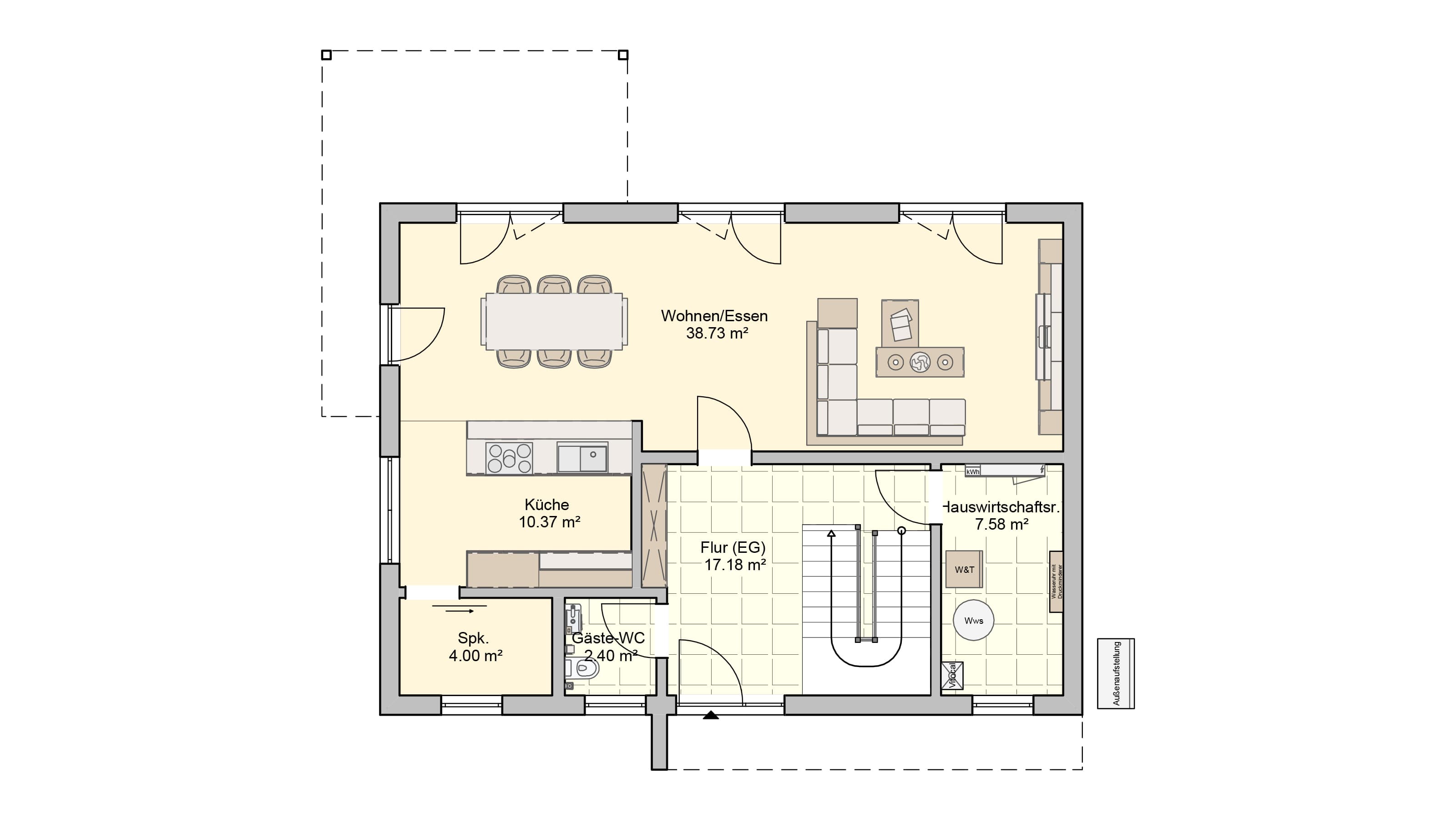
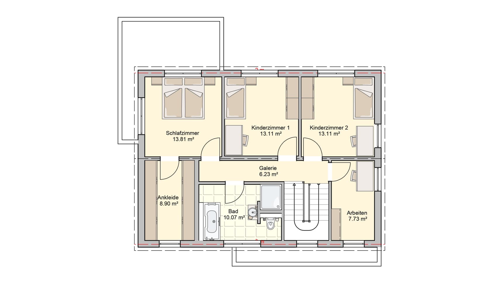
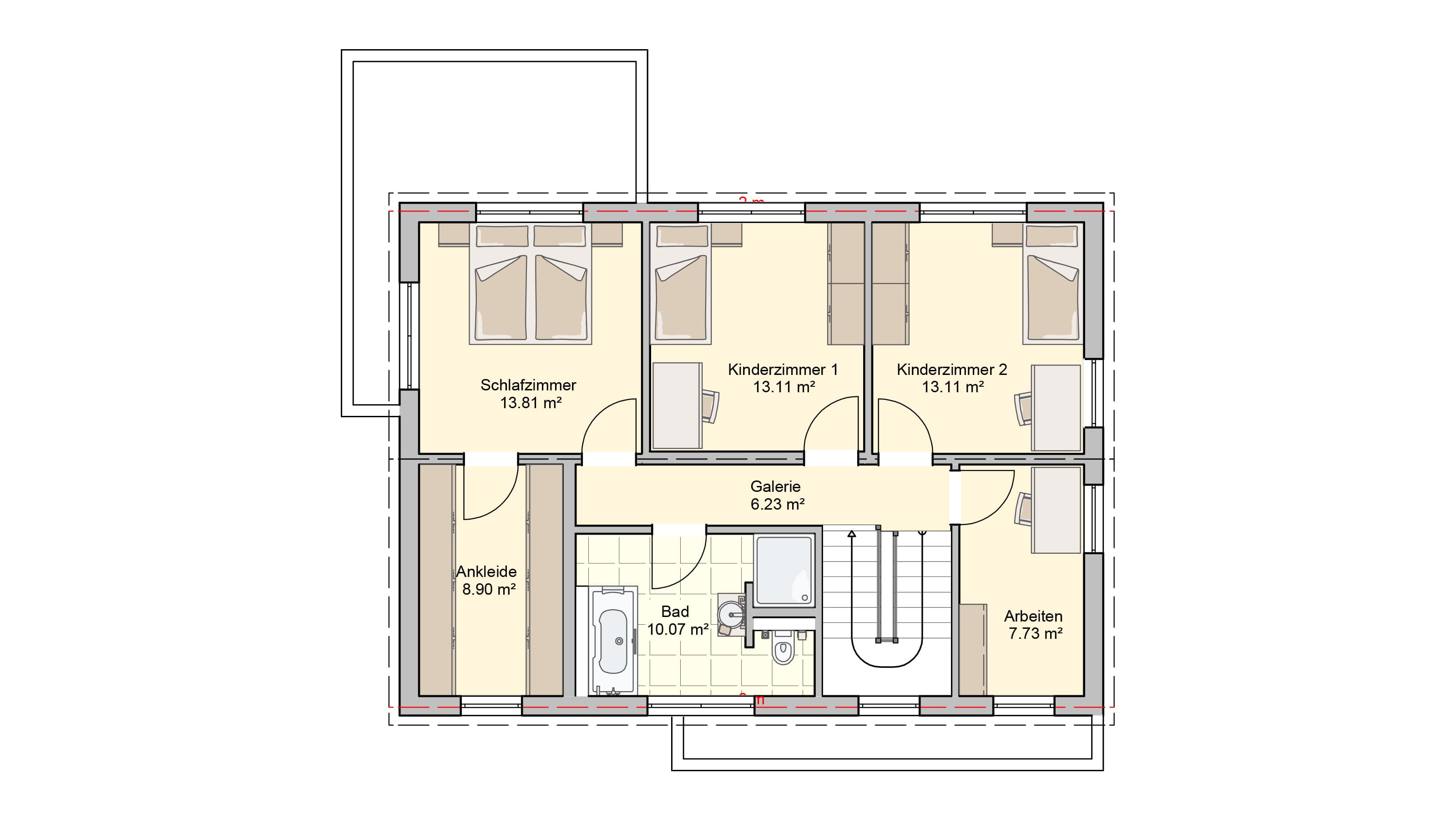
Ein Satteldachhaus, das viel Luft nach oben bietet – dafür steht „Ludema“. Das Objekt mit 153 m2 ausgebauter Fläche besitzt fast Loftcharakter. Denn der Kniestock im Obergeschoss beträgt stolze 2,26 Meter. So entsteht zusätzlicher Raum mit vielen Gestaltungsfreiheiten im Dachgeschoss. Ein Gefühl von Freiheit. Doch nicht nur der Blick nach oben lohnt sich. Hereinspaziert: Als Visitenkarte des Hauses zeigt sich ein imposanter Eingangsbereich mit moderner Treppe als Blickfang. Vom Entree geht es dann zum Beispiel in den lichtdurchfluteten offen gestalteten Wohn- und Essbereich. Hier verstehen sich moderne und warme Elemente besonders gut. Raffinesse, soweit das Auge reicht.
Die gezeigten Abbildungen zeigen zum Teil Sonderleistungen gegen Mehrpreis. Der Preis entspricht der Ausbaustufe "Fast Fertig" inkl. Fingerhut-Bodenplatte und 19 % MwSt. gemäß der Fingerhut-Bau- und Leistungsbeschreibung 1011, Preisliste P12/2022.

