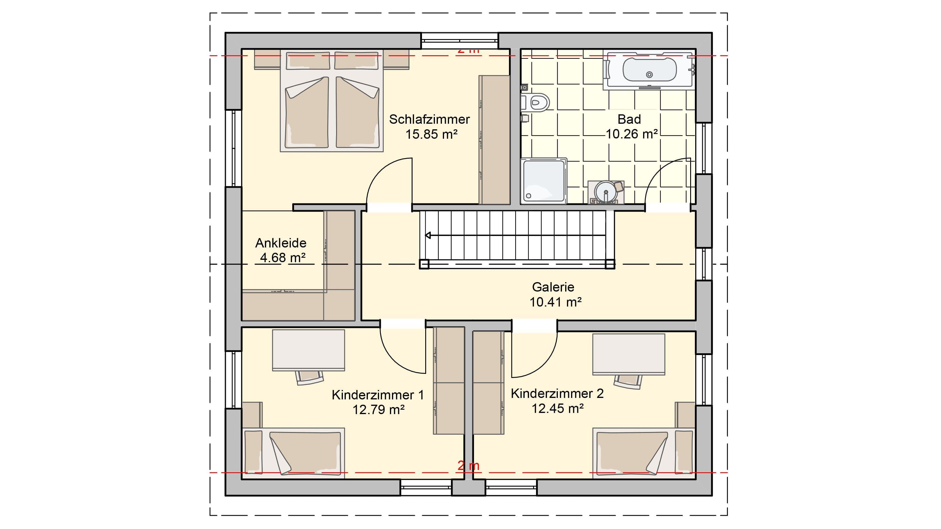
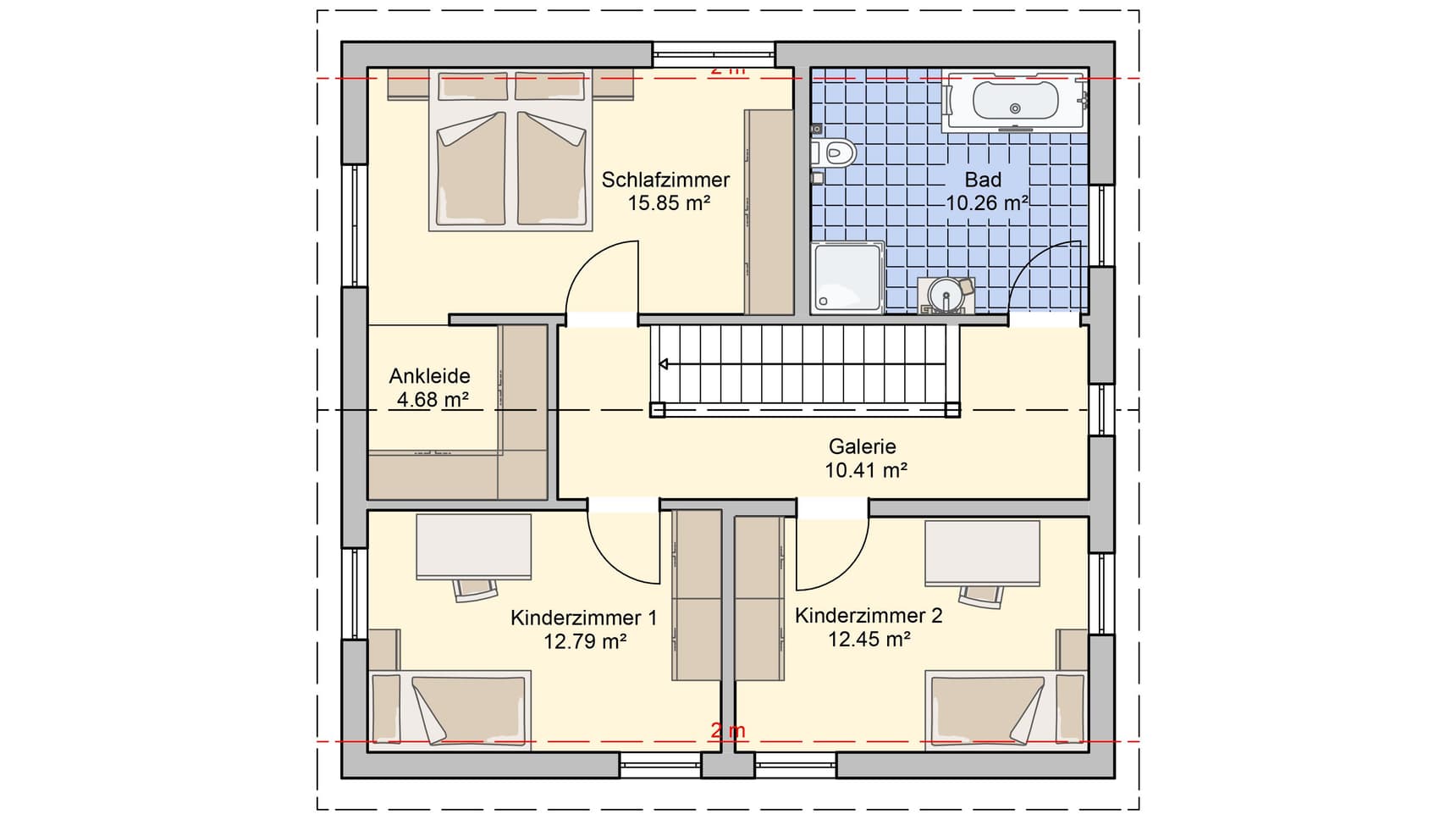
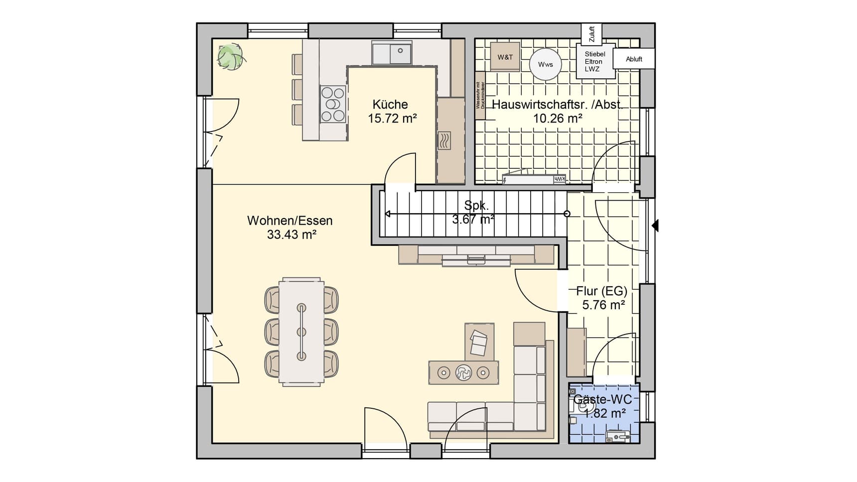
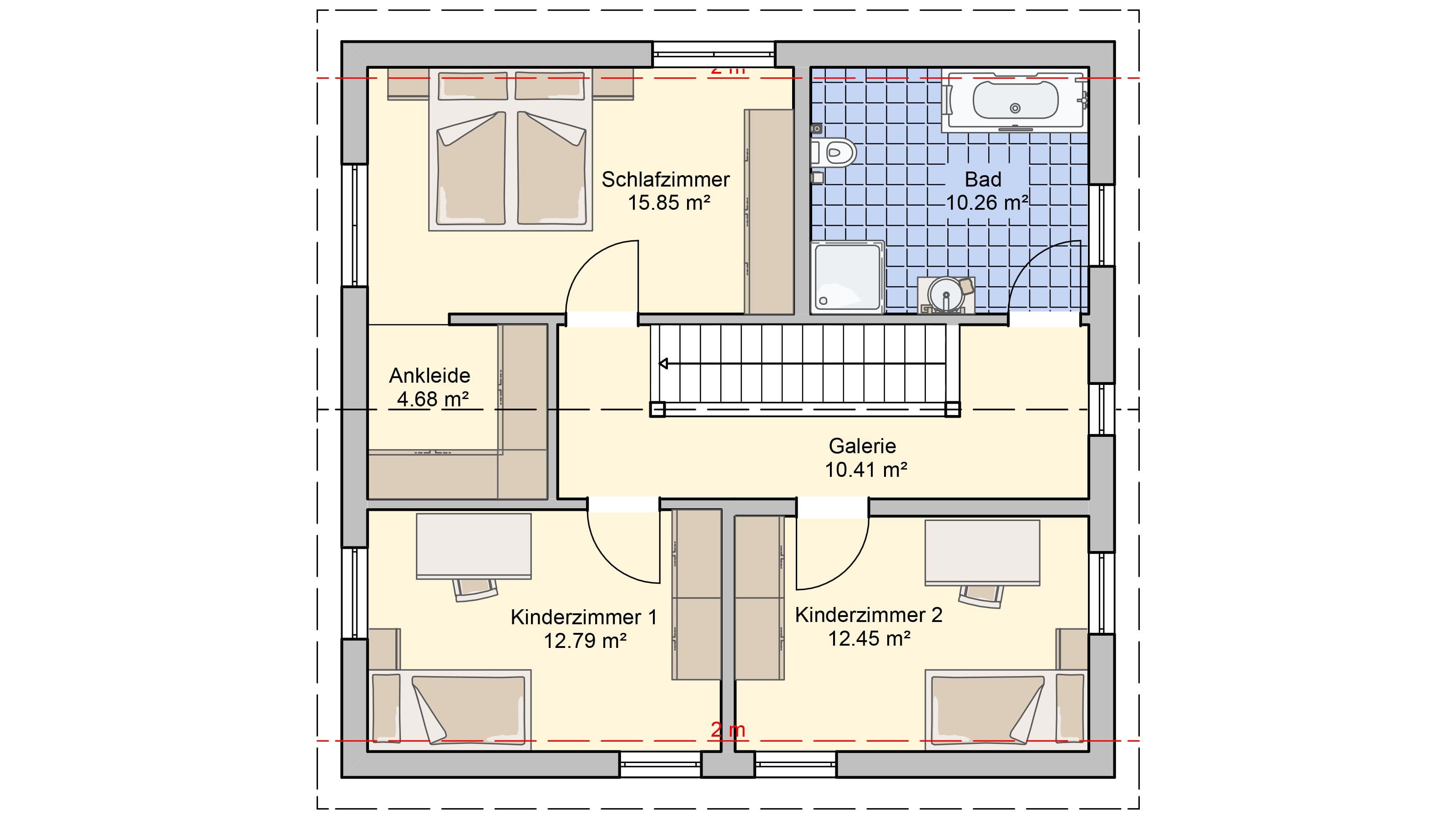
Das familienfreundliche Modell „London“ überzeugt mit einer flexibel nutzbaren Raumanordnung. Im Erdgeschoss begrüßt ein freundlicher Eingangsbereich Bewohner und Besucher des Hauses. Von dort gelangt man mit wenigen Schritten in den weitläufigen Essbereich, der sinnvoll mit Wohnzimmer und Küche kombiniert wurde. So entsteht ein fast 50 m² großer Raum, der viel Platz für die schönen Dinge im Leben bereitstellt. Ein Gäste-WC ergänzt das Erdgeschoss perfekt. Über die zentral platzierte Treppe gelangt man in die obere Etage. Diese beherbergt zwei identisch geschnittene Räume, die je nach Bedarf als Kinderzimmer, Büro oder Schlafstätte für Gäste dienen können. Das komfortable Elternschlafzimmer überzeugt durch eine abgetrennte Ankleide. Ein Haus für die komplette Familie!

