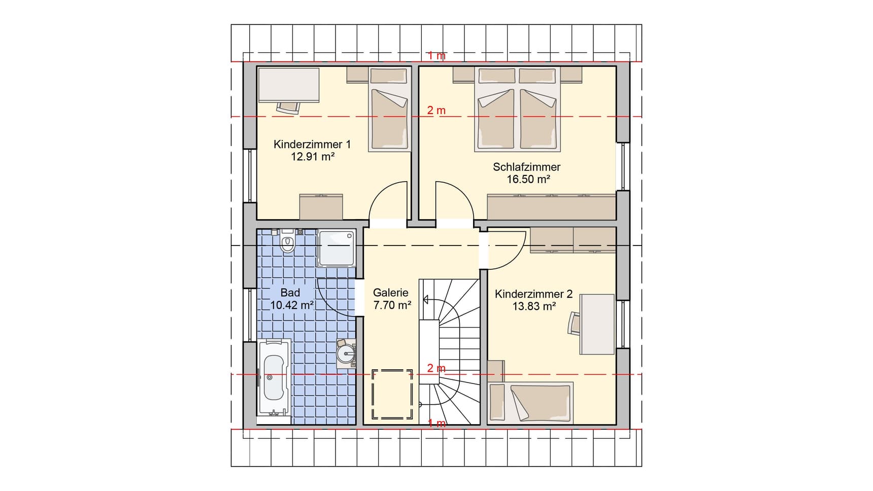
Tolles Design und pure Gemütlichkeit. Auszeichnend für komfortables Wohnen ist der große Wohn-, Koch- und Essbereich. Modern und weitläufig wirkt die offene Gestaltung des Raumes, was durch die Fenstertüren verstärkt wird. Im Dachgeschoss ist genug Platz für 2 Kinderzimmer und ein Schlafzimmer. Außerdem ist hier ein großes Badezimmer eingeplant. Besonders für kleinere Grundstücke ist dieses Hauskonzept wie gemacht.

