Klares Design, auf das Wesentliche konzentriert mit ganz besonderer Natürlichkeit und Gemütlichkeit - der Nordic Style mit skandinavischem Ursprung liegt im Trend. Der angesagte Wohnstil wurde in unserem Haus Lando perfekt umgesetzt. Es handelt sich hierbei um ein Effizienzhaus 55, wodurch es einem nachhaltigen, energiesparenden und umweltfreundlichen Zuhause wird. Auf knapp 150m² Wohnfläche kann sich jeder Bewohner frei entfalten.
Schöne Holzelemente, geradlinige Formen und zarte Formen sorgen für eine gemütliche skandinavisch geprägte Ästhetik. Der hell gestaltete Wohn-, Koch- und Essbereich punktet zusätzlich mit einem direkten Zugang von der Küche in den Garten.
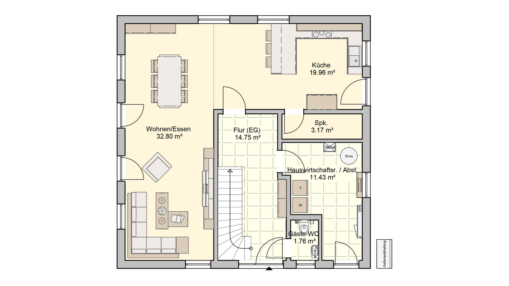
Der große Hauswirtschaftsraum im Anschluss an die Garage bietet viele praktische Aspekte gerade für Familien - so kann hier eine Waschmaschine, ein Trockner und ausreichend Platz für Kinderwagen, Spielgeräte und vieles mehr.
Drei Schlafzimmer, sowie das geräumige Familienbadezimmer befinden sich auf einer Etage im Dachgeschoss. Durch die intelligente Raumaufteilung hat jedes Familienmitglied die Möglichkeit sich entspannt zurück zu ziehen und gleichzeitig familiäre Nähe zu wählen.

