Immer noch wie vor 100 Jahren ist der Bauhausstil ein Synonym für Moderne und Purismus. Klare und schlichte Architektur und kubische Formensprache spiegeln auch heute noch das moderne Wohnen wider. Inspiriert von diesen Einflüssen entstand das Haus Lageto. Auf 207 m² Wohnraum zeigt sich Offenheit, soweit das Auge reicht.
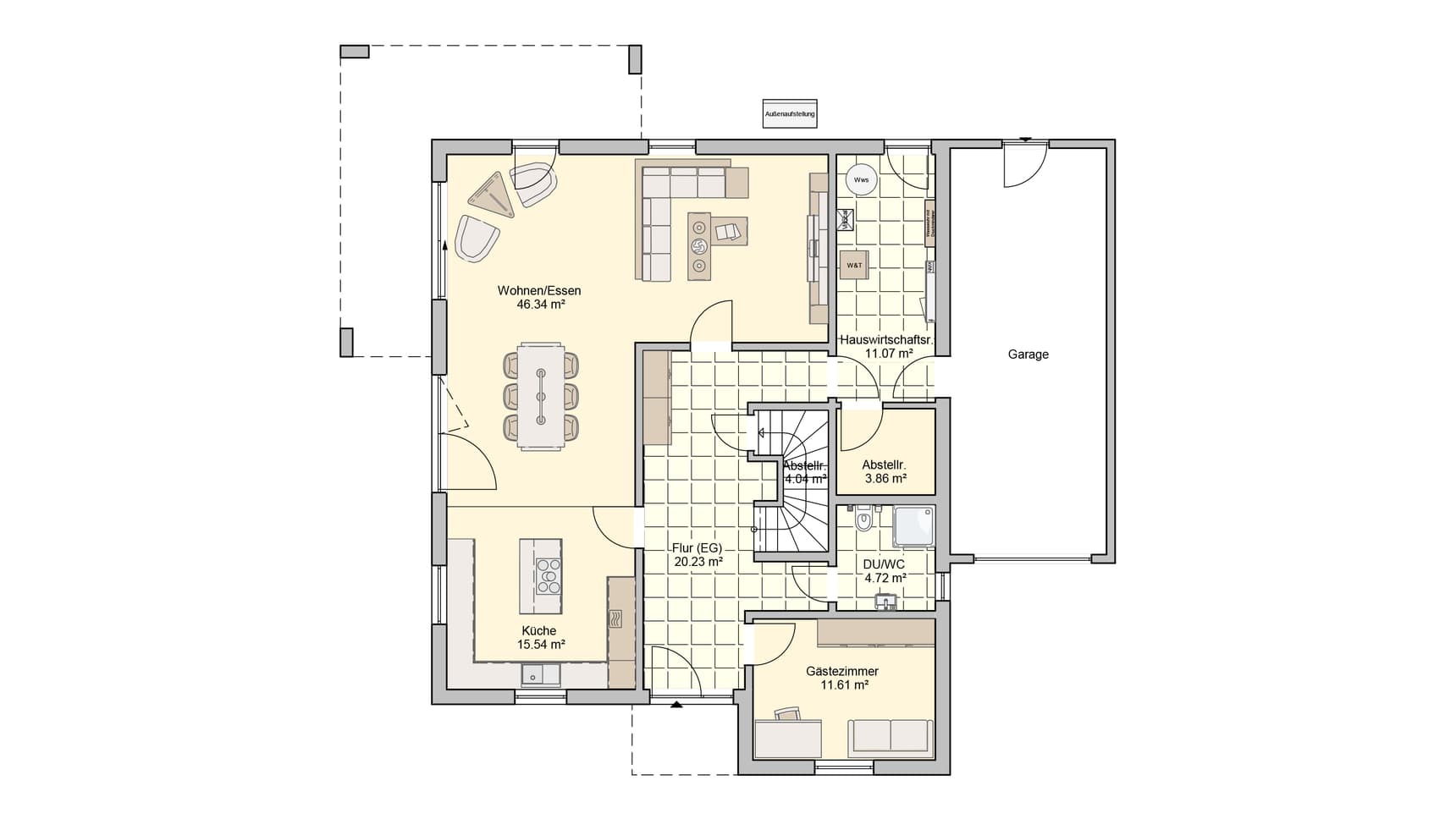
Das Herzstück des Erdgeschosses stellt der offene Wohn- und Essbereich mit direktem Zugang an die Küche dar. Der helle Flur bietet Zugang zum Hauswirtschaftsraum und der anschließenden Abstellkammer. Ebenfalls befinden sich im Erdgeschoss ein Gästezimmer und ein Badezimmer.
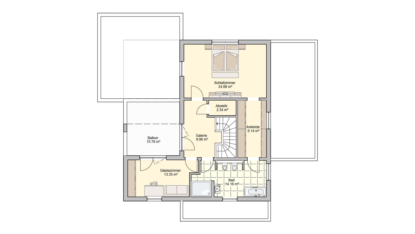
Auch im Obergeschoss lassen sich die individuellen Wünsche der Bewohner ganz einfach verwirklichen. Kurze Wege führen hier durch die Galerie in das große Badezimmer mit direktem Anschluss an die Ankleide und das Schlafzimmer bietet genug Platz zum Wohlfühlen. Das Bürogebäude mit direktem Zugang zum Balkon macht das Konzept des Homeoffices komfortabel möglich.

