Mit einem großzügigen Eingangsbereich begrüßt das Haus Cielo seine Gäste. Ein echter Hingucker ist das moderne versetzte Pultdach sowie die extravagant gestaltete Außenfassade mit bodentiefen Fenstern auf der Südseite. Diese sorgen für helle lichtdurchflutete Räume und eine freundliche Atmosphäre. Das Erdgeschoss setzt sich aus einem geräumigen Wohn- und Essbereich sowie einer Küche, einem Gästezimmer und einem WC mit Dusche zusammen. Ein weitläufiger Flur im Parterre verbindet den Wohn- und Essbereich mit dem Gästezimmer und -bad. Er führt über eine Treppe in das Dachgeschoss.
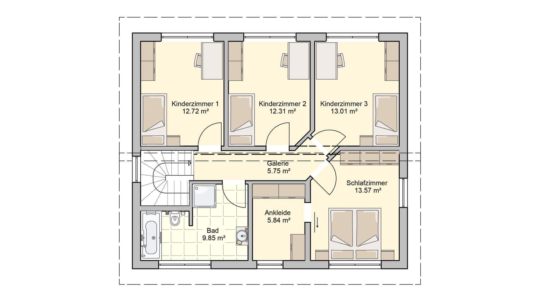
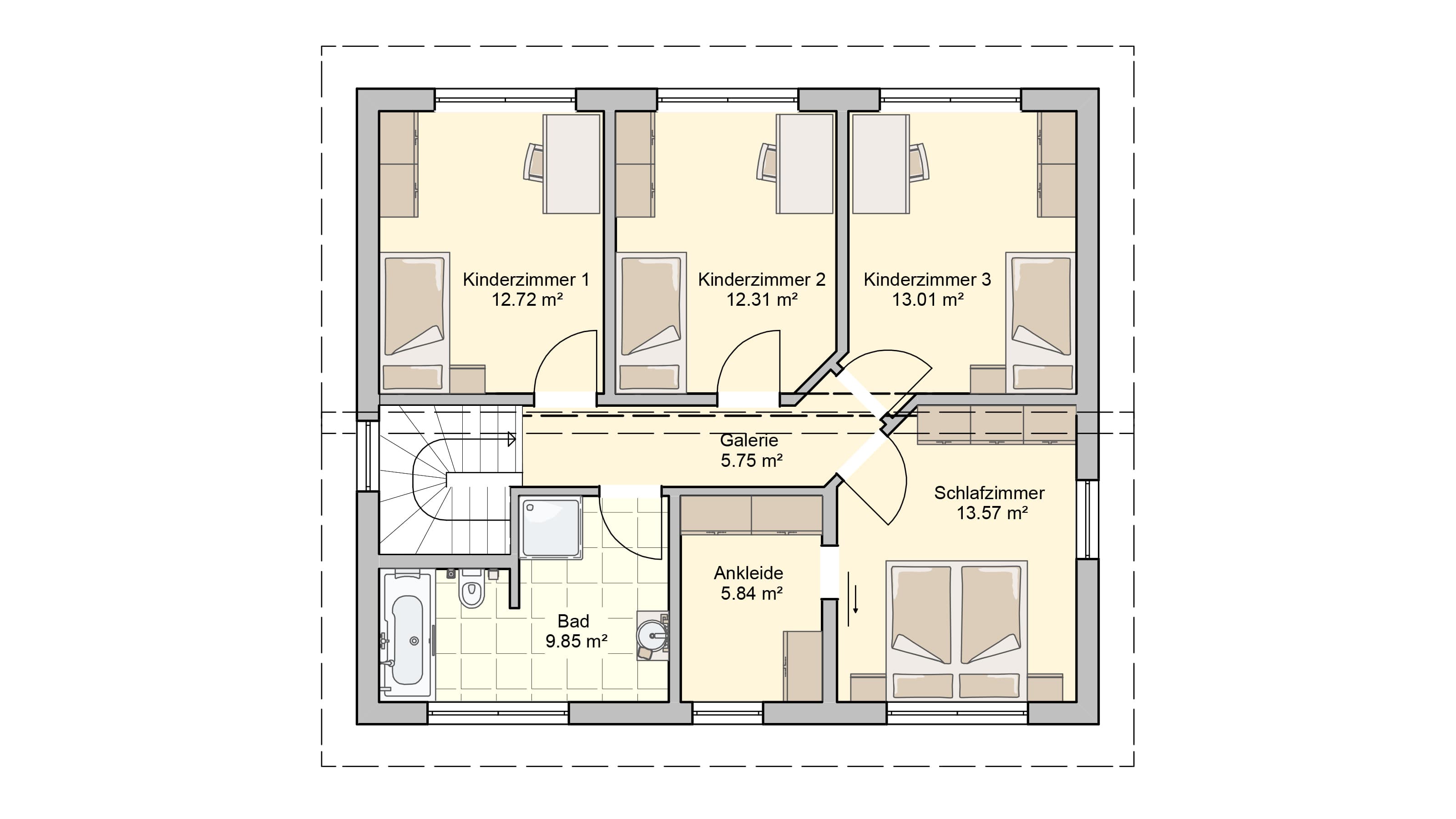
Das Obergeschoss bildet die Schlaf-Oase für Groß und Klein. So finden drei Kinderzimmer sowie das Elternschlafzimmer mit angrenzendem Ankleideraum und ein geräumiges Bad ihren Platz. Alles in allem: Das Pultdachhaus Cielo besticht durch seinen modernen Charakter und eignet sich ideal für eine fünfköpfige Familie.

