1. AnbieterArrow Icon
  2. Fingerhut Haus GmbH & Co. KGArrow Icon
  3. Granda
Slide 1
Slide 2
no description
Fingerhut Haus GmbH & Co. KGGranda
homeKlassische Familienhäuser
livingArea157 m²
energyStandardEffizienzhaus 55
Preis anfragen
Katalog bestellen

Granda

Ein Haus mit Raffinesse

Wohnen und arbeiten unter Dach und Fach: Im Pultdachhaus Granda Optisches Highlight dieses Objektes ist das versetzte Pultdach, das der Fassade das „gewisse Etwas“ verleiht. Betritt man den Eingangsbereich, so öffnen sich in einem weitläufigen Flur die Zugänge zu Büro, Hauswirtschaftsraum, WC mit Dusche und der offenen Küche. Diese führt nahtlos in den Wohn-/Essbereich, der den Zugang zur Terrasse frei gibt. Im Dachgeschoss liegt das Augenmerk auf Erholung und Wohnlichkeit. Hier befinden sich neben einem großzügigen Bad und Abstellraum zwei Kinderzimmer und ein Elternschlafzimmer mit begehbarer Ankleide. Die bodentiefen Fenster im Erdgeschoss und Dachfenster im Obergeschoss geben den Räumen Freundlichkeit und durchfluten sie mit hellem Tageslicht. So entsteht ein Wohlfühlcharakter für Groß und Klein.

Hausdaten

Hausart Icon
HausartEinfamilienhaus
Bauweise Icon
BauweiseHolz-Tafelbau
Anzahl Räume Icon
Anzahl Räume7
Baustil Icon
BaustilKlassische Familienhäuser
Fassade Icon
FassadePutz
Außenmaße Icon
Außenmaße9 m x 12.5 m
Wohnfläche Icon
Wohnfläche157.3 m²
Dachform Icon
DachformVersetztes Pultdach
Etagen Icon
Etagen2
Energiestandard Icon
EnergiestandardEffizienzhaus 55
Immobilientyp Icon
ImmobilientypPlanungsidee
Dachneigung Icon
Dachneigung30°
Kniestock Icon
Kniestock1.7 m
Mittlerer U-Wert Icon
Mittlerer U-Wert0.14 W/m²K
Hausdämmstoff Icon
HausdämmstoffMineralfaser (Glaswolle, Steinwolle)
Heizungsart Icon
HeizungsartWärmepumpe (Luft, Wasser, oder beides)
Pfeil nach unten linksWir schaffen Platz für Ihre Träume

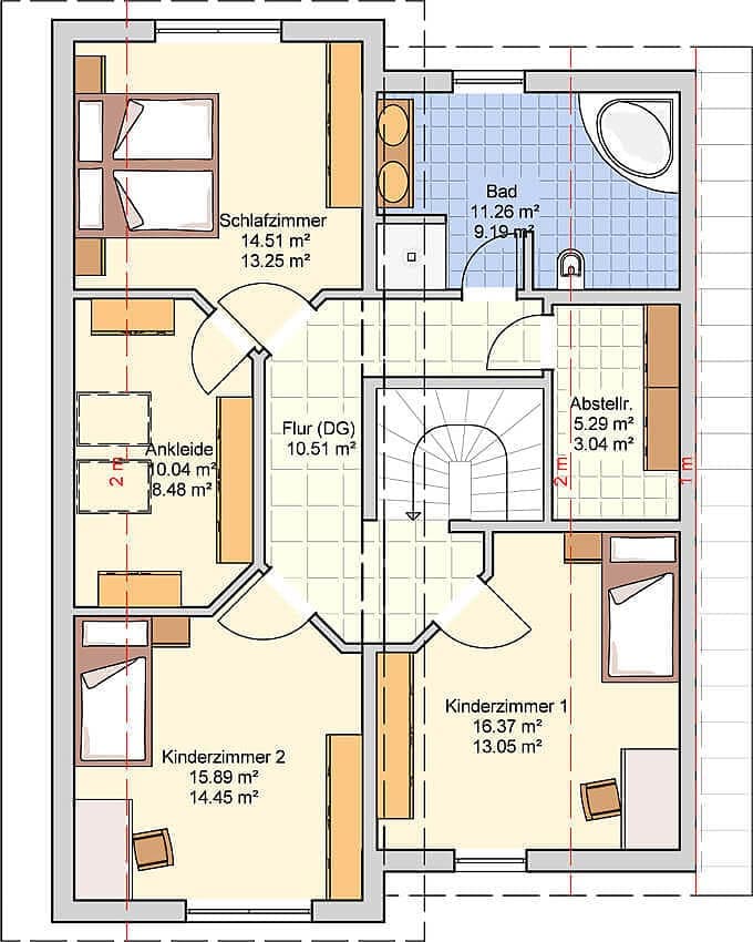
Grundriss

no description
Granda Grundriss (EG)
no description
Granda Grundriss (OG)

Kataloge

Fingerhut Haus: Hauskatalog
Fingerhut Haus GmbH & Co. KG

Fingerhut Haus: Hauskatalog


House and TreeParksHouse and PinMusterhausHouse on HandAnbieter