1. AnbieterArrow Icon
  2. Fingerhut Haus GmbH & Co. KGArrow Icon
  3. Junto 168
Slide 1
Slide 2
no description
Fingerhut Haus GmbH & Co. KGJunto 168
homeKlassische Familienhäuser
livingArea163 m²
energyStandardEffizienzhaus 55
Preis anfragen
Katalog bestellen

Junto 168

Moderne Bauweise und raffinierter Grundriss vereint

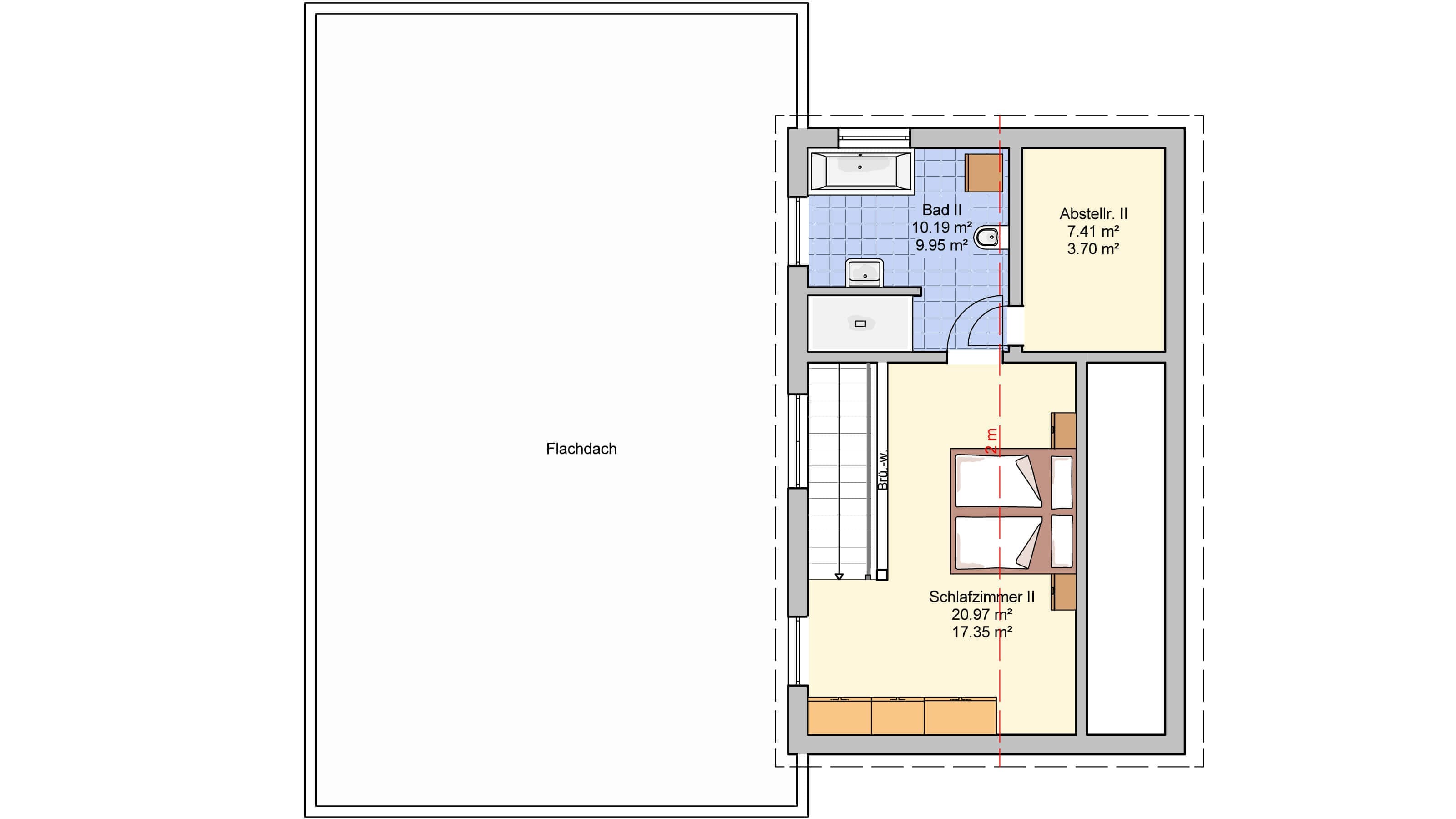
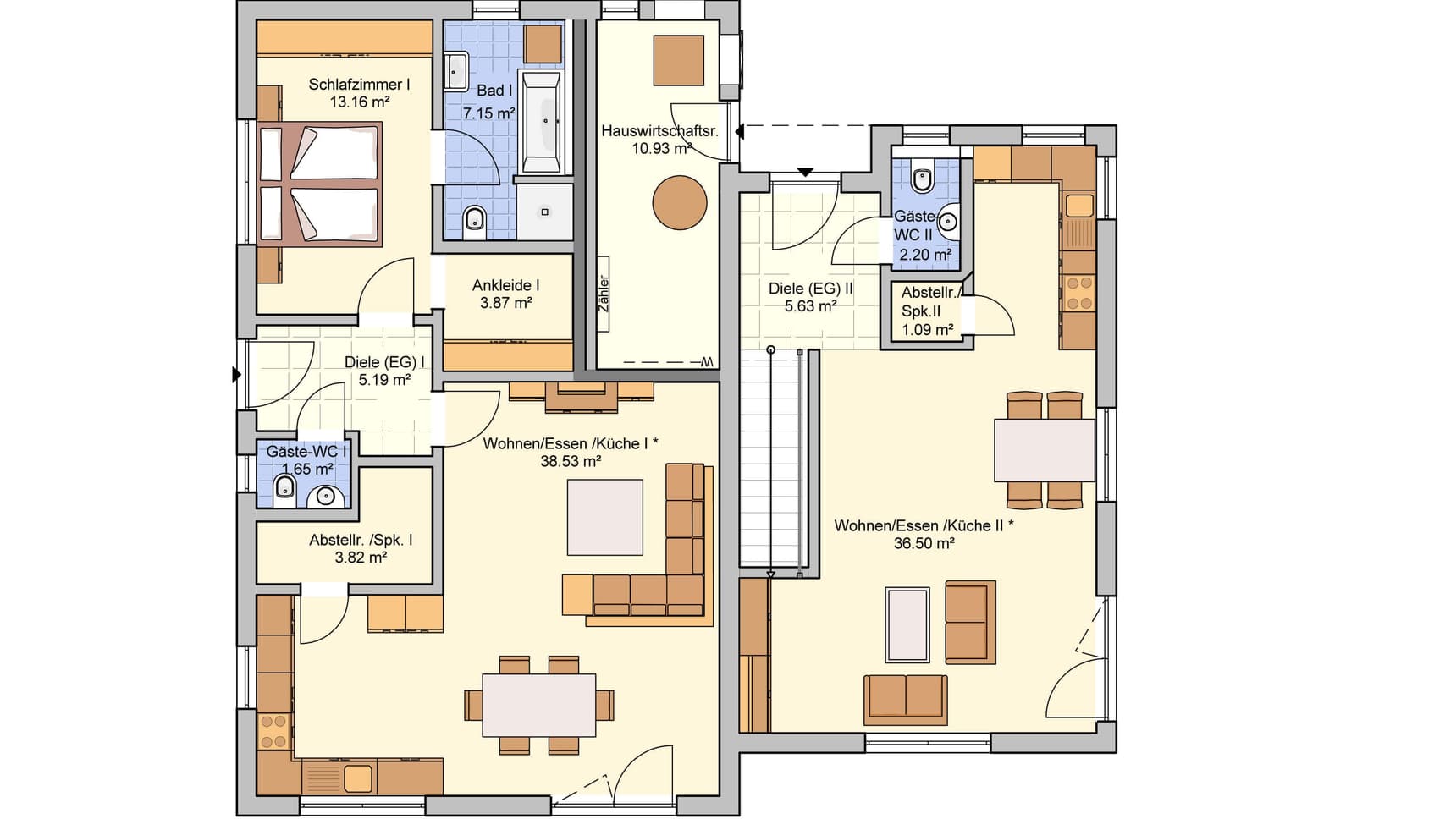
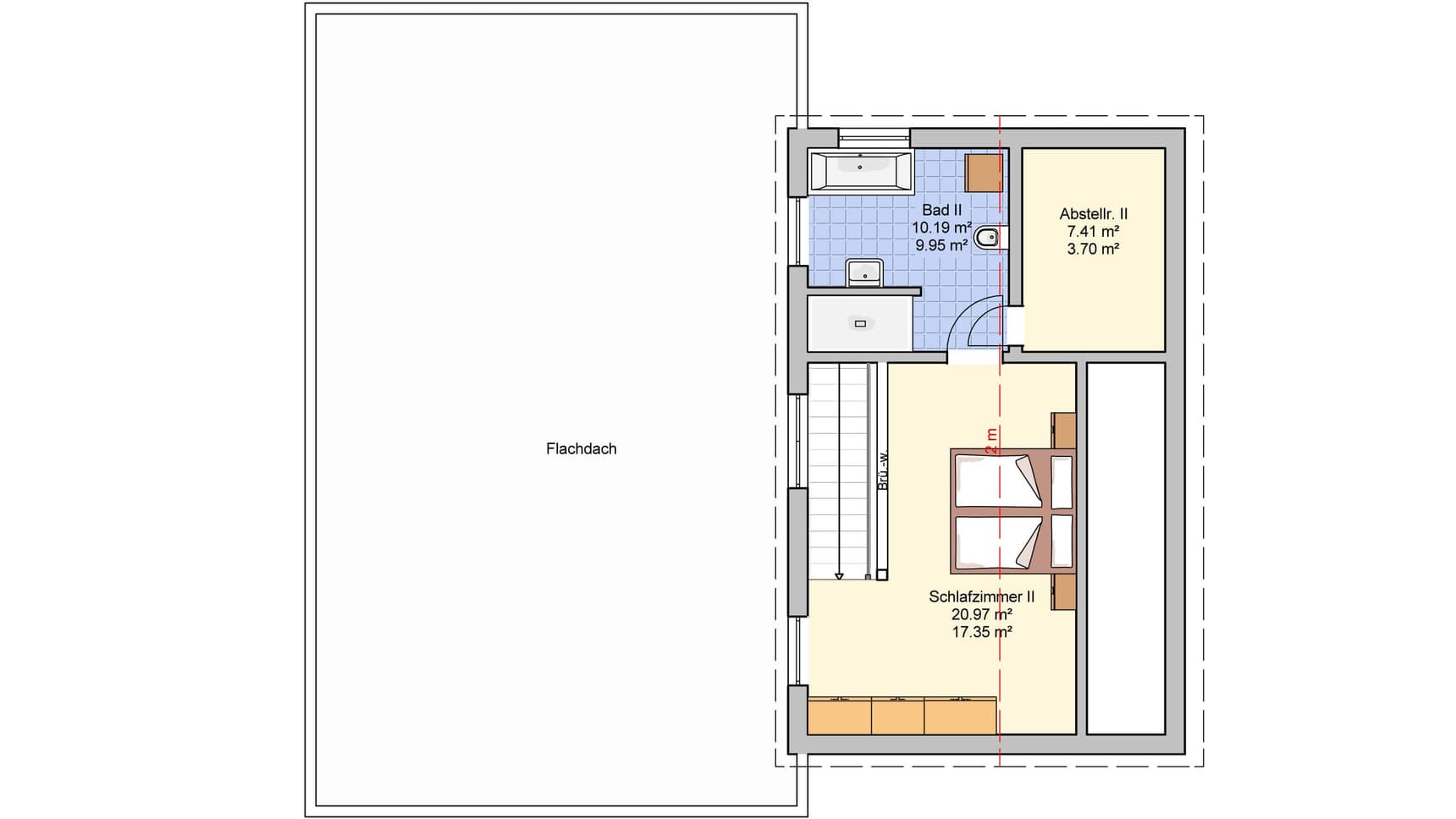
Die verschiedenen Dachformen verleihen dem Haus einen ganz besonderen Look. Individuell wie die Dächer, sind auch die beiden Wohnungen gestaltet. Unter dem Plutdachhaus birgt sich eine Wohnung mit Platz für einen zwei-Personenhaushalt auf zwei Etagen. Unter dem Flachdachhaus ist ebenso Platz für ein Paar, wobei diese Wohnung ohne Treppen auch seniorengerecht gestaltet wurde.

Hausdaten

Hausart Icon
HausartEinfamilienhaus
Bauweise Icon
BauweiseHolz-Tafelbau
Anzahl Räume Icon
Anzahl Räume6
Baustil Icon
BaustilKlassische Familienhäuser
Fassade Icon
FassadePutz
Außenmaße Icon
Außenmaße13 m x 14 m
Wohnfläche Icon
Wohnfläche162.7 m²
Dachform Icon
DachformPultdach
Etagen Icon
Etagen1.5
Energiestandard Icon
EnergiestandardEffizienzhaus 55
Immobilientyp Icon
ImmobilientypPlanungsidee
Dachneigung Icon
Dachneigung15°
Kniestock Icon
Kniestock1.5 m
Mittlerer U-Wert Icon
Mittlerer U-Wert0.14 W/m²K
Hauseigenschaften Icon
HauseigenschaftenEinliegerwohnung
Hausdämmstoff Icon
HausdämmstoffMineralfaser (Glaswolle, Steinwolle)
Heizungsart Icon
HeizungsartWärmepumpe (Luft, Wasser, oder beides)
Pfeil nach unten linksWir schaffen Platz für Ihre Träume

Grundriss

no description
Junto 168 Grundriss (EG)
no description
Junto 168 Grundriss (DG)

Kataloge

Fingerhut Haus: Hauskatalog
Fingerhut Haus GmbH & Co. KG

Fingerhut Haus: Hauskatalog


House and TreeParksHouse and PinMusterhausHouse on HandAnbieter