1. AnbieterArrow Icon
  2. Fingerhut Haus GmbH & Co. KGArrow Icon
  3. Solaris
Slide 1
Slide 2
Slide 3
Slide 4
no description
Fingerhut Haus GmbH & Co. KGSolaris
homeLandhäuser
livingArea145 m²
energyStandardEffizienzhaus 55
Preis anfragen
Katalog bestellen

Solaris

Ökologie & Ökonomie unter einem Dach

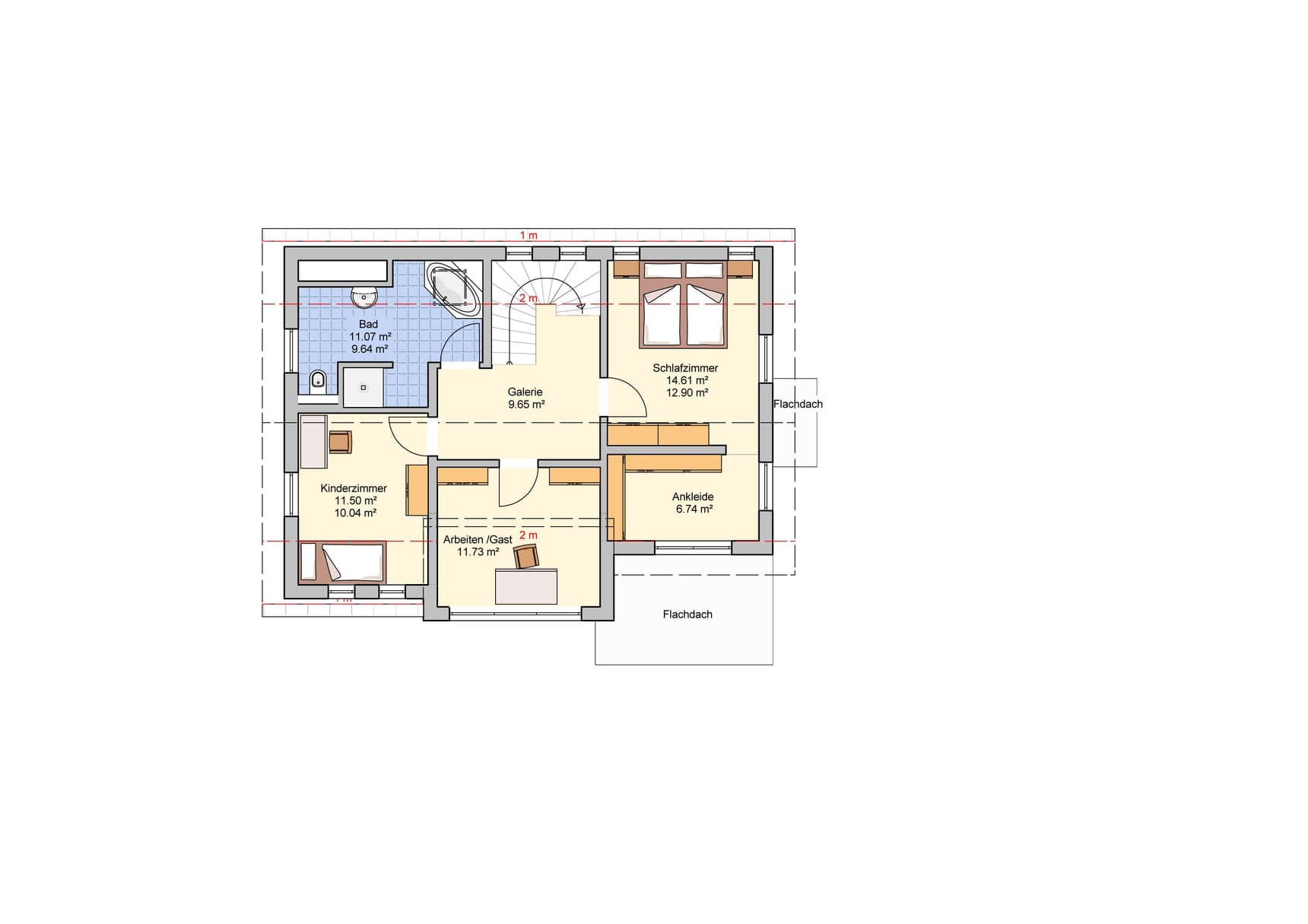
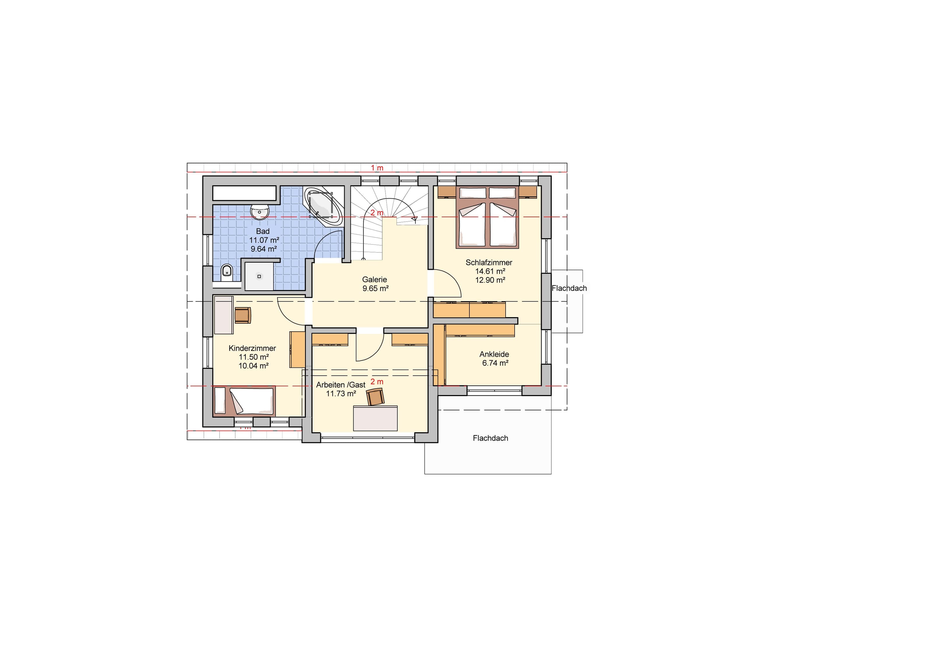
Nachhaltiges Wohnen und zukunftsorientiertes Bauen: vereint in einem gemütlichen Zuhause. Unser Haus Solaris vereint diese Aspekte unter einem Dach. Die Kombination aus Flach- und Satteldach sorgt für den individuellen Look des Hauses. Die thermische Gebäudehülle bietet perfekten Schutz vor Witterung, wobei das Raumklima im Inneren auf bestmöglichem Niveau erhalten bleiben kann. Im Dachgeschoss laden die Galerie und das geräumige Badezimmer zum Wohlfühlen und Träumen ein. Individuellen Rückzugsort bietet das Kinderzimmer und das Schlafzimmer mit anschließender Ankleide. Außerdem wurde im Dachgeschoss ein Arbeitszimmer eingeplant.

Hausdaten

Hausart Icon
HausartEinfamilienhaus
Bauweise Icon
BauweiseHolz-Tafelbau
Anzahl Räume Icon
Anzahl Räume10
Baustil Icon
BaustilLandhäuser
Fassade Icon
FassadePutz
Außenmaße Icon
Außenmaße11.1 m x 9.5 m
Wohnfläche Icon
Wohnfläche145.13 m²
Dachform Icon
DachformSattel-/Giebeldach
Energiestandard Icon
EnergiestandardEffizienzhaus 55
Pfeil nach unten linksWir schaffen Platz für Ihre Träume

Grundriss

no description
Solaris Grundriss (EG)
no description
Solaris Grundriss (DG)

Kataloge

Fingerhut Haus: Hauskatalog
Fingerhut Haus GmbH & Co. KG

Fingerhut Haus: Hauskatalog


House and TreeParksHouse and PinHäuser liveHouse on HandAnbieter