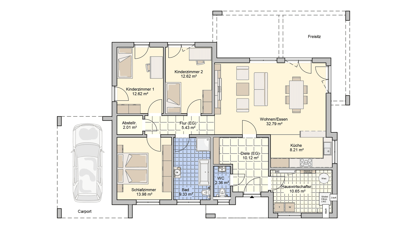
Die Innen- und Außengestaltung des Flachdachbungalows Karismo besticht durch seine minimalistische, moderne Optik. Die beiden Kinderzimmer und das Elternschlafzimmer werden durch einen Flur verbunden. Gleichermaßen findet sich hier das große Badezimmer des Hauses. Zudem findet sich hier der große Wohn-, Ess- und Kochbereich sowie eine praktische Abstellkammer.
Ein weiterer Flur verbindet Hauswirtschaftsraum und das Gäste-WC mit dem offenen Wohnbereich.
Die Gestaltungsmöglichkeiten des Bungalows sind nahezu grenzenlos, sodass individuelle Wünsche verwirklicht werden können. Beispiele hierfür sind moderne Anbauten, eine angrenzende Terrasse oder ein Carport der vom Haus aus zugänglich ist. Eine 3-4 köpfige Familie findet hier perfekt ihr Zuhause - so zeigt sich modernes Wohnen im 21. Jahrhundert.
