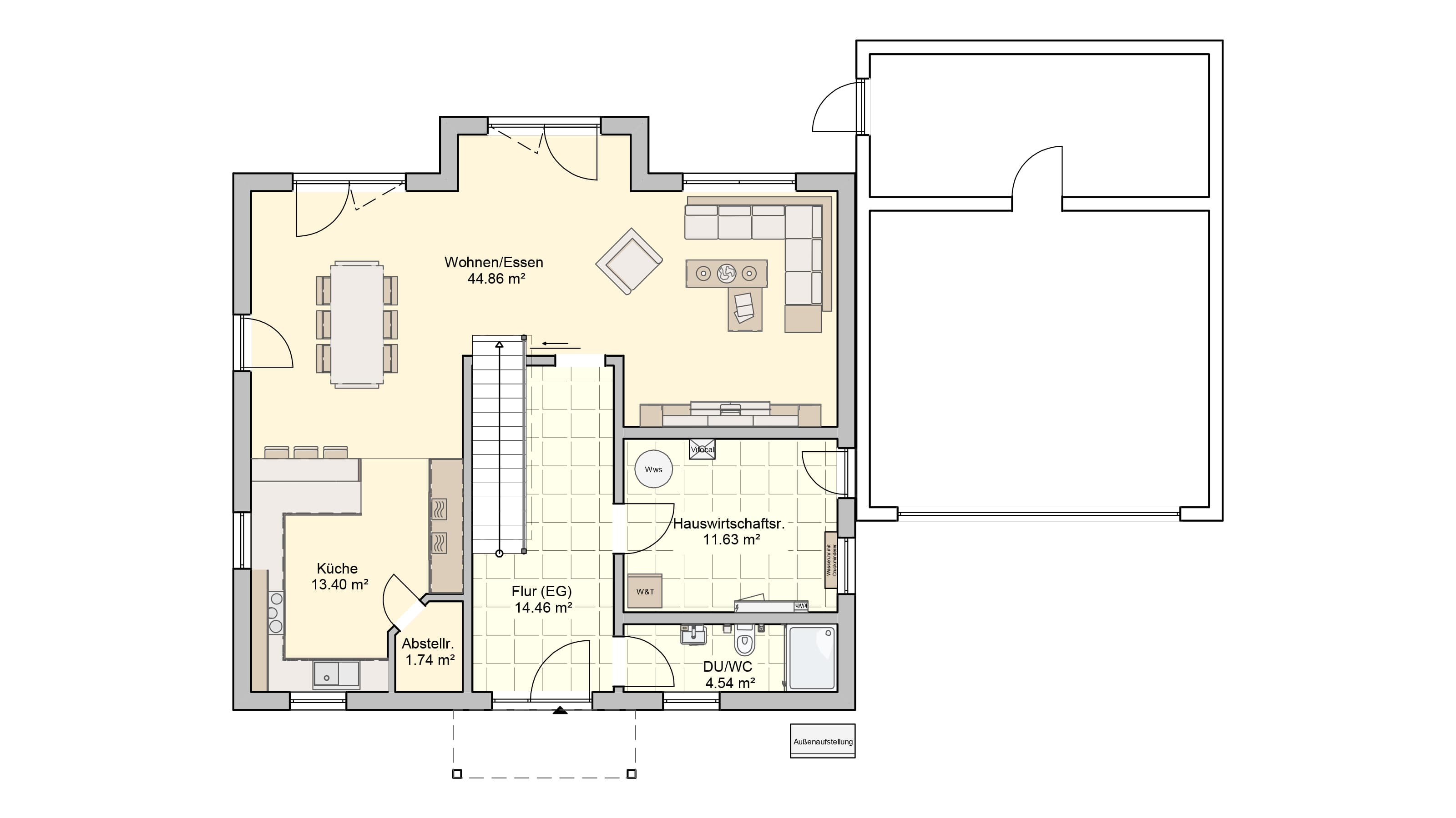
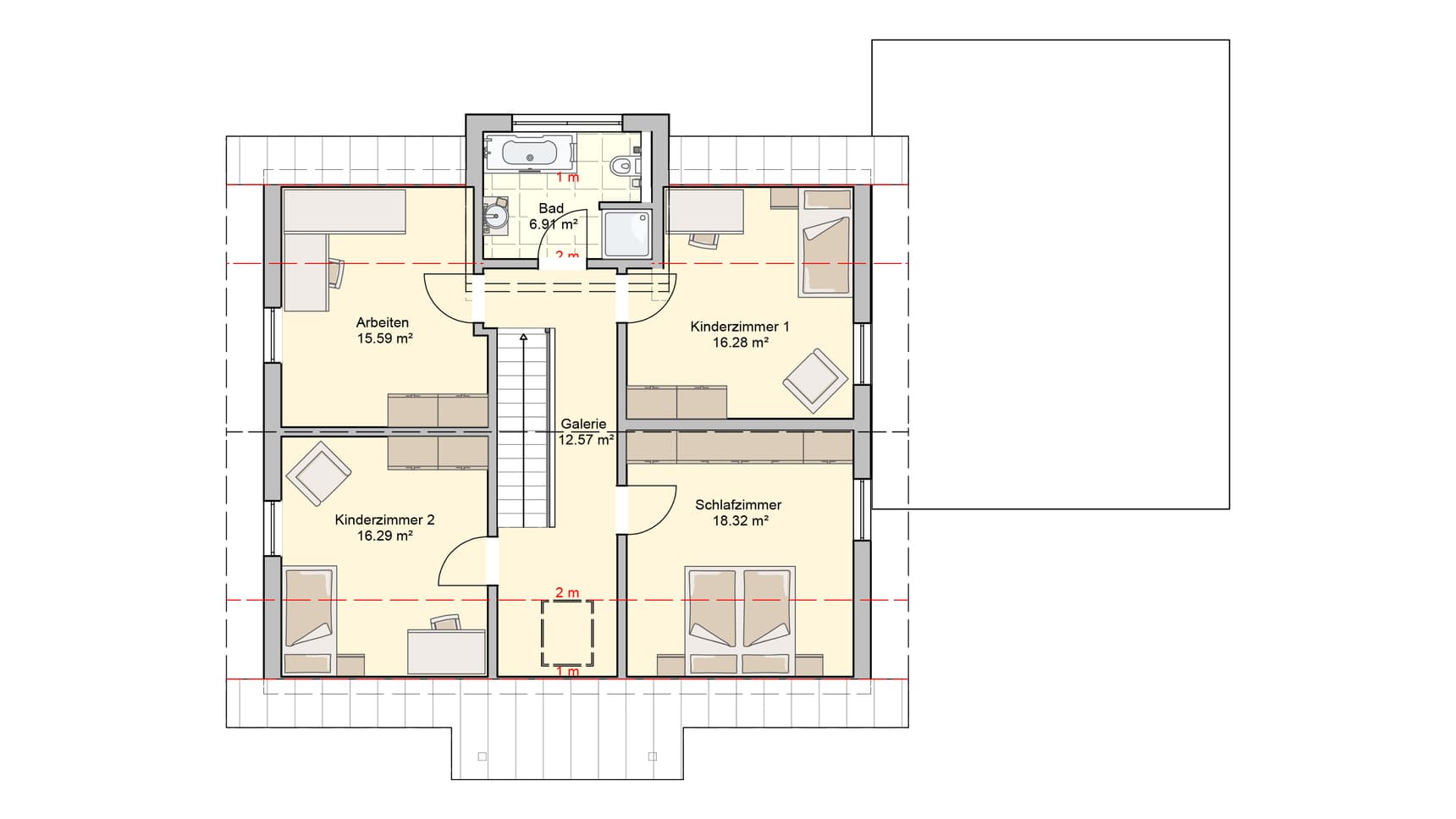
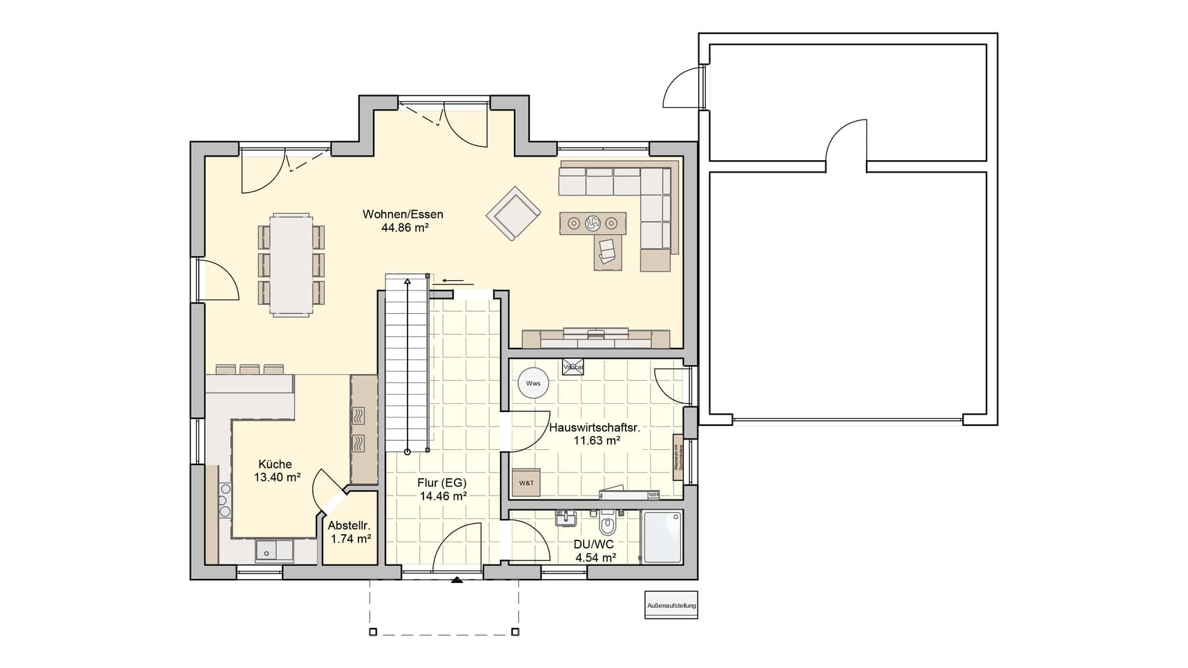
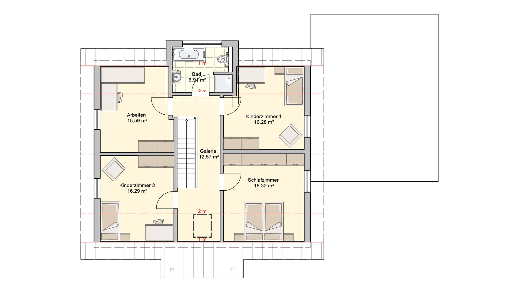
„Amika“ ist weit mehr als ein puristisches Satteldach-Objekt mit Erker. Das 164 m2 große Traumhaus ist ein wahres Energiesparwunder durch Tageslichtquellen. Dafür sorgen die bis zum Boden reichenden Fensterfronten, die auf effiziente Heiztechnik und eine thermische Gebäudehülle treffen. Diese Hülle umschließt die weitläufigen Wohnräume im Erd- und Dachgeschoss. Sie ist diffusionsoffen und besitzt keine Styropordämmung, sondern ein Holzweichfaser-Wärmeverbundsystem. In Kombination mit einer Luft-Wasser-Wärmepumpe besticht das Haus „Amika“ mit Ökonomie und Ökologie in großem Umfang. Eine warme Atmosphäre spüren die Hausbewohner auch in den offen gestalteten Räumen des Hauses. Das Herzstück bildet dabei eine große Küche, die als Treffpunkt für gemeinsame Stunden fungiert. Kurzum: Auf allen Ebenen Wärme und Offenheit in der schönsten Form.

