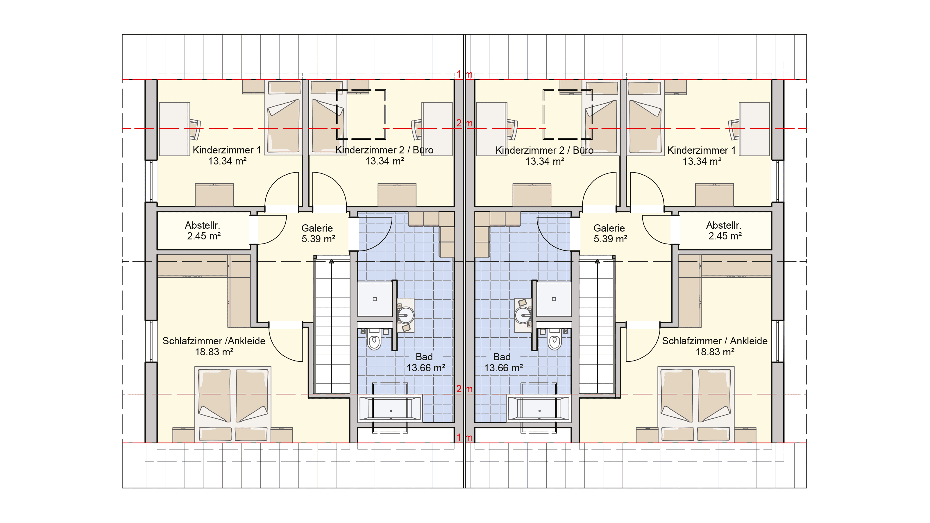
In unserem Duett 141 treffen Praktikabilität und Luxus aufeinander. Eine optimale Wohnflächenaufteilung auf zwei Ebenen entsteht durch die geradlinige Treppe. Der lichtdurchflutete Wohn- und Essbereich bildet den zentralen Treffpunkt der Familie im Erdgeschoss. Im Dachgeschoss finden sich die entsprechenden 'Ruheinseln' für jeden Hausbewohner. Zwei Kinderzimmer, in der gleichen Größe, bieten genug Platz und Spielraum für die kleinen Bewohner. Alternativ können die Räume umfunktioniert werden. Beispielsweise kann ein Kinderzimmer zu einem Arbeitszimmer werden. Eine Ankleide grenzt an das Elternschlafzimmer an. Sowohl für Eltern, also auch für die Kinder ist das große Badezimmer durch die große Galerie zugänglich. Auch findet sich hier ein praktischer Abstellraum. Kurz gesagt: Duett 141 punktet durch gehobenen Komfort und optimale Raumausnutzung was zu einer intelligenten Raumausnutzung führt.

