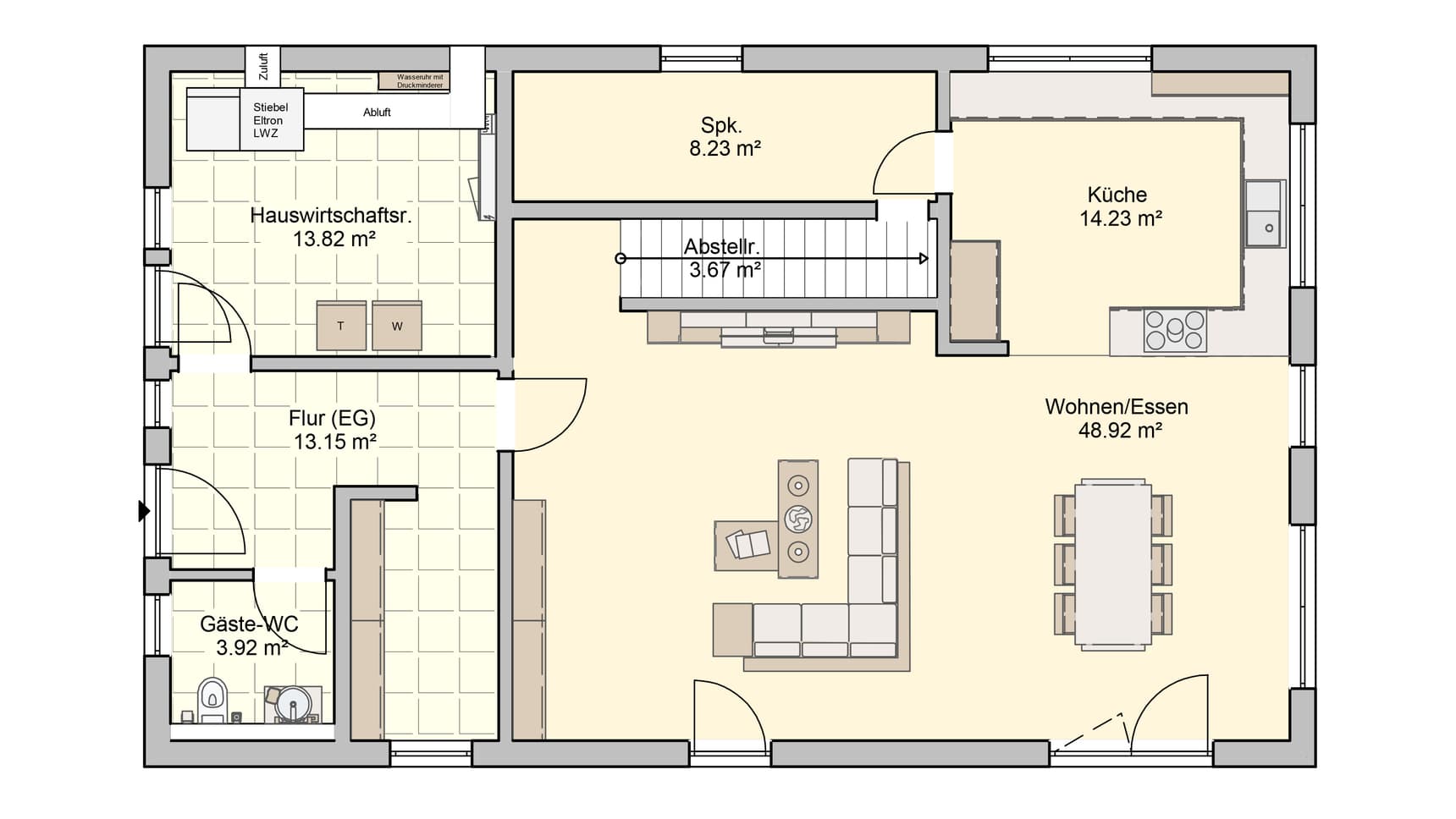
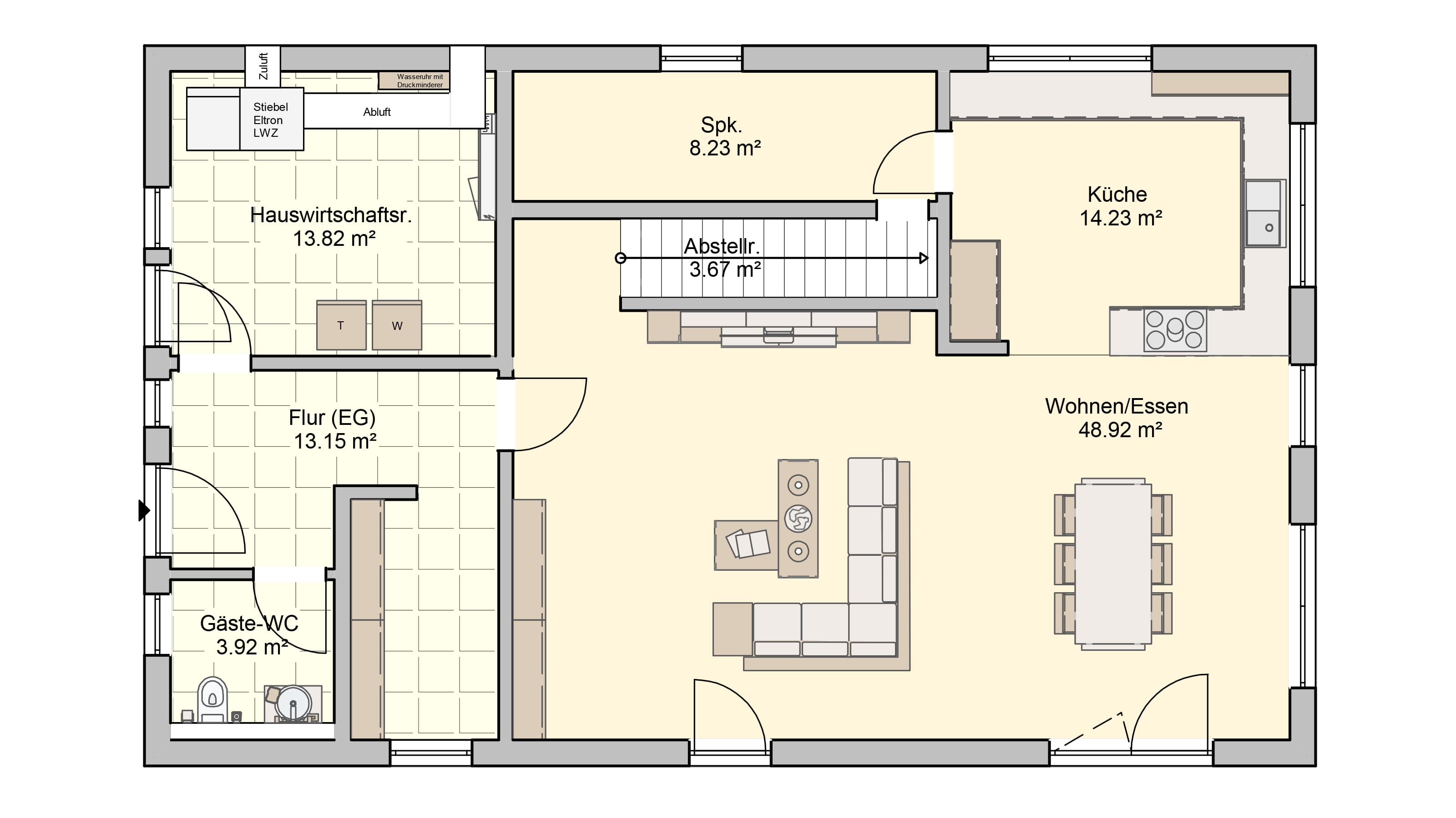
Der offene Wohn-, Ess- und Kochbereich charakterisieren das Haus. Hier findet sich genug Platz um das Leben gemeinsam zu genießen. Die großen Fenster und Fenstertüren sorgen für ausreichend natürlich Lichteinstrahlung und machen den Raum schön hell. Außerdem finden sich im Erdgeschoss der Hauswirtschaftsraum, sowie eine Speisekammer und ein WC. Im Dachgeschoss befindet sich ausreichend Platz für ein Arbeitszimmer (HomeOffice), ein Kinderzimmer einen Hauswirtschaftsraum ein Badezimmer und ein Schlafzimmer mit einer Ankleide und anschließendem großen Badezimmer. Der Schlaf- und Ankleidebereich wird durch eine Glasschiebetüre geschickt vom großen Wohlfühlbad getrennt. Die beiden zusätzlichen Räume können selbstverständlich auch als Gästezimmer oder Hobbyraum genutzt werden.

