1. AnbieterArrow Icon
  2. FingerHausArrow Icon
  3. NEO 516
FingerHaus - NEO 516
FH_Logo_Pos_RGB_2020.png
FingerHausNEO 516
homeKlassische Familienhäuser
livingArea168 m²
energyStandardEffizienzhaus 40
Preis anfragen
Katalog bestellen

NEO 516

Mehr Möglichkeiten für noch mehr Wohnkomfort 

Eine Nummer größer bietet NEO noch mehr Platz, zum Beispiel für eine Kochinsel in der Variante mit Küchenerker. Ein Arbeitsreich ist hier offen an den sehr geräumigen Wohnbereich angegliedert. Sie benötigen drei Kinderzimmer? Auch dafür hat das NEO die passende Lösung: in der Variante NEO 516 befinden sich im Dachgeschoss drei sehr geräumige Kinderzimmer sowie ein Elternschalfzimme, sodass die ganze Familie Platz zum Entfalten vorfindet. 

Hausdaten

Hausart Icon
HausartEinfamilienhaus
Bauweise Icon
BauweiseHolz-Tafelbau
Anzahl Räume Icon
Anzahl Räume6
Baustil Icon
BaustilKlassische Familienhäuser
Fassade Icon
FassadePutz
Außenmaße Icon
Außenmaße12.3 m x 9.15 m
Wohnfläche Icon
Wohnfläche168.35 m²
Dachform Icon
DachformSattel-/Giebeldach
Etagen Icon
Etagen1.5
Energiestandard Icon
EnergiestandardEffizienzhaus 40
Immobilientyp Icon
ImmobilientypPlanungsidee
Dachneigung Icon
Dachneigung38°
Kniestock Icon
Kniestock1.3 m
Mittlerer U-Wert Icon
Mittlerer U-Wert0.12 W/m²K
Hauseigenschaften Icon
HauseigenschaftenTerasse, Viel Glas
Hausdämmstoff Icon
HausdämmstoffMineralfaser (Glaswolle, Steinwolle)
Heizungsart Icon
HeizungsartWärmepumpe (Luft, Wasser, oder beides)
Pfeil nach unten linksWir schaffen Platz für Ihre Träume

Grundriss

Grundriss Erdgeschoss - NEO 516
NEO 516 Grundriss (EG)Wohnfläche EG: 89,22 m²
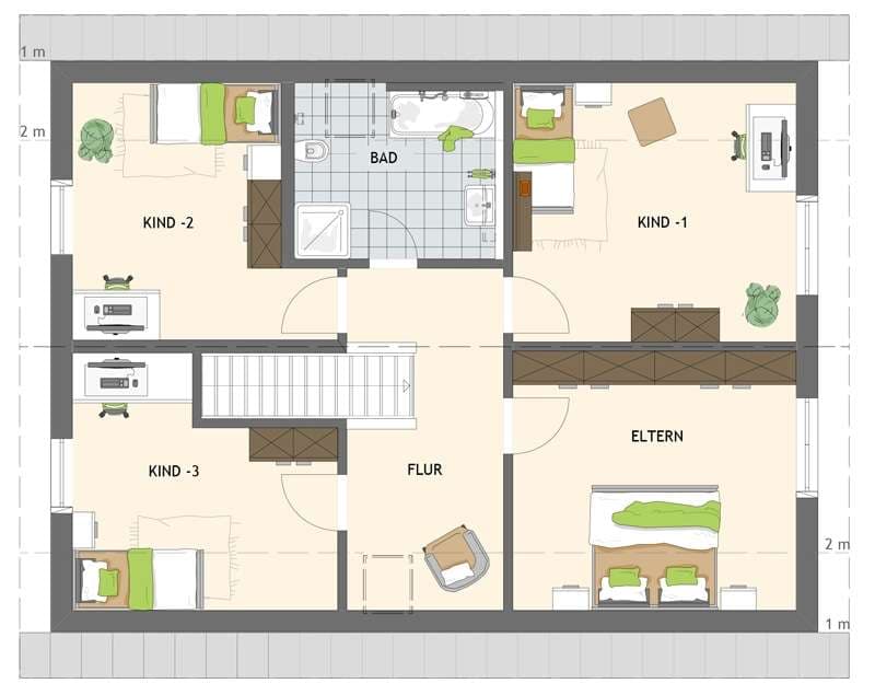
Grundriss Dachgeschoss - NEO 516
NEO 516 Grundriss (DG)Wohnfläche DG: 79,14 m²

Unser Team vor Ort

FingerHaus TeamFachberater*in bei FingerHaus
Default Avatar
Wir beraten Sie gerne!Arrow Icon

Kataloge

Fingerhaus: MEDLEY Katalog
FingerHaus

Fingerhaus: MEDLEY Katalog


Fingerhaus: DUO Katalog
FingerHaus

Fingerhaus: DUO Katalog


Fingerhaus: ALTERO Katalog
FingerHaus

Fingerhaus: ALTERO Katalog


FingerHaus: LIV Katalog
FingerHaus

FingerHaus: LIV Katalog


House and TreeParksHouse and PinMusterhausHouse on HandAnbieter