1. AnbieterArrow Icon
  2. FingerHausArrow Icon
  3. Kundenhaus - Frei geplant
Slide 1
Slide 2
Slide 3
Slide 4
Slide 5
Slide 6
Slide 7
Slide 8
Slide 9
Slide 10
Slide 11
FH_Logo_Pos_RGB_2020.png
FingerHausKundenhaus - Frei geplant
homeKlassische Familienhäuser
livingArea184 m²
energyStandardEffizienzhaus 55
Preis anfragen
Katalog bestellen

Kundenhaus - Frei geplant

Sonne von morgens bis abends

Ein ganz besonderes Finger-Haus mit "Wow"-Effekt und Hanglage: schlicht und gradlinig von der Vorderseite. Wer sich das frei geplante Familienhaus von der Seite anschaut, betrachtet einen großzügigen Balkon auf Stützen mit einer breiten Glasfront. Angesichts der Hanglage und der geringen Grundstücksgröße kam ein dreigeschossiger Grundriss infrage. Ein besonderes Highlight im inneren ist der rund 70 Quadratmeter große Wohnbereich mit dem fünf Meter hohen Luftraum über dem Sofa. Das architektonische Highlight des frei geplanten Hauses zusammen mit der hervorragenden Dämmung und der Fußbodenheizung schaffen auf allen Etagen echtes Wohlfühlklima für alle Bewohner.

Hausdaten

Hausart Icon
HausartEinfamilienhaus
Bauweise Icon
BauweiseHolz-Tafelbau
Anzahl Räume Icon
Anzahl Räume8
Baustil Icon
BaustilKlassische Familienhäuser
Fassade Icon
FassadePutz
Außenmaße Icon
Außenmaße10.82 m x 9.62 m
Wohnfläche Icon
Wohnfläche184.07 m²
Dachform Icon
DachformSattel-/Giebeldach
Etagen Icon
Etagen1.5
Energiestandard Icon
EnergiestandardEffizienzhaus 55
Immobilientyp Icon
ImmobilientypKundenhaus
Dachneigung Icon
Dachneigung32°
Kniestock Icon
Kniestock0.8 m
Mittlerer U-Wert Icon
Mittlerer U-Wert0.12 W/m²K
Hauseigenschaften Icon
HauseigenschaftenKeller, Terasse, Viel Glas, Gästezimmer, Balkon
Hausdämmstoff Icon
HausdämmstoffMineralfaser (Glaswolle, Steinwolle)
Heizungsart Icon
HeizungsartWärmepumpe (Luft, Wasser, oder beides)
Pfeil nach unten linksWir schaffen Platz für Ihre Träume

Grundriss

Grundriss Keller - Frei geplant
Kundenhaus - Frei geplant Grundriss (Keller)Wohnfläche KG: 53,57 m²
Grundriss Erdgeschoss - Frei geplant
Kundenhaus - Frei geplant Grundriss (EG)Wohnfläche EG: 53,57 m²
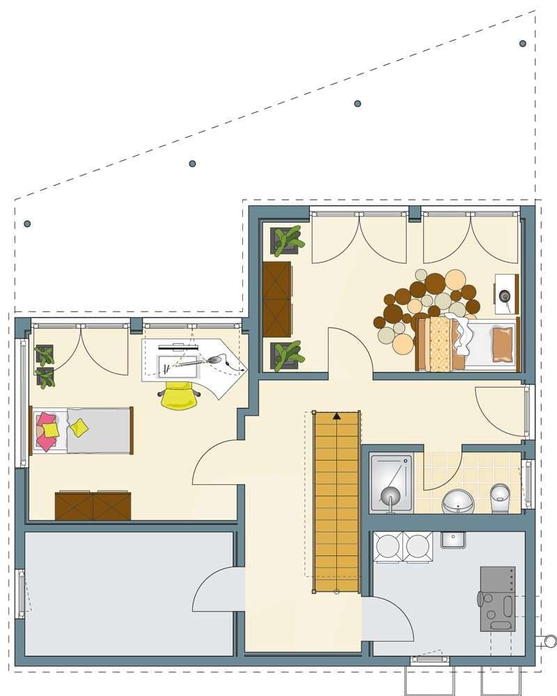
Grundriss Dachgeschoss - Frei geplant
Kundenhaus - Frei geplant Grundriss (DG)Wohnfläche DG: 42,45 m²

Unser Team vor Ort

FingerHaus TeamFachberater*in bei FingerHaus
Default Avatar
Wir beraten Sie gerne!Arrow Icon

Kataloge

Fingerhaus: MEDLEY Katalog
FingerHaus

Fingerhaus: MEDLEY Katalog


Fingerhaus: DUO Katalog
FingerHaus

Fingerhaus: DUO Katalog


Fingerhaus: ALTERO Katalog
FingerHaus

Fingerhaus: ALTERO Katalog


FingerHaus: LIV Katalog
FingerHaus

FingerHaus: LIV Katalog


House and TreeParksHouse and PinMusterhausHouse on HandAnbieter
FingerHaus Kundenhaus - Frei geplant