1. AnbieterArrow Icon
  2. Fertighaus WEISSArrow Icon
  3. Fertighaus WEISS - Musterhaus BALANCE Poing bei München
Slide 1
Location Icon
Slide 2
Location Icon
Slide 3
Location Icon
Slide 4
Location Icon
Slide 5
Location Icon
Slide 6
Location Icon
Slide 7
Location Icon
Slide 8
Location Icon
Slide 9
Location Icon
Slide 10
Location Icon
Slide 11
Location Icon
Slide 12
Location Icon
Facebook_Logo_FH_RGB_ohne Slogan.jpg
Fertighaus WEISSFertighaus WEISS - Musterhaus BALANCE Poing bei München
homeKlassische Familienhäuser
livingArea181 m²
energyStandardEffizienzhaus 55
Preis anfragen

Fertighaus WEISS - Musterhaus BALANCE Poing bei München

Leben im Gleichgewicht

Smart und vorausschauend geplant

Ein zusätzliches Zimmer und ein Duschbad im Erdgeschoss, ein durchdachtes Konzept zur Erzeugung, Speicherung und Nutzung eigenen Stroms sowie ein offenes, erweiterbares Smart-Home-System: Diese Eigenschaften machen das Musterhaus Balance von Fertighaus WEISS im Bauzentrum Poing nahe München zu einem Haus fürs Leben. Geplant für eine vierköpfige Familie, bietet das Haus rund 181 Quadratmeter nutzbare Bodenfläche. Im Erdgeschoss bildet ein offener Koch- und Essbereich das Zentrum. Das zurückversetzte Wohnzimmer bietet Raum für Entspannung. Die zentrale Eichenholztreppe, gefertigt in der werkseigenen Schreinerei des schwäbischen Fertighausherstellers, wurde als besonderes Möbelstück gestaltet. Sie verbindet nicht nur die Geschosse des Hauses miteinander, sondern auch die Räume im Erdgeschoss. Der Elterntrakt im Dachgeschoss verfügt über einen eigenen Zugang zum Familienbad, während für den Nachwuchs zwei geräumige Zimmer mit Fenstern auf jeweils zwei Seiten geschaffen wurden.

Hausdaten

Hausart Icon
HausartEinfamilienhaus
Bauweise Icon
BauweiseHolz-Tafelbau
Anzahl Räume Icon
Anzahl Räume5
Baustil Icon
BaustilKlassische Familienhäuser
Fassade Icon
FassadePutz
Außenmaße Icon
Außenmaße11.7 m x 90 m
Wohnfläche Icon
Wohnfläche181 m²
Dachform Icon
DachformSattel-/Giebeldach
Energiestandard Icon
EnergiestandardEffizienzhaus 55
Immobilientyp Icon
ImmobilientypMusterhaus
Dachneigung Icon
Dachneigung25°
Kniestock Icon
Kniestock2.2 m
Hauseigenschaften Icon
HauseigenschaftenTerasse
Heizungsart Icon
HeizungsartWärmepumpe (Luft, Wasser, oder beides)
Pfeil nach unten linksWir schaffen Platz für Ihre Träume

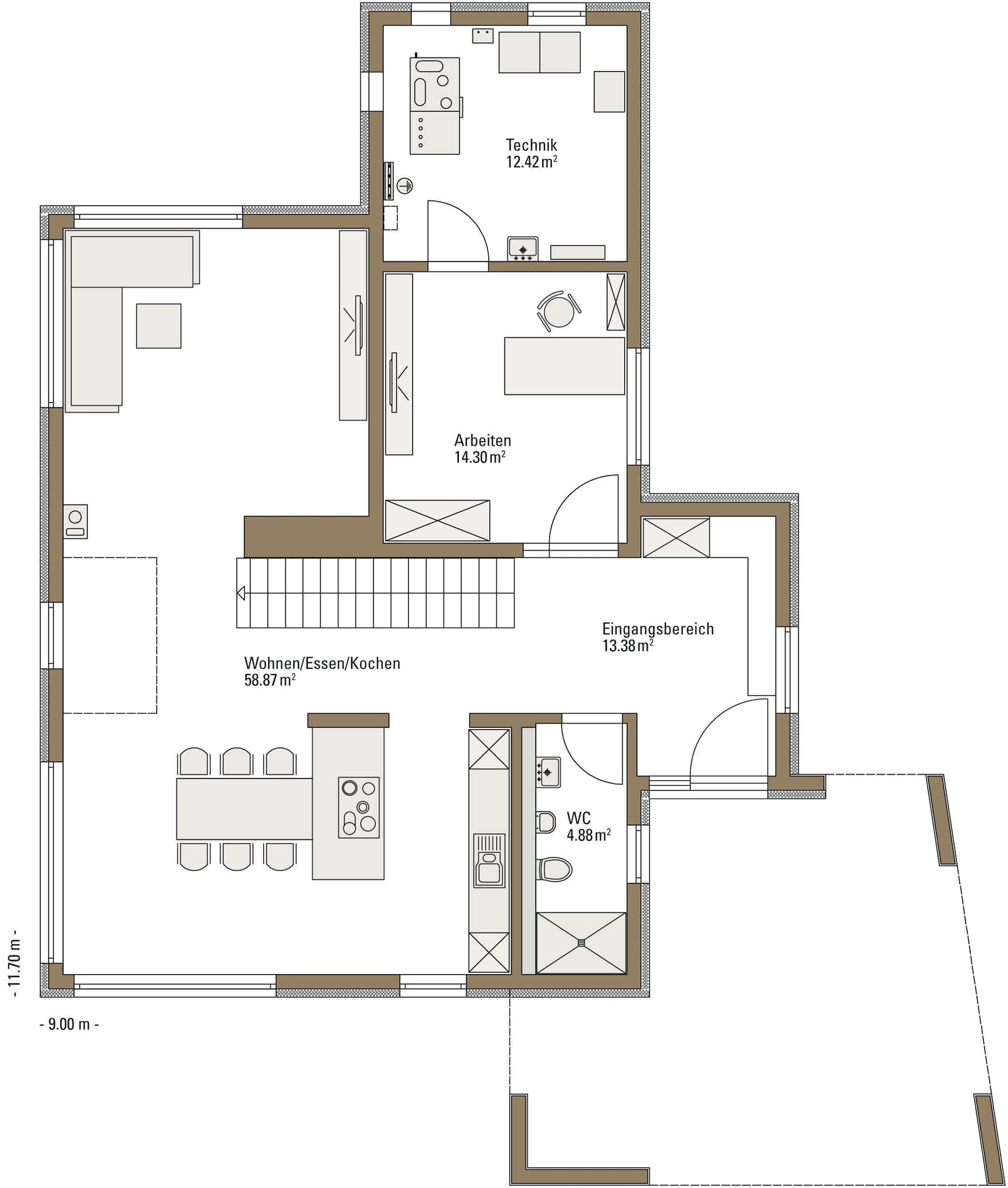
Grundriss

no description
Fertighaus WEISS - Musterhaus BALANCE Poing bei München Grundriss (EG)
no description
Fertighaus WEISS - Musterhaus BALANCE Poing bei München Grundriss (DG)

Unser Team vor Ort

Laurin NixFachberater*in bei Fertighaus WEISS
no description
Wir beraten Sie gerne!Arrow Icon
Marco KarnstedtFachberater*in bei Fertighaus WEISS
no description
Eva Liptay-KohlFachberater*in bei Fertighaus WEISS
no description
House and TreeParksHouse and PinMusterhausHouse on HandAnbieter