1. AnbieterArrow Icon
  2. Fertighaus WEISSArrow Icon
  3. Fertighaus WEISS - Plusenergiehaus Erlangen
Slide 1
Location Icon
Slide 2
Location Icon
Slide 3
Location Icon
Slide 4
Location Icon
Slide 5
Location Icon
Slide 6
Location Icon
Slide 7
Location Icon
Slide 8
Location Icon
Slide 9
Location Icon
Facebook_Logo_FH_RGB_ohne Slogan.jpg
Fertighaus WEISSFertighaus WEISS - Plusenergiehaus Erlangen
homeKlassische Familienhäuser
livingArea163 m²
energyStandardEffizienzhaus 55
Preis anfragen

Fertighaus WEISS - Plusenergiehaus Erlangen

Fertighaus WEISS 

Mit seiner großzügig verglasten Terrassenseite und dem asymmetrischen Querbau mit Pultdach präsentiert sich das Plusenergiehaus elegant und sonnendurchflutet. Ein überdachter Eingangsbereich und die Kombination aus Putz- und Holzfassade lassen das WEISS-Musterhaus in einer zeitgemäßen Optik erscheinen. Großzügigkeit pur im Erdgeschoss, Platz und Raum für bis zu drei Kinderzimmer im Dachgeschoss. Und die Haustechnik ist wie gewohnt vom Feinsten! 

Hausdaten

Hausart Icon
HausartEinfamilienhaus
Bauweise Icon
BauweiseHolz-Tafelbau
Anzahl Räume Icon
Anzahl Räume5
Baustil Icon
BaustilKlassische Familienhäuser
Fassade Icon
FassadePutz
Außenmaße Icon
Außenmaße11.4 m x 8.3 m
Wohnfläche Icon
Wohnfläche163.3 m²
Dachform Icon
DachformSattel-/Giebeldach
Energiestandard Icon
EnergiestandardEffizienzhaus 55
Immobilientyp Icon
ImmobilientypMusterhaus
Dachneigung Icon
Dachneigung32°
Kniestock Icon
Kniestock1.6 m
Hauseigenschaften Icon
HauseigenschaftenDritter Giebel
Heizungsart Icon
HeizungsartWärmepumpe (Luft, Wasser, oder beides)
Pfeil nach unten linksWir schaffen Platz für Ihre Träume

Grundriss

Grundriss Erdgeschoss mit offenem Wohn-Essbereich, Küche, Diele, Garderobe, Gäste-WC und Hauswirtschaftsraum
Fertighaus WEISS - Plusenergiehaus Erlangen Grundriss (EG)
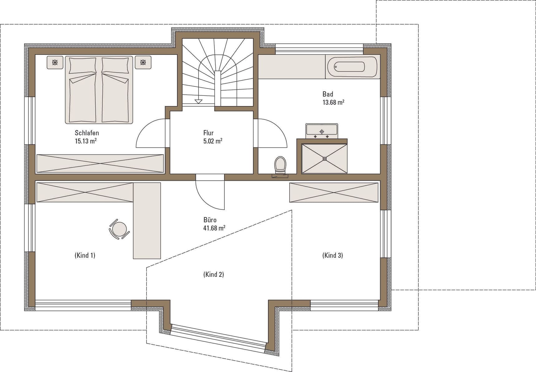
Grundriss Obergeschoss mit Elternschlafzimmer, Badezimmer, Büro, drei Kinderzimmern und zentralem Flur
Fertighaus WEISS - Plusenergiehaus Erlangen Grundriss (DG)

Öffnungszeiten

Montag:Geschlossen
Dienstag:Geschlossen
Mittwoch:09:00 - 16:00 Uhr
Donnerstag:09:00 - 16:00 Uhr
Freitag:09:00 - 16:00 Uhr
Samstag:09:00 - 16:00 Uhr
Sonntag:09:00 - 16:00 Uhr

(öffnet Freitag um 13:00 Uhr)

Maifeiertag
10:00 - 17:00 Uhr

Adresse

Im Gewerbepark 30
Heßdorf 91093

Anfahrt planen

Beratungstermin

Fertighaus Team in Heßdorf

Fertighaus WEISS - Plusenergiehaus Erlangen

360°Rundgang starten
no description

Unser Team vor Ort

Lisa EbnerFachberater*in bei Fertighaus WEISS
no description
Wir beraten Sie gerne!Arrow Icon
Matthias HändlFachberater*in bei Fertighaus WEISS
no description
House and TreeParksHouse and PinMusterhausHouse on HandAnbieter