1. AnbieterArrow Icon
  2. Beilharz HausArrow Icon
  3. Beilharz - Musterhaus 'Avantgarde' in Stuttgart-Fellbach
Slide 1
Location Icon
Slide 2
Location Icon
Slide 3
Location Icon
Slide 4
Location Icon
Slide 5
Location Icon
Slide 6
Location Icon
Slide 7
Location Icon
beilharz haus_gross.jpg
Beilharz HausBeilharz - Musterhaus 'Avantgarde' in Stuttgart-Fellbach
homeSchwedenhäuser
livingArea174 m²
energyStandardEffizienzhaus 55
Preis anfragen

Beilharz - Musterhaus 'Avantgarde' in Stuttgart-Fellbach

Die neue Ära der Architektur

Avantgarde verkörpert eine neue Ära in der Architektur, die dem Zeitgeist der Gesellschaft entspricht. Das Ensemble Avantgarde steht für das intelligente Bauen der Zukunft und zeigt die neue Freiheit des Wohnens: wirtschaftlich, freundlich und flexibel.

Hausdaten

Hausart Icon
HausartEinfamilienhaus
Bauweise Icon
BauweiseHolz-Tafelbau
Anzahl Räume Icon
Anzahl Räume10
Baustil Icon
BaustilSchwedenhäuser
Fassade Icon
FassadePutz
Außenmaße Icon
Außenmaße12.53 m x 8.33 m
Wohnfläche Icon
Wohnfläche173.9 m²
Dachform Icon
DachformSattel-/Giebeldach
Energiestandard Icon
EnergiestandardEffizienzhaus 55
Immobilientyp Icon
ImmobilientypMusterhaus
Dachneigung Icon
Dachneigung33°
Kniestock Icon
Kniestock1.8 m
Hausdämmstoff Icon
HausdämmstoffHolzfaser- und Zellulosedämmstoffe
Heizungsart Icon
HeizungsartWärmepumpe (Luft, Wasser, oder beides)
Pfeil nach unten linksWir schaffen Platz für Ihre Träume

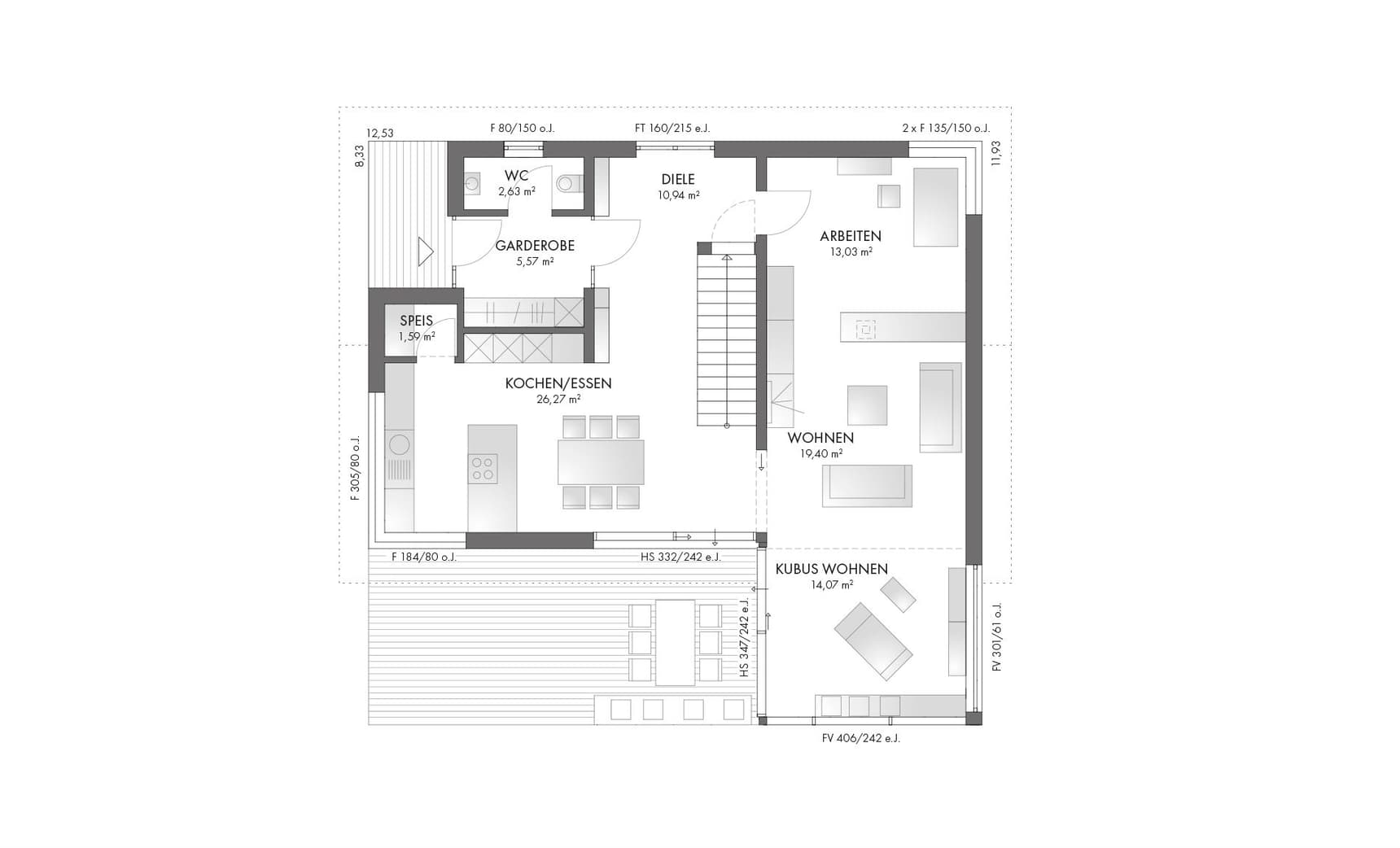
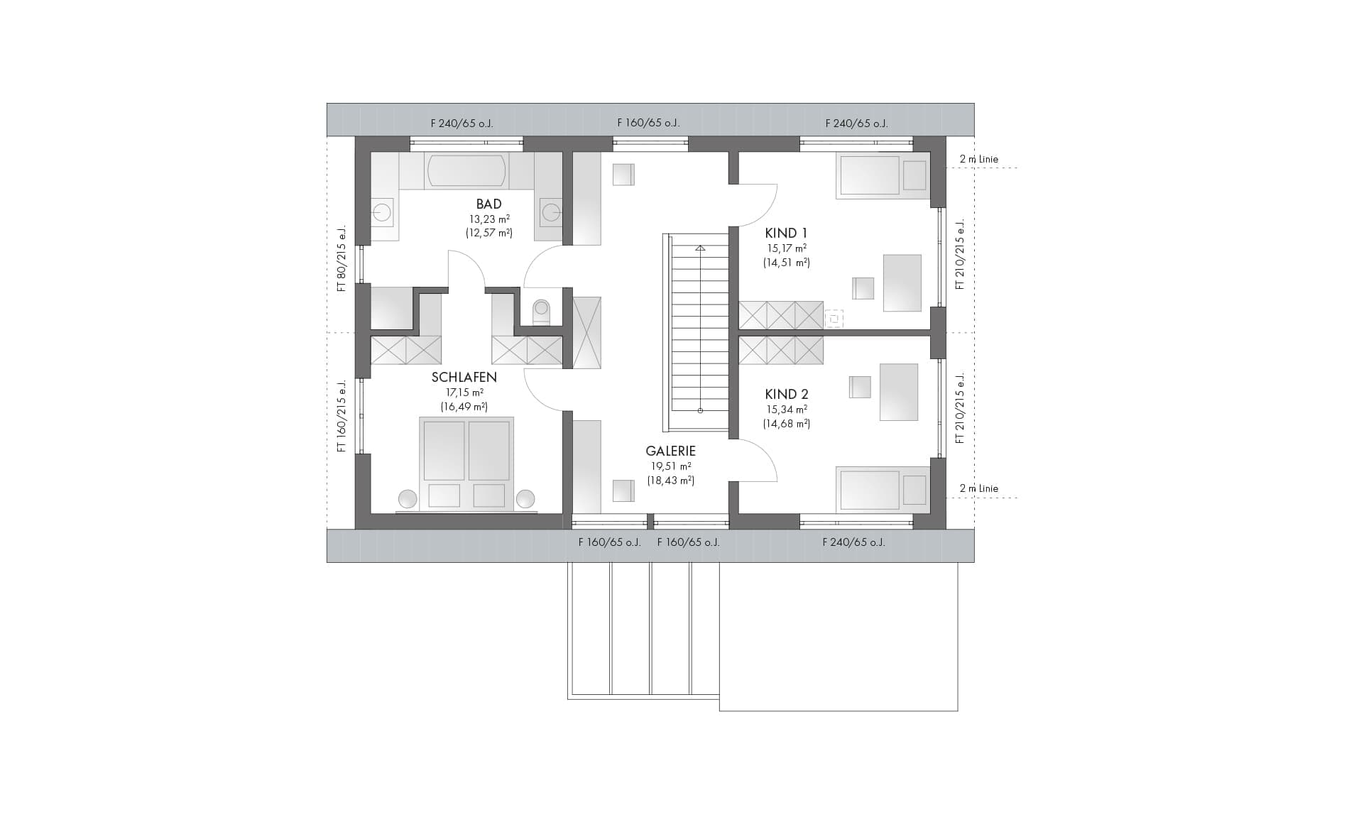
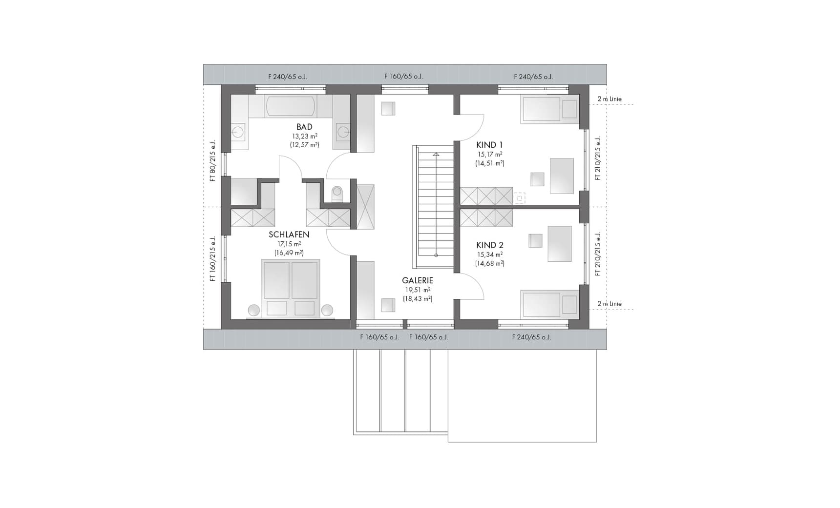
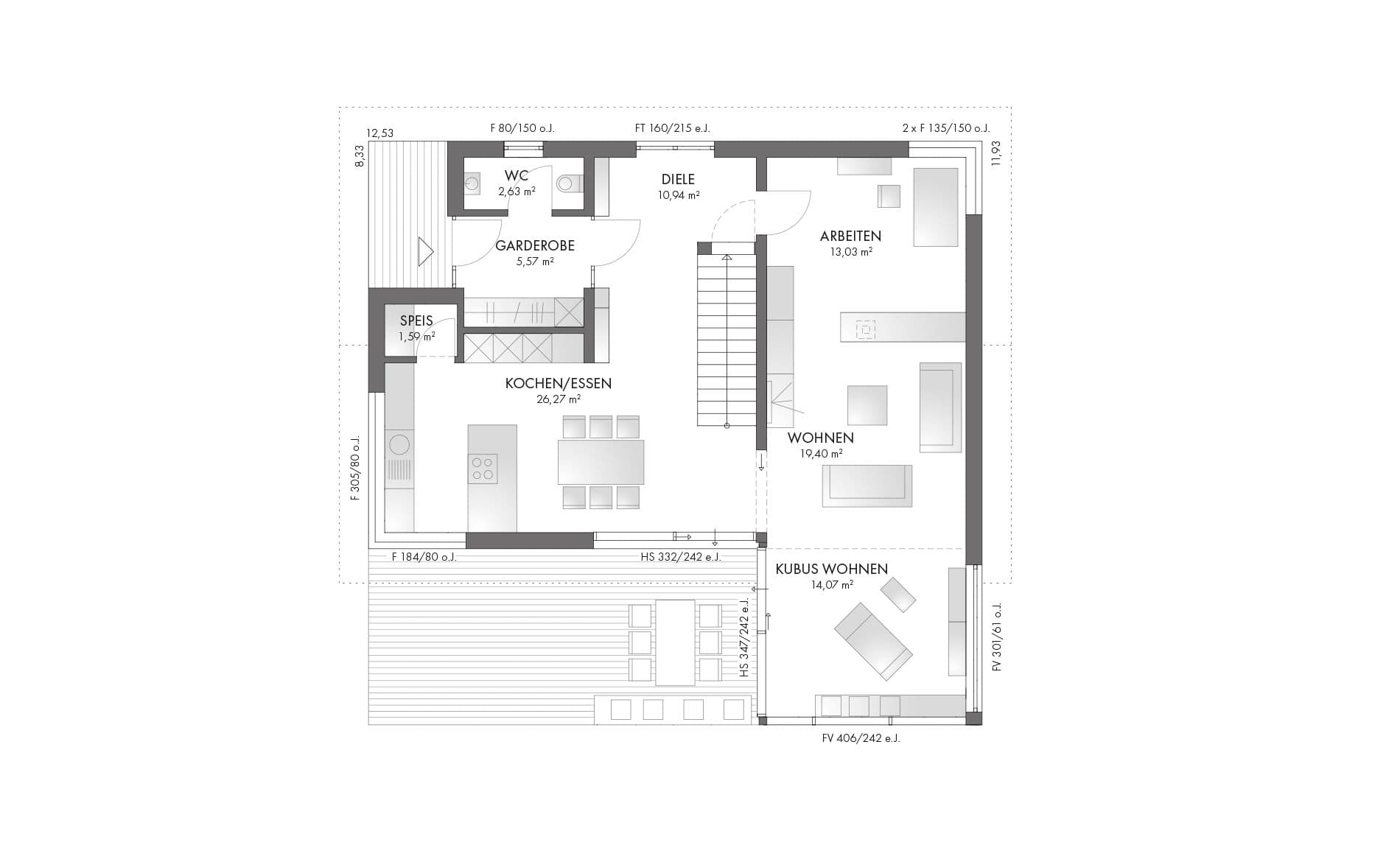
Grundriss

no description
Beilharz - Musterhaus 'Avantgarde' in Stuttgart-Fellbach Grundriss (EG)Wohnfläche EG: 93,5 m²
no description
Beilharz - Musterhaus 'Avantgarde' in Stuttgart-Fellbach Grundriss (DG)Wohnfläche DG: 80,4 m²

Öffnungszeiten

Montag:Geschlossen
Dienstag:Geschlossen
Mittwoch:09:00 - 16:00 Uhr
Donnerstag:09:00 - 16:00 Uhr
Freitag:09:00 - 16:00 Uhr
Samstag:09:00 - 16:00 Uhr
Sonntag:09:00 - 16:00 Uhr

(öffnet Samstag um 13:00 Uhr)

Adresse

Höhenstraße 21
Fellbach 70736

Anfahrt planen

Beratungstermin

Fertighaus Team in Fellbach
House and TreeParksHouse and PinMusterhausHouse on HandAnbieter