1. AnbieterArrow Icon
  2. Beilharz HausArrow Icon
  3. Beilharz - Musterhaus 'Avance 112' in Vöhringen
Slide 1
Location Icon
Slide 2
Location Icon
Slide 3
Location Icon
Slide 4
Location Icon
Slide 5
Location Icon
Slide 6
Location Icon
Slide 7
Location Icon
beilharz haus_gross.jpg
Beilharz HausBeilharz - Musterhaus 'Avance 112' in Vöhringen
homeKlassische Familienhäuser
livingArea165 m²
Preis anfragen

Beilharz - Musterhaus 'Avance 112' in Vöhringen

Wir freuen uns auf Ihren Besuch in Vöhringen

Erleben Sie in unseren beiden Musterhäusern Avance das Beilharz-Wohlfühlklima mit allen Sinnen und entdecken Sie zahlreiche Ausstattungsmöglichkeiten im Designzentrum. Begegnen Sie unserem Beilharz-Team, das Ihnen gerne die Vorteile unseres Bausystems erläutert und all Ihre Fragen beantwortet.

Das 3-Giebel-Haus Avance 112 verwirklicht ein Mehrwertkonzept, das Beilharz als führenden Hersteller stilvoller, ökologisch gebauter Häuser bestätigt. Höchstes Wohnwohlgefühl, inszeniert durch Helligkeit, Funktionalität und stimmige Proportionen, ist das prägende Merkmal von Avance 112.

Hausdaten

Hausart Icon
HausartEinfamilienhaus
Bauweise Icon
BauweiseHolz-Tafelbau
Anzahl Räume Icon
Anzahl Räume10
Baustil Icon
BaustilKlassische Familienhäuser
Fassade Icon
FassadePutz, Materialkombination
Außenmaße Icon
Außenmaße12.53 m x 7.73 m
Wohnfläche Icon
Wohnfläche165.4 m²
Dachform Icon
DachformSattel-/Giebeldach
Immobilientyp Icon
ImmobilientypMusterhaus
Dachneigung Icon
Dachneigung33°
Kniestock Icon
Kniestock1.8 m
Hauseigenschaften Icon
HauseigenschaftenGästezimmer
Hausdämmstoff Icon
HausdämmstoffHolzfaser- und Zellulosedämmstoffe
Heizungsart Icon
HeizungsartWärmepumpe (Luft, Wasser, oder beides)
Pfeil nach unten linksWir schaffen Platz für Ihre Träume

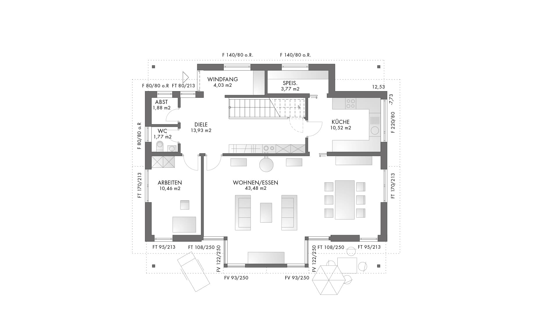
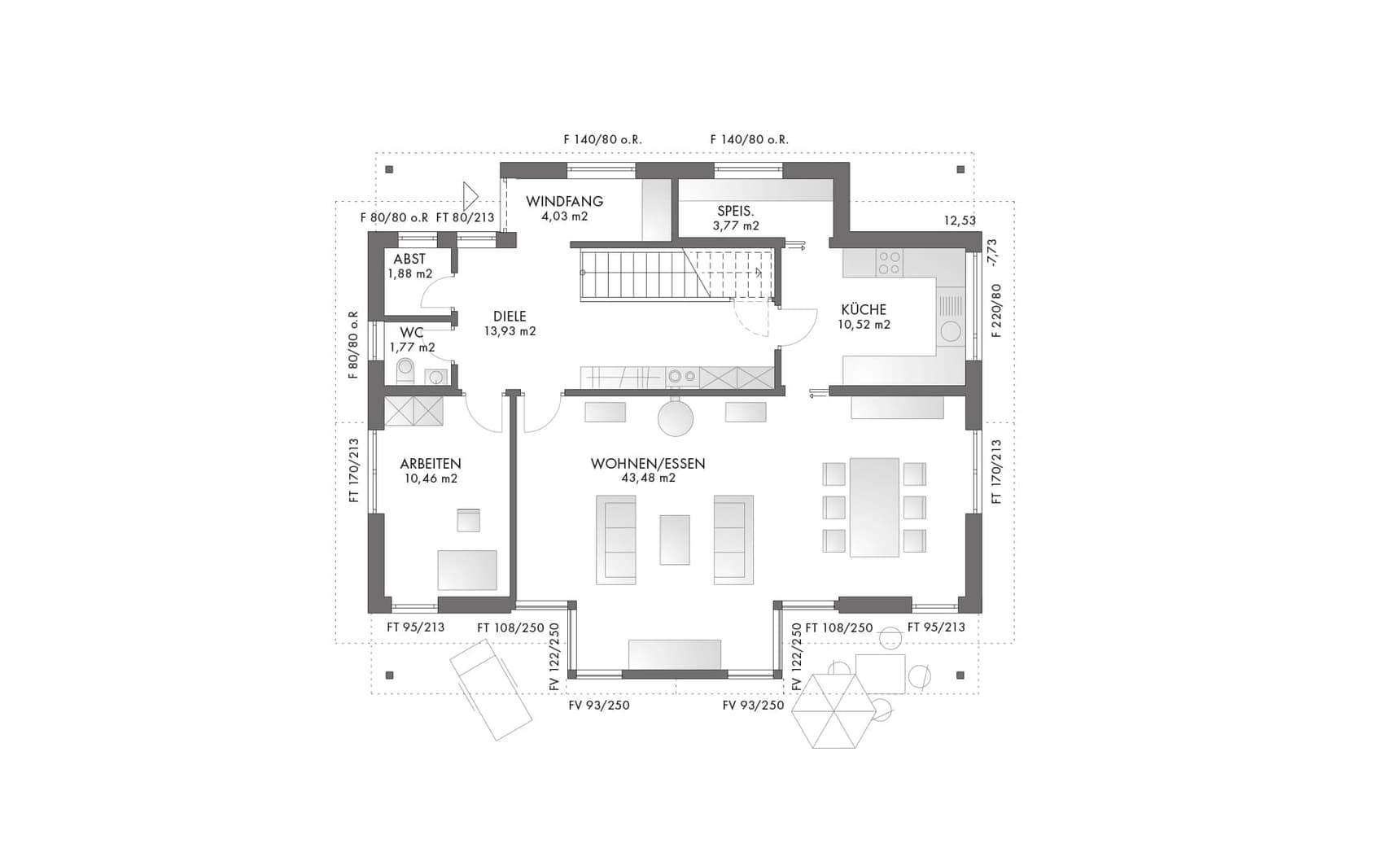
Grundriss

no description
Beilharz - Musterhaus 'Avance 112' in Vöhringen Grundriss (EG)Wohnfläche EG: 89,84 m²
no description
Beilharz - Musterhaus 'Avance 112' in Vöhringen Grundriss (DG)Wohnfläche DG: 75,56 m²

Öffnungszeiten

Montag:Geschlossen
Dienstag:Geschlossen
Mittwoch:Geschlossen
Donnerstag:Geschlossen
Freitag:Geschlossen
Samstag:Geschlossen
Sonntag:Geschlossen

Adresse

Rosenfelder Straße 100
Vöhringen 72189

Anfahrt planen

Beratungstermin

Fertighaus Team in Vöhringen
House and TreeParksHouse and PinMusterhausHouse on HandAnbieter