1. AnbieterArrow Icon
  2. Beilharz HausArrow Icon
  3. Beilharz - Modulhaus Pure 772.457
Slide 1
Slide 2
Slide 3
Slide 4
Slide 5
Slide 6
Slide 7
beilharz haus_gross.jpg
Beilharz HausBeilharz - Modulhaus Pure 772.457
homeKlassische Familienhäuser
livingArea131 m²
energyStandardEffizienzhaus 55
Preis anfragen
Katalog bestellen

Beilharz - Modulhaus Pure 772.457

Junges, modernes Wohnen

Im Modulhaus PURE beeindrucken Leichtigkeit und Einfachheit des offenen Wohnkonzepts

Der nahtlose Übergang von der Küche zum Wohn-Ess-Bereich sorgt für eine offene Atmosphäre und bietet Raum für Kommunikation. Die geradlinige Treppe bildet den Mittelpunkt des Hauses. Als prägendes Element von PURE eröffnet sie zusätzliche Perspektiven für Kreativität bei der Inneneinrichtung. Wahlweise ist PURE auch als modernes Flachdachhaus erhältlich.

Hausdaten

Hausart Icon
HausartEinfamilienhaus
Bauweise Icon
BauweiseHolz-Tafelbau
Baustil Icon
BaustilKlassische Familienhäuser
Fassade Icon
FassadePutz
Wohnfläche Icon
Wohnfläche131.19 m²
Dachform Icon
DachformSattel-/Giebeldach
Energiestandard Icon
EnergiestandardEffizienzhaus 55
Immobilientyp Icon
ImmobilientypKundenhaus
Dachneigung Icon
Dachneigung30°
Kniestock Icon
Kniestock1.8 m
Hausdämmstoff Icon
HausdämmstoffHolzfaser- und Zellulosedämmstoffe
Heizungsart Icon
HeizungsartWärmepumpe (Luft, Wasser, oder beides)
Pfeil nach unten linksWir schaffen Platz für Ihre Träume

Grundriss

no description
Beilharz - Modulhaus Pure 772.457 Grundriss (EG)Wohnfläche EG: 70,35 m²
no description
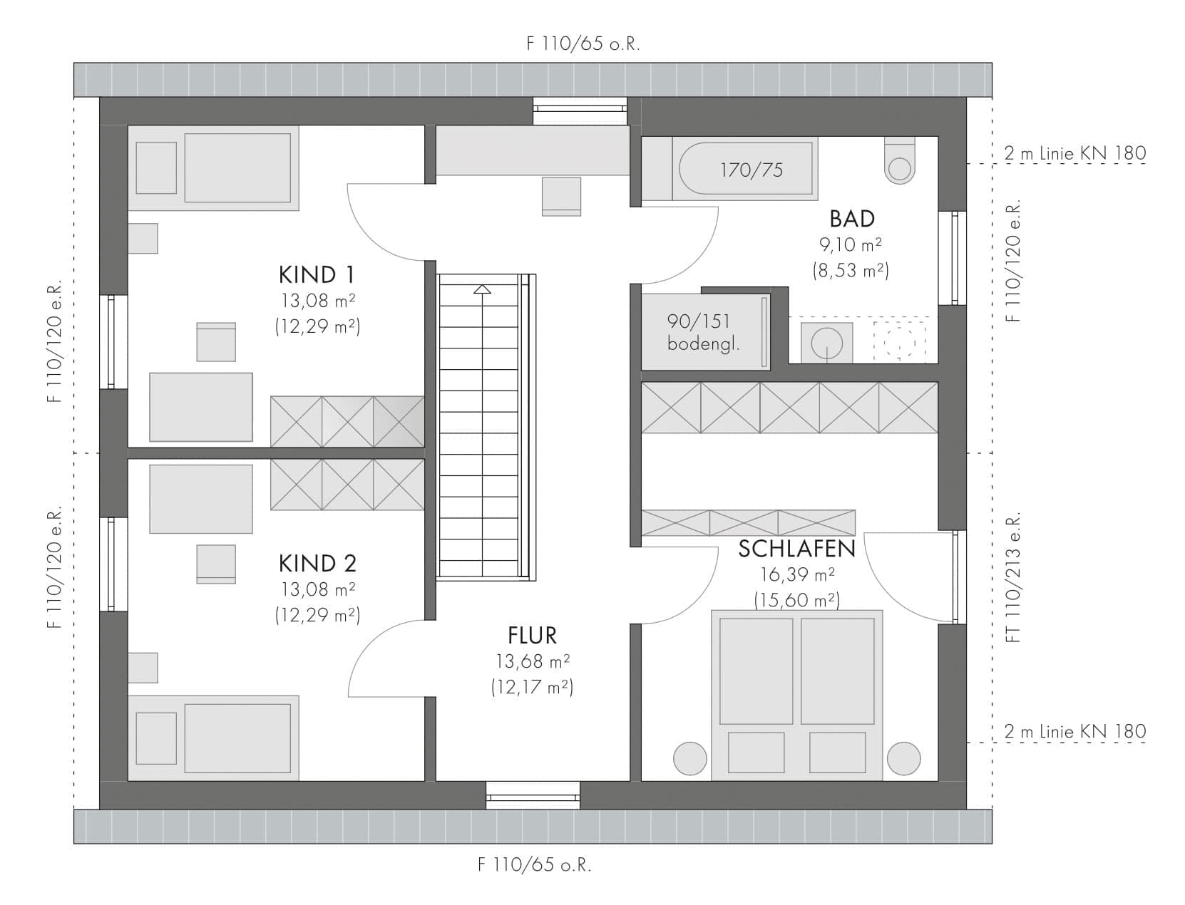
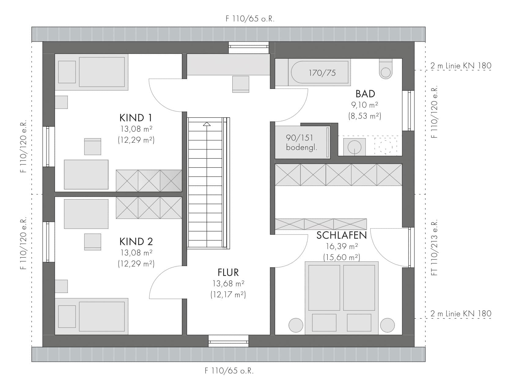
Beilharz - Modulhaus Pure 772.457 Grundriss (DG)
House and TreeParksHouse and PinMusterhausHouse on HandAnbieter