1. AnbieterArrow Icon
  2. WeberHausArrow Icon
  3. Vorausschauend geplantes Energiewunder
Slide 1
Slide 2
Slide 3
Slide 4
Slide 5
Slide 6
Slide 7
Logo WeberHaus
WeberHausVorausschauend geplantes Energiewunder
homeKlassische Familienhäuser
livingArea261 m²
energyStandardEffizienzhaus 40 Plus
Preis anfragen
Katalog bestellen

Vorausschauend geplantes Energiewunder

In Frankreich erfüllte sich Familie Reiter ihren Traum vom Eigenheim. Dieses Haus erzeugt nicht nur mehr Energie, als es verbraucht, es verfügt darüber hinaus auch noch über eine vorgeplante Einliegerwohnung. Unabhängigkeit und Flexibilität sind der Baufamilie sehr wichtig gewesen, weshalb sie sich auch für ein Haus in Fertigbauweise aus Holz entschieden haben. So gibt es keine Überraschungen auf dem Weg zum eigenen Zuhause.

Hier geht's zur Bauherrengeschichte

Hausdaten

Hausart Icon
HausartEinfamilienhaus
Bauweise Icon
BauweiseHolz-Tafelbau
Anzahl Räume Icon
Anzahl Räume7
Baustil Icon
BaustilKlassische Familienhäuser
Fassade Icon
FassadePutz
Außenmaße Icon
Außenmaße1310 m x 960 m
Wohnfläche Icon
Wohnfläche260.95 m²
Dachform Icon
DachformSattel-/Giebeldach
Energiestandard Icon
EnergiestandardEffizienzhaus 40 Plus
Immobilientyp Icon
ImmobilientypKundenhaus
Dachneigung Icon
Dachneigung35°
Kniestock Icon
Kniestock1.8 m
Hauseigenschaften Icon
HauseigenschaftenGästezimmer
Hausdämmstoff Icon
HausdämmstoffMineralfaser (Glaswolle, Steinwolle)
Heizungsart Icon
HeizungsartWärmepumpe (Luft, Wasser, oder beides)
Pfeil nach unten linksWir schaffen Platz für Ihre Träume

Grundriss

no description
Vorausschauend geplantes Energiewunder Grundriss (Keller)
no description
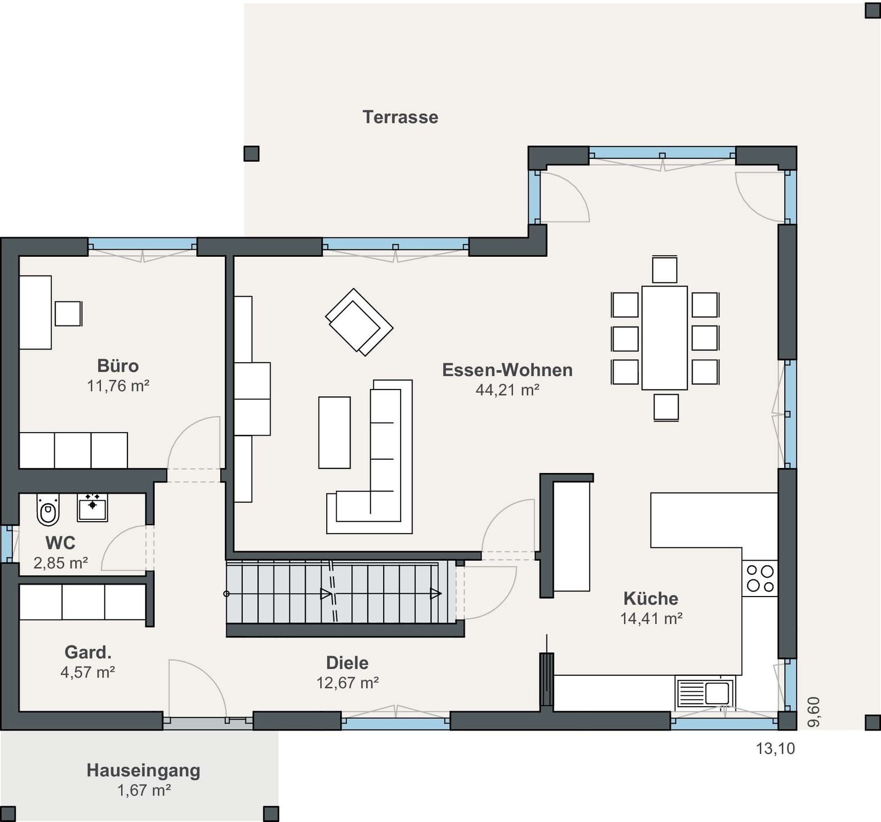
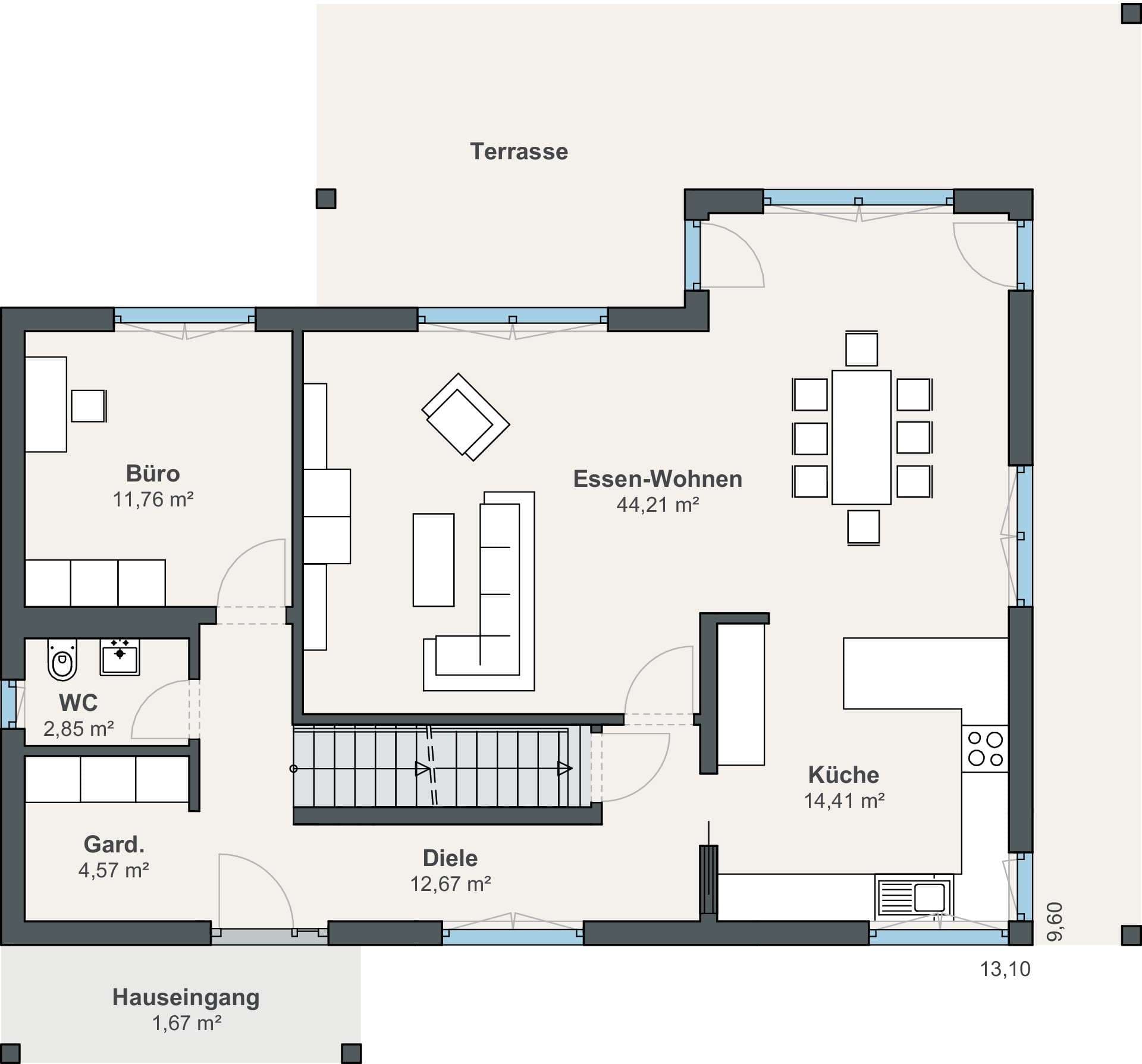
Vorausschauend geplantes Energiewunder Grundriss (EG)Wohnfläche EG: 92,14 m²
no description
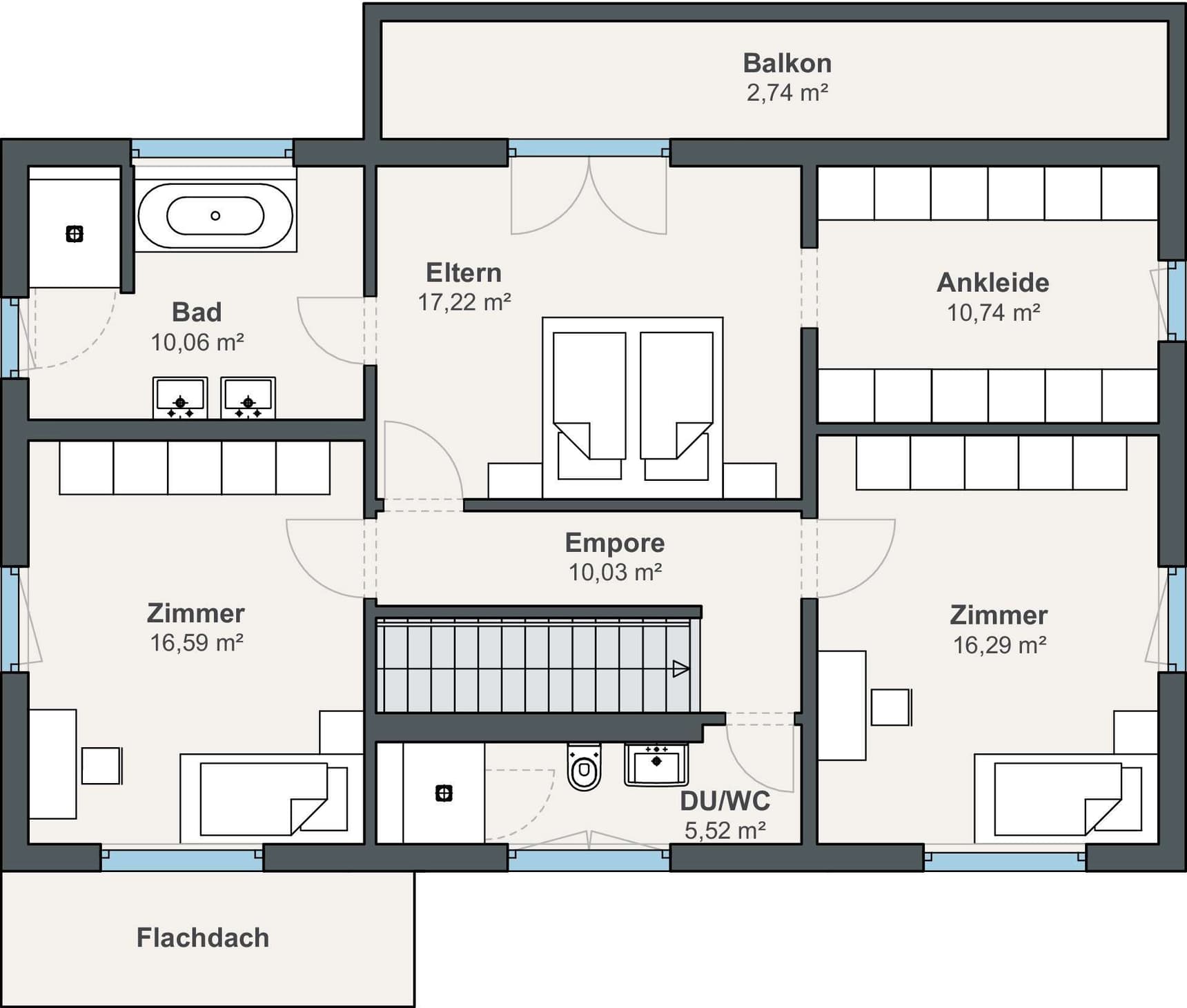
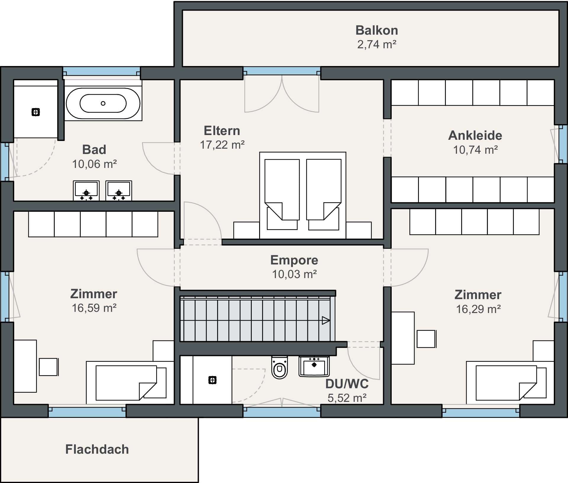
Vorausschauend geplantes Energiewunder Grundriss (DG)Wohnfläche DG: 89,19 m²

Kataloge

WeberHaus: OPTION
WeberHaus

WeberHaus: OPTION


WeberHaus: Objektbau Katalog
WeberHaus

WeberHaus: Objektbau Katalog


WeberHaus: Hauskatalog
WeberHaus

WeberHaus: Hauskatalog


House and TreeParksHouse and PinMusterhausHouse on HandAnbieter