1. AnbieterArrow Icon
  2. Haas Fertigbau GmbHArrow Icon
  3. Einfamilienhaus Frea E122
Slide 1
Slide 2
Slide 3
Haas_Logo.png
Haas Fertigbau GmbHEinfamilienhaus Frea E122
homeKlassische Familienhäuser
livingArea122 m²
Preis anfragen
Katalog bestellen

Einfamilienhaus Frea E122

Frea. Zeitlose Schönheit. Stilvolle Klarheit.

Frea überzeugt nicht nur mit der klaren Form und modernen Kubus-Architektur sondern auch in Bezug auf Energieeffizienz und Nachhaltigkeit. Mit der geometrischen Außenhülle von Frea, können sie jeden Zentimeter Ihres Hauses nutzen – so wie sie möchten. Trotz aller Einfachheit ist das Haas Haus Frea nicht kalt und bietet Raum für Ihre Wohnideen und Alltagsbedürfnisse.

Weitere Informationen zum Einfamilienhaus Frea E122 von Haas Haus.

Hausdaten

Hausart Icon
HausartEinfamilienhaus
Anzahl Räume Icon
Anzahl Räume5
Baustil Icon
BaustilKlassische Familienhäuser
Außenmaße Icon
Außenmaße7.7 m x 10.3 m
Wohnfläche Icon
Wohnfläche122 m²
Dachform Icon
DachformFlachdach
Etagen Icon
Etagen2
Immobilientyp Icon
ImmobilientypPlanungsidee
Pfeil nach unten linksWir schaffen Platz für Ihre Träume

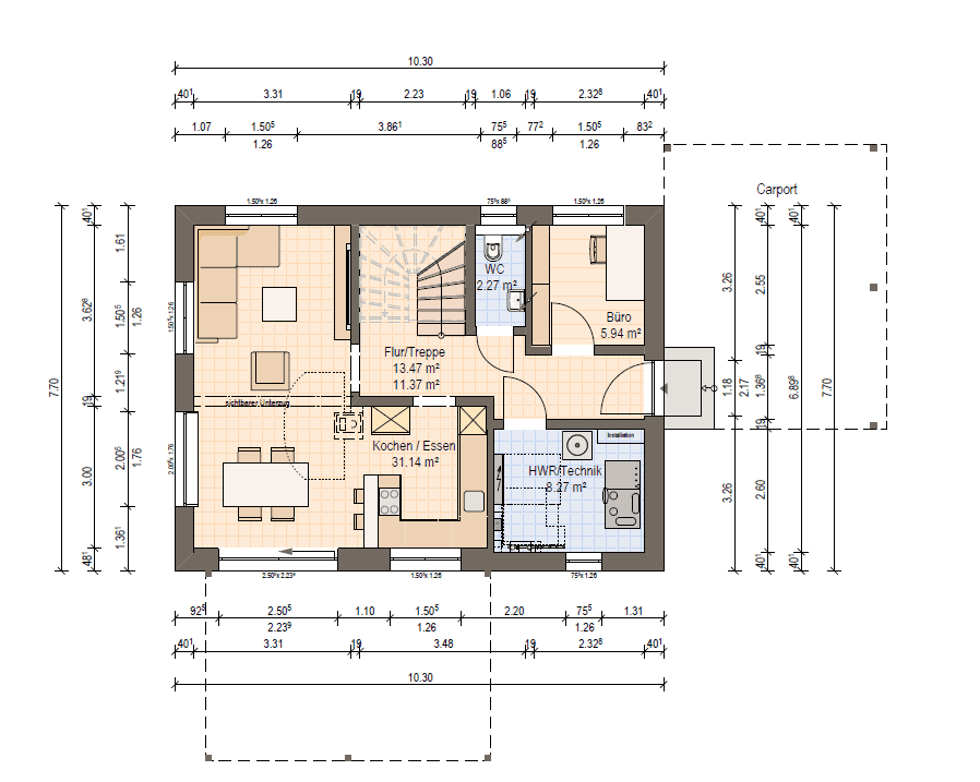
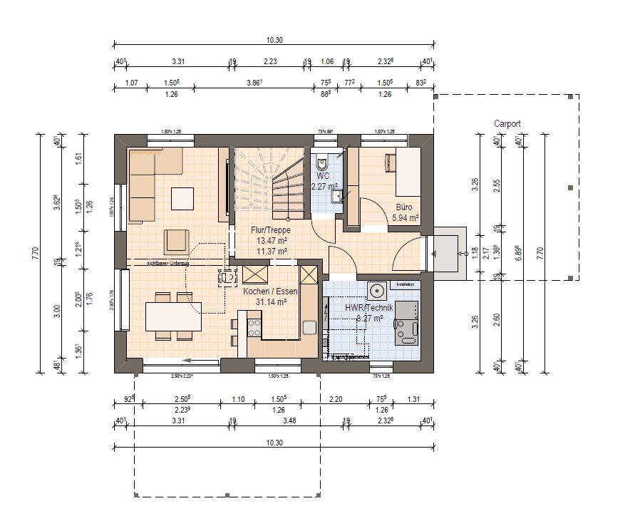
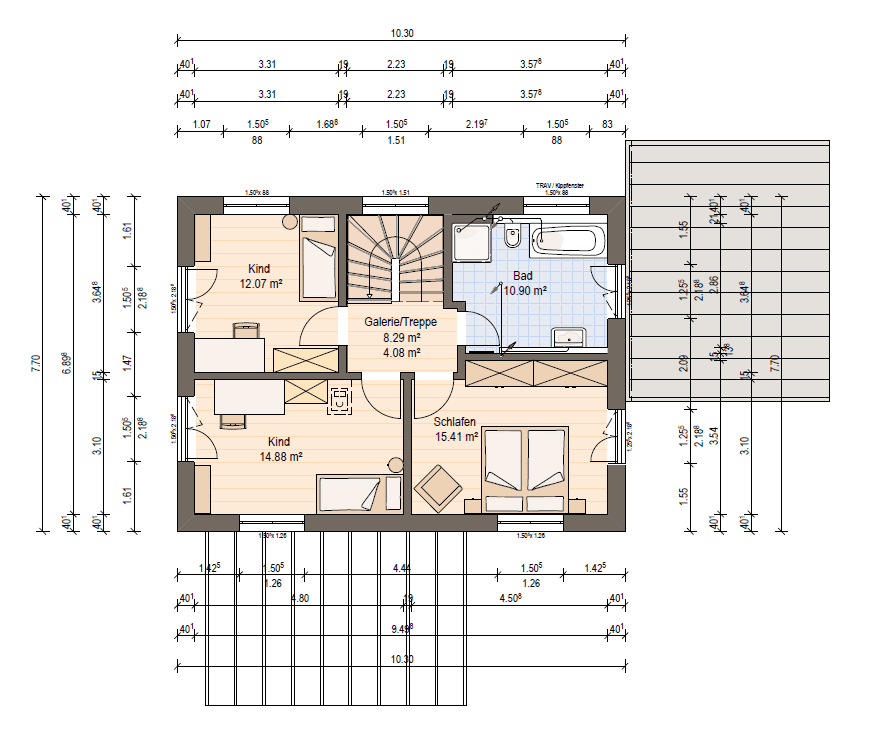
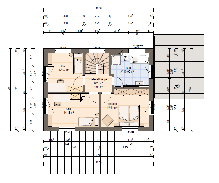
Grundriss

Grundriss_Haas_EInfamilienhaus_Frea_EG.PNG
Einfamilienhaus Frea E122 Grundriss (EG)
Grundriss_Haas_EInfamilienhaus_Frea_DG.PNG
Einfamilienhaus Frea E122 Grundriss (OG)

Unser Team vor Ort

Haas Haus Team FalkenbergFachberater*in bei Haas Fertigbau GmbH
Default Avatar
Wir beraten Sie gerne!Arrow Icon

Kataloge

Haas Haus: Hauskatalog
Haas Fertigbau GmbH

Haas Haus: Hauskatalog


House and TreeParksHouse and PinMusterhausHouse on HandAnbieter