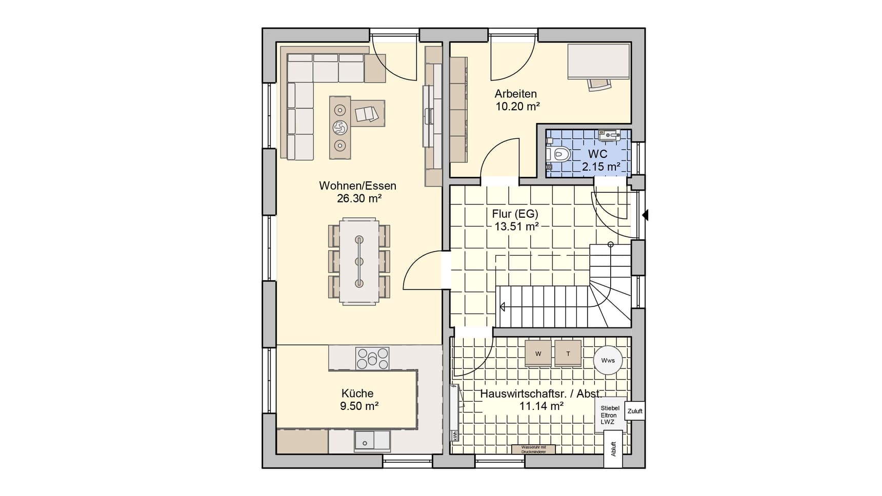
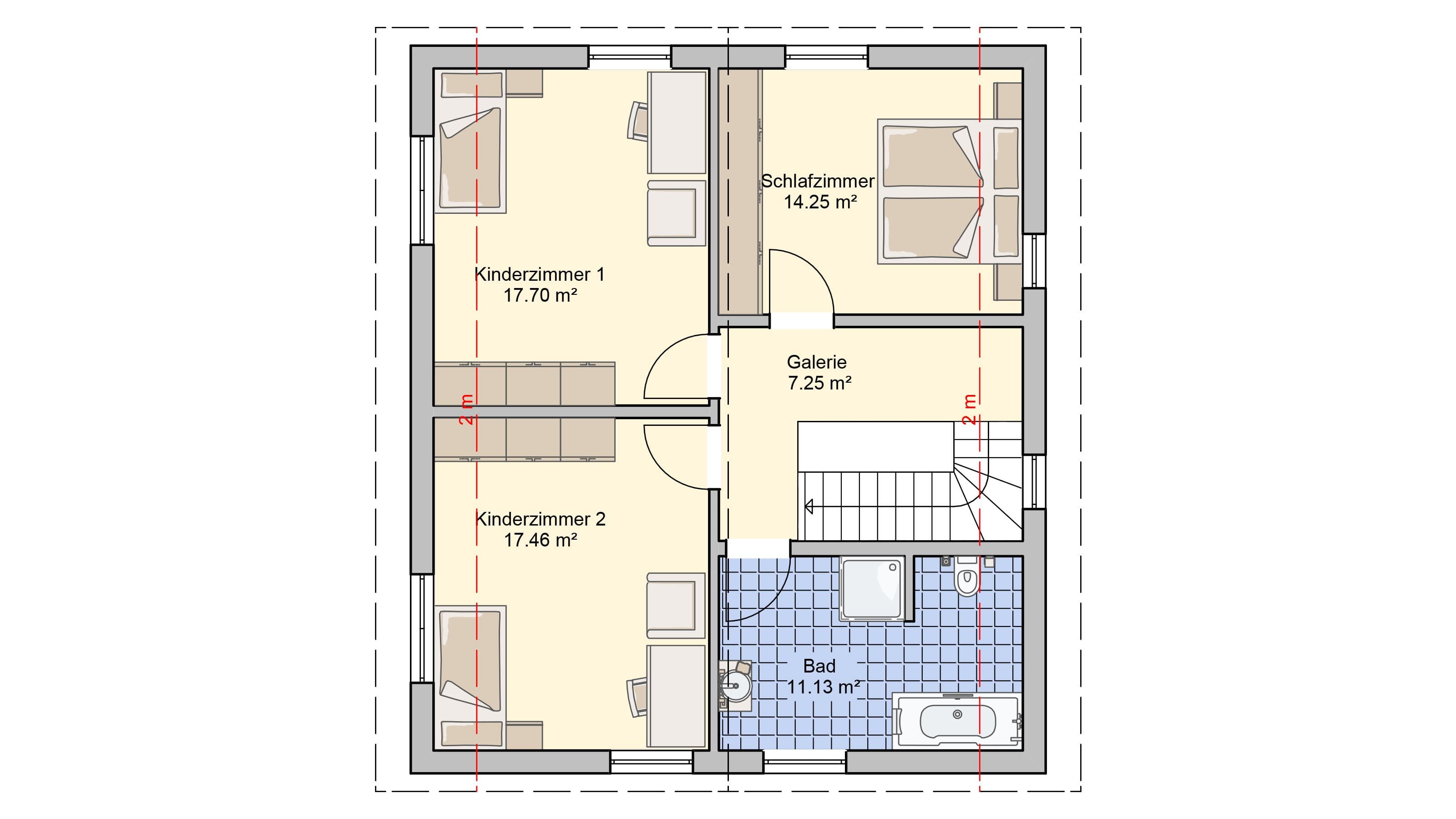
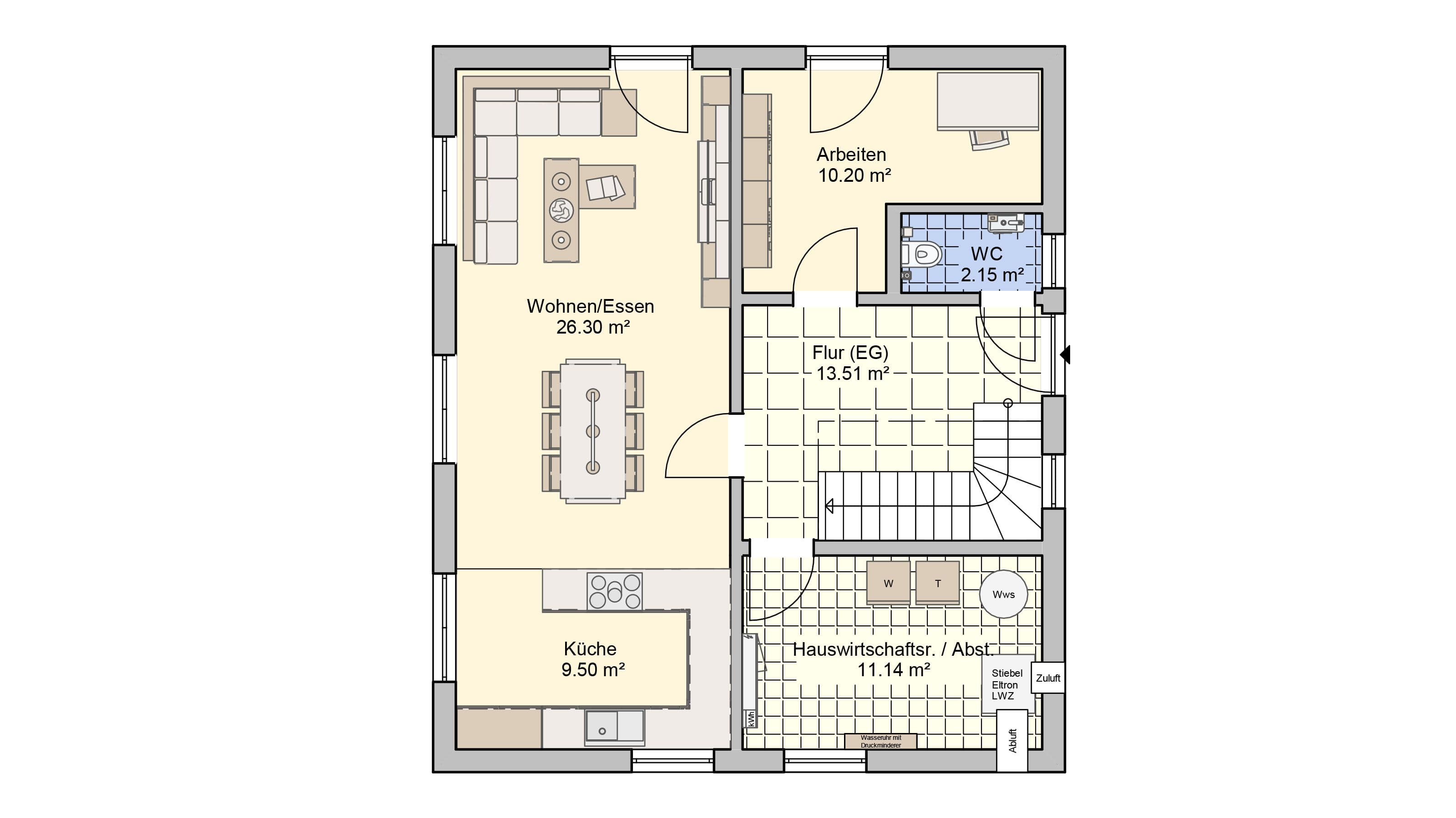
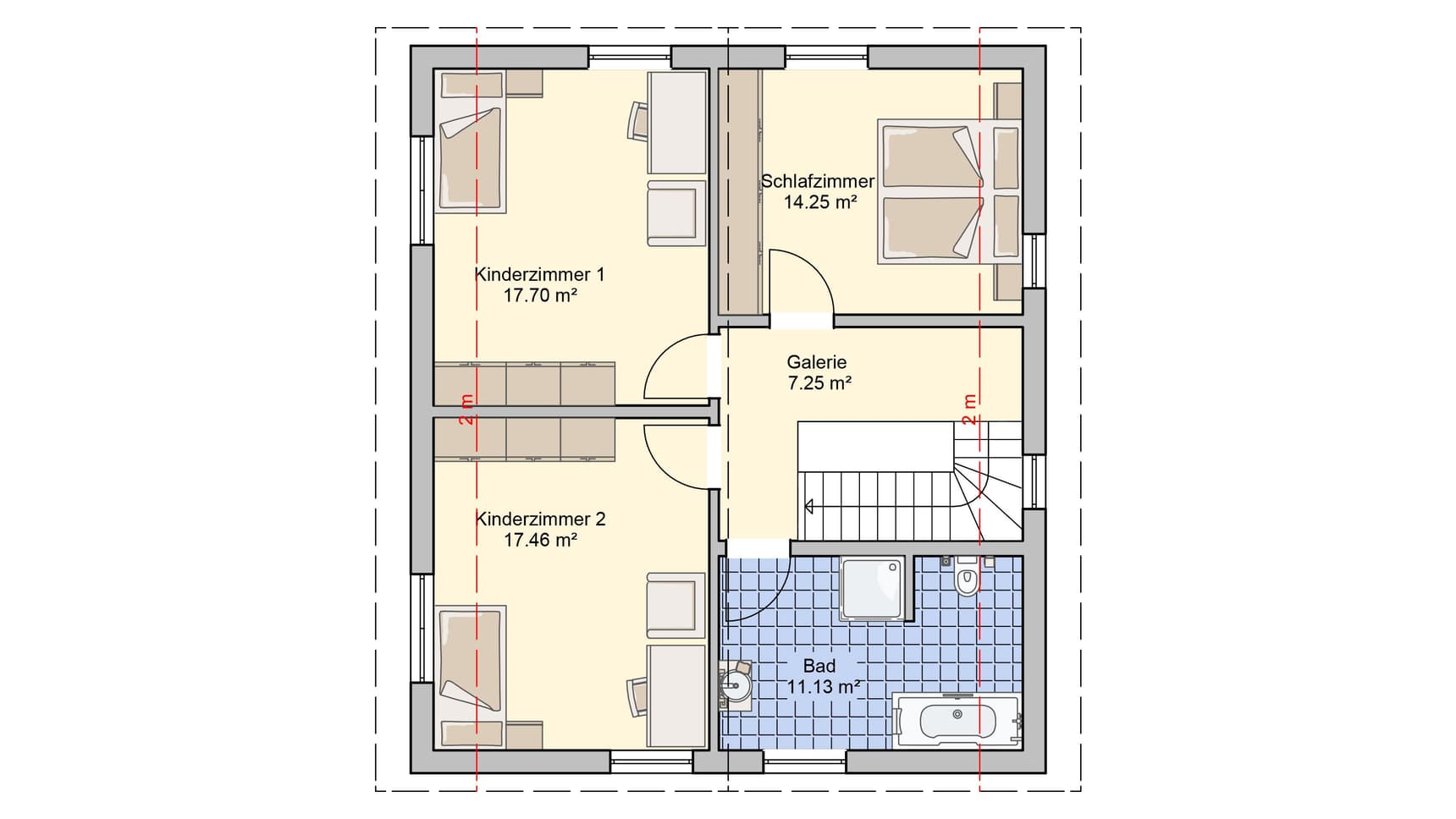
Alle Häuslebauer, die besonderen Wert auf einen von Profihand gestalteten Innenraum legen, werden dieses Modell sofort in ihr Herz schließen. Im Erdgeschoss überzeugt „Oslo“ mit einer sinnvollen Kombination aus Wohnen und Arbeiten. Das Bürozimmer dient als Rückzugsort für konzentriertes Schaffen in den eigenen vier Wänden, kann bei Bedarf aber auch zu einem Gästezimmer umfunktioniert werden. Der Wohn- und Essbereich des Hauses bietet viel Platz und besticht durch eine integrierte Küche. Im zweiten Stock laden die nebeneinander liegenden Kinderzimmer sowie das Schlafzimmer der Eltern zum Träumen ein. Das Familienbad bildet die Basis für entspannende Aufenthalte in der Badewanne sowie erfrischendes Duschen und macht das Modell zum perfekten Domizil für Jung und Alt.

