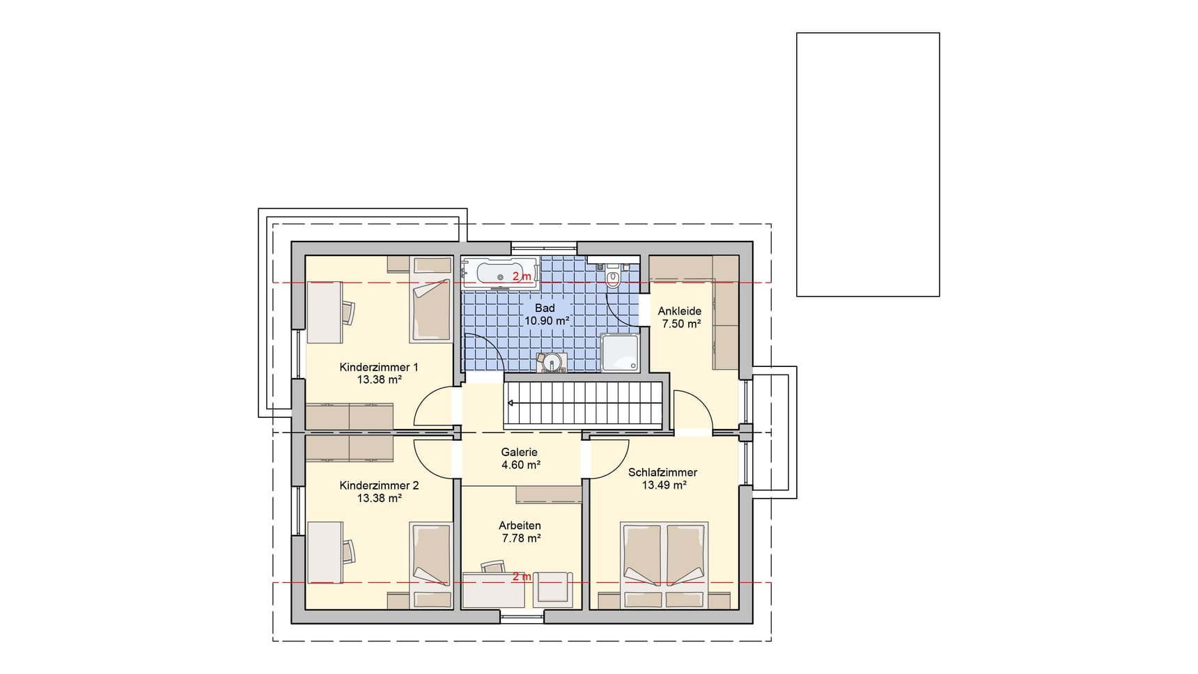
Ein echtes Raumwunder - der erhöhte Kniestock von 1,80 m bietet den Hausbewohnern viel Kopffreiheit. Aufgrund der kompakten Außenmaße ist das Haus Mainz perfekt für schmale Grundstücke. Gerade junge Familien können ihr Leben hier wunderbar planen und trotzdem alle Optionen offen halten. So finden sich im Dachgeschoss zwei Kinderzimmer, sowie ein Arbeitszimmer und das Elternschlafzimmer.
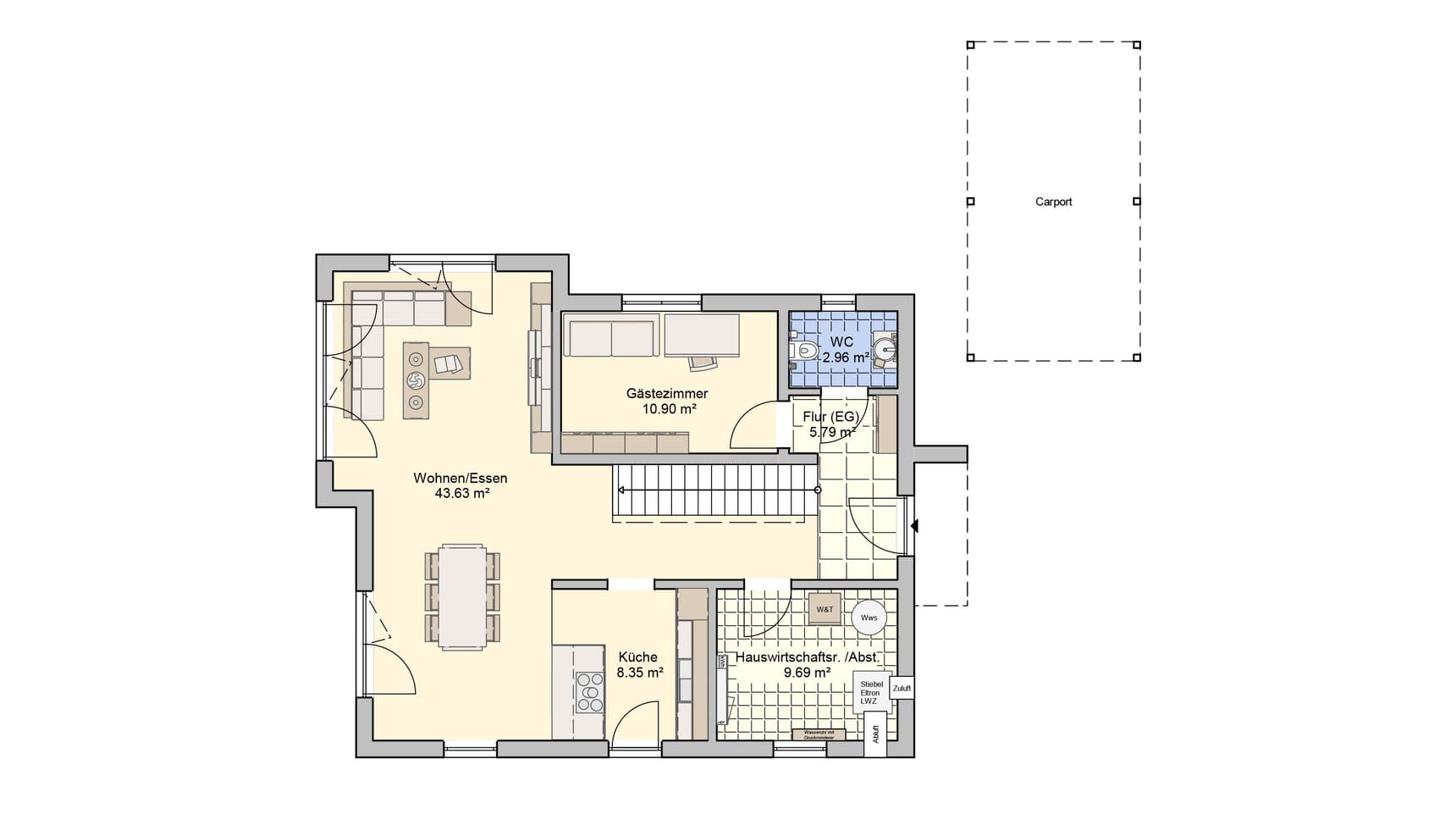
Im Erdgeschoss sind neben dem offenen Wohn-, Ess- und Kochbereich noch das Gäste-WC und ein Hauswirtschaftsraum sowie ein Gästezimmer eingeplant. Auch dieses lässt sich schnell zu einem Kinderzimmer um planen. Für optimalen Lichteinfall sorgen die bodentiefen, doppelflügeligen Fensterelemente.

