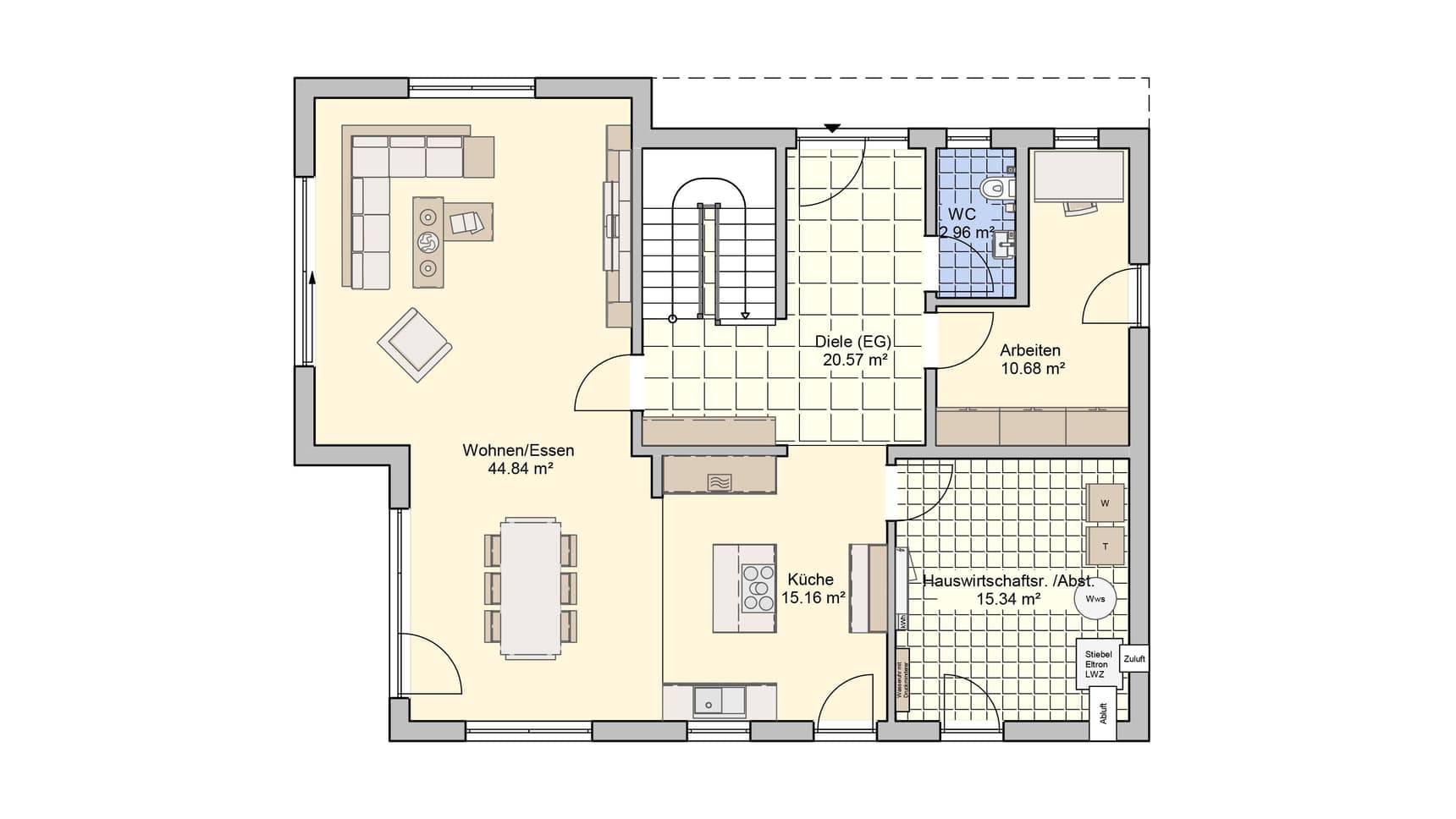
Das Flachdachhaus Freiburg überzeugt als Kubus mit individuellen Anbauten und integrierter Garage. Die moderne Holzverschalung auf Front- und Rückseite sowie der zurückgesetzte, überdachte Eingangsbereich setzen ein Design-Statement. Die klar strukturierte, mondäne Grundriss-Aufteilung – inklusive Arbeitszimmer im EG – bietet viel Freiraum auf beiden Wohnebenen und besonders der Wohn-/Essbereich im Erdgeschoss überzeugt durch viel Offenheit. Wohlfühlfaktor auf allen Ebenen: Im Obergeschoss mit Galerie werden zwei großzügige Kinderzimmer mit eigenem Bad dezent und funktional vom Eltern-Bereich mit großer, komfortabler Ankleide und Wellness-Bad getrennt.

