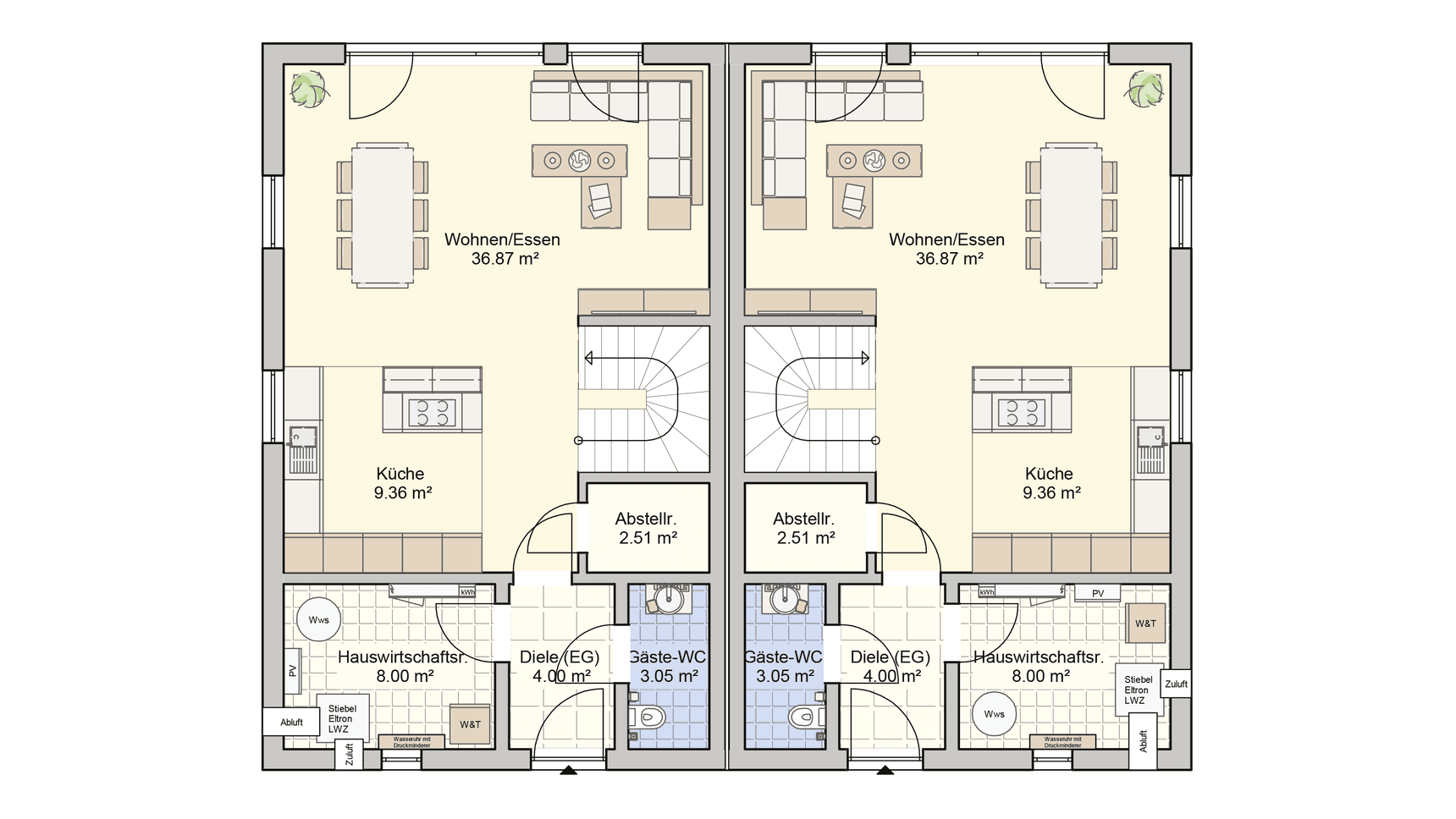
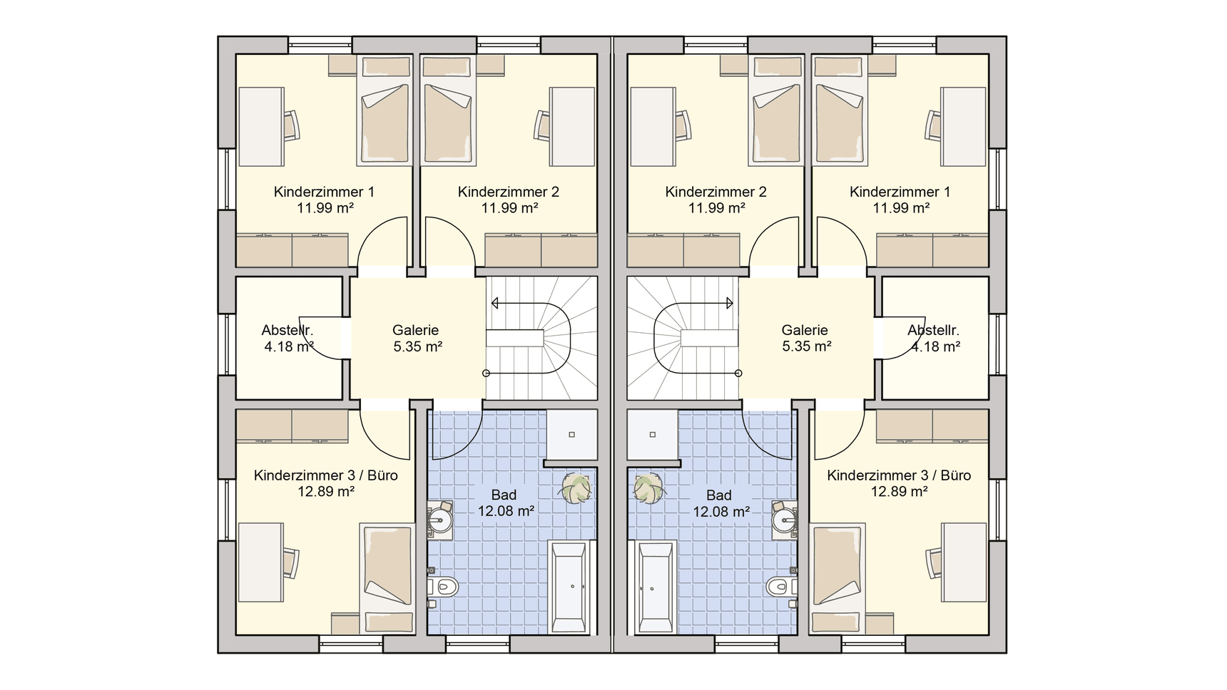
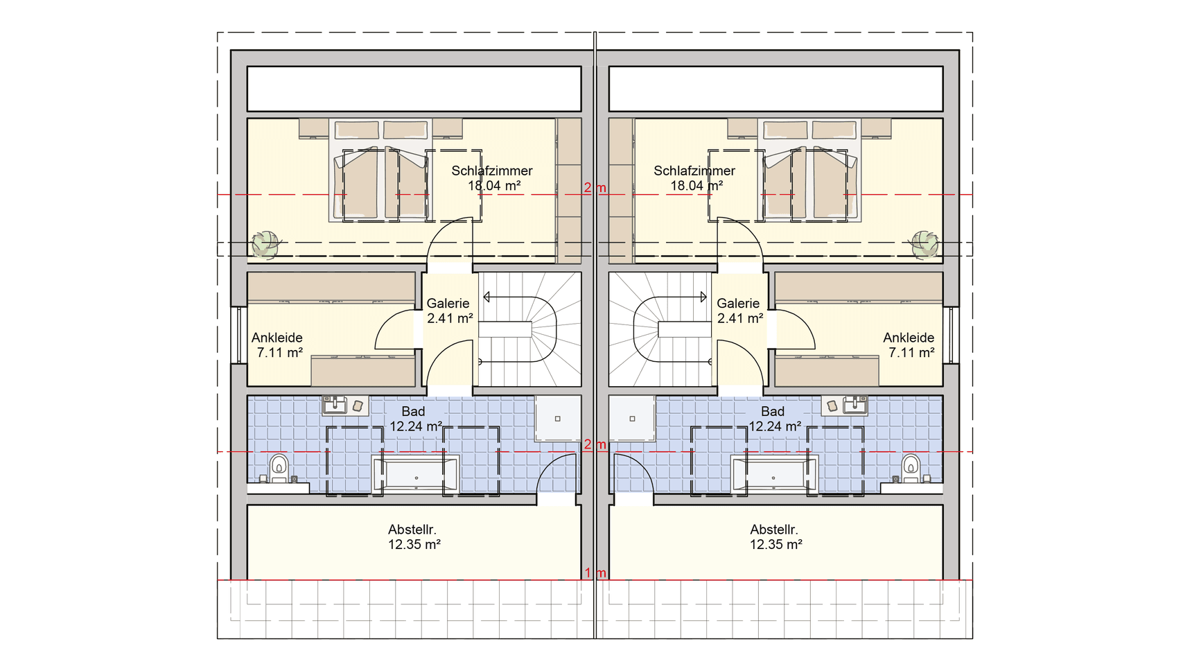
In dem exklusivem Duett 175 dreht sich alles um die Zahl 3: Platz auf drei Ebenen für eine Familie mit bis zu drei Kindern. Ein Trio unschlagbarer Vorteile: Individualität, Exklusivität und Modernität. Bereits das Entrée des Hauses lässt die Freiräume erkennen, die sich hier eröffnen. Das klar strukturierte Erdgeschoss bringt den großzügig angelegten Wohn, Ess- und separaten Küchenbereich in Einklang. Dusche/WC, der Abstellraum und der Hauswirtschaftsraum runden das hochwertig ausgestattete Erdgeschoss ab. Die Wohnqualität setzt sich im Ober- und Dachgeschoss nahtlos fort. An die Galerie im Obergeschoss grenzen drei mögliche Kinderzimmer (alternativ Raum für Home Office) - ebenso wie das12 m² große Bad. Der Abstellraum bietet zusätzlichen Stauraum. Im Dachgeschoss - die exklusive Penthouse-Etage präsentiert sich ein optimales Refugium für die Eltern. Ein komfortables Schlafzimmer mit geräumiger angrenzender Ankleide. Das gegenüberliegende exklusive Bad sorgt für Wellnessfeeling.
Hinweis: dieses Haus hat ein versetztes Pultdach mit einer Neigung von 22° und 16 °, sowie einen Kniestock von 1,00 m und 1,50 m


