Das Duett 114 punktet bei seinen Bewohnern gleich doppelt:
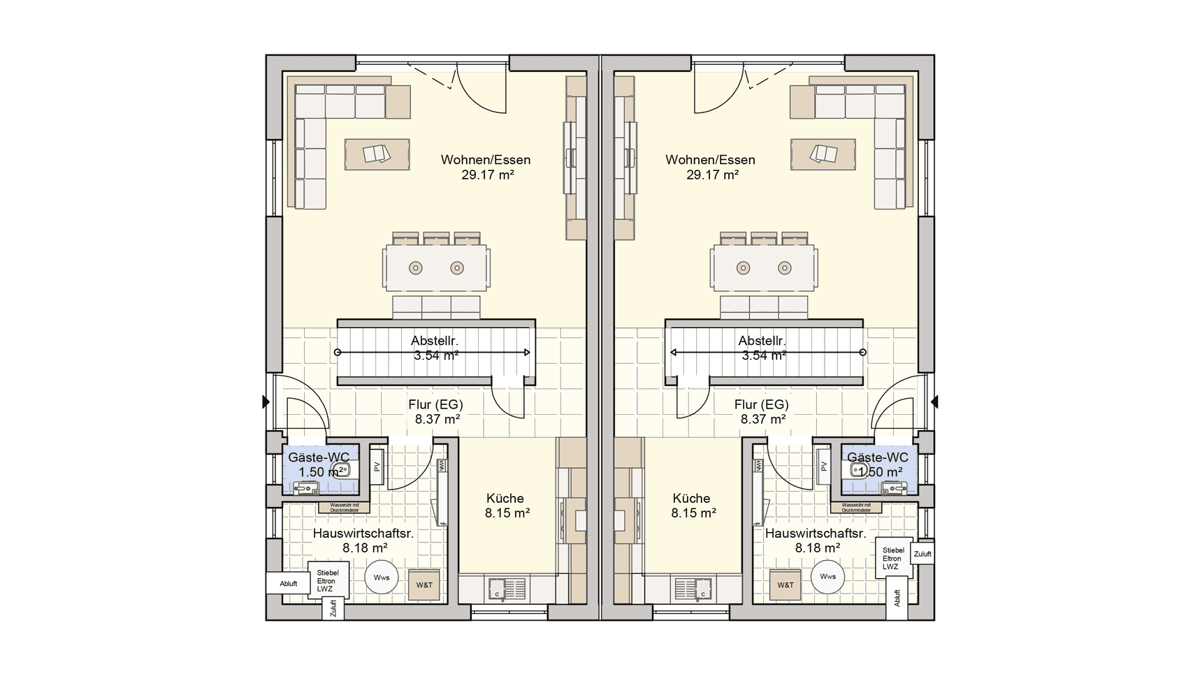
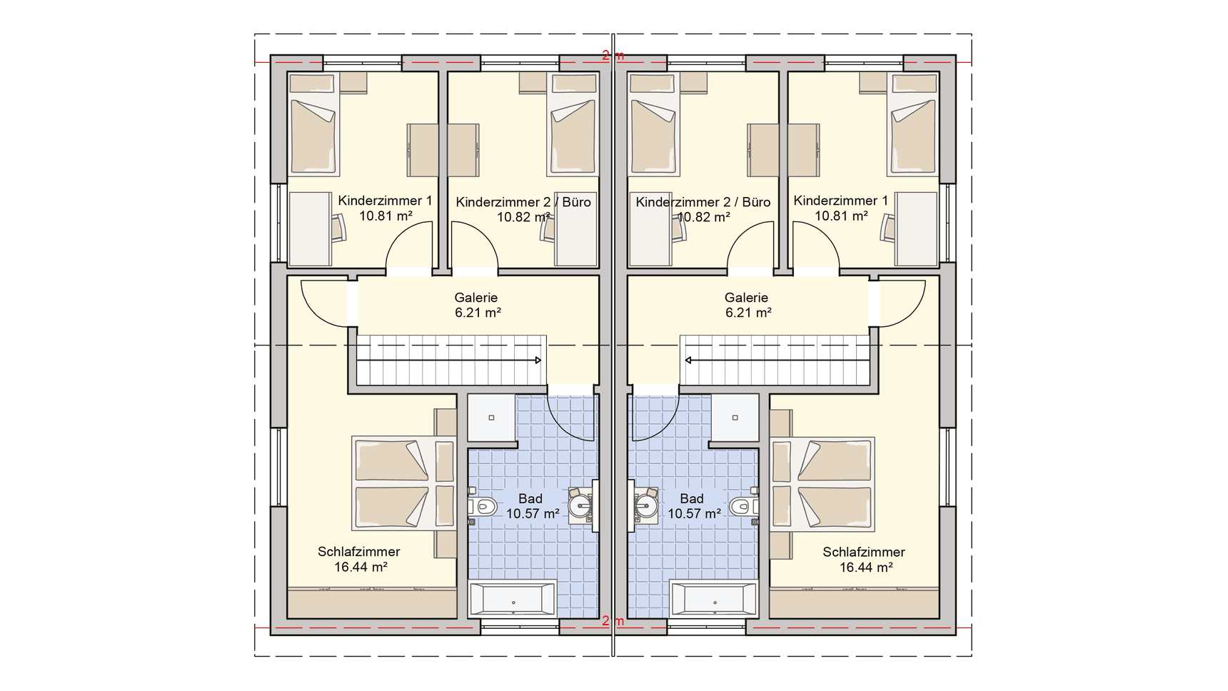
Der Hausentwurf Duett 114 bietet Raum für Freiheit auf jeweils zwei Etagen. Herzstück des Hauses ist der offene Wohn- und Essbereich. Bodentiefe Fenster bringen natürliches Licht in den Raum und lassen die gesamte Etage noch weitläufiger wirken. Im Dachgeschoss ist Platz für jeweils 2 zusätzliche Zimmer. Außerdem ein Schlafzimmer und ein Badezimmer.

