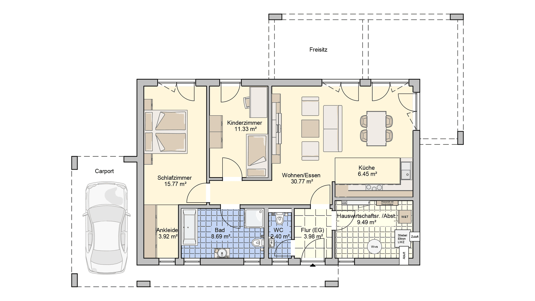
Der geradlinige Bungalow ermöglicht modernes und praktisches Wohnen auf einer Ebene. Der durchdachte Grundriss und die moderne Architektur sorgen für ein gelungenes Gesamtpaket. Vom Eingangsbereich des Hauses aus, gelangen Bewohner und Besucher in den großen Wohn- und Essbereich mit integrierter Küche. Die großzügige Terrasse lädt zu einem Barbecue oder Sonnenbad an warmen Tagen ein. Vom Flur aus sind der Schlafbereich mit anschließender Ankleide und einem große Badezimmer zu erreichen. Ein zusätzlicher Raum kann beispielsweise als Arbeitszimmer, Hobbyraum oder Kinderzimmer genutzt werden. Die Terrasse ist vom Wohn- und Essbereich durch große Fenstertüren aus zu erreichen und rundet das Gesamtbild des Hauses perfekt ab.
