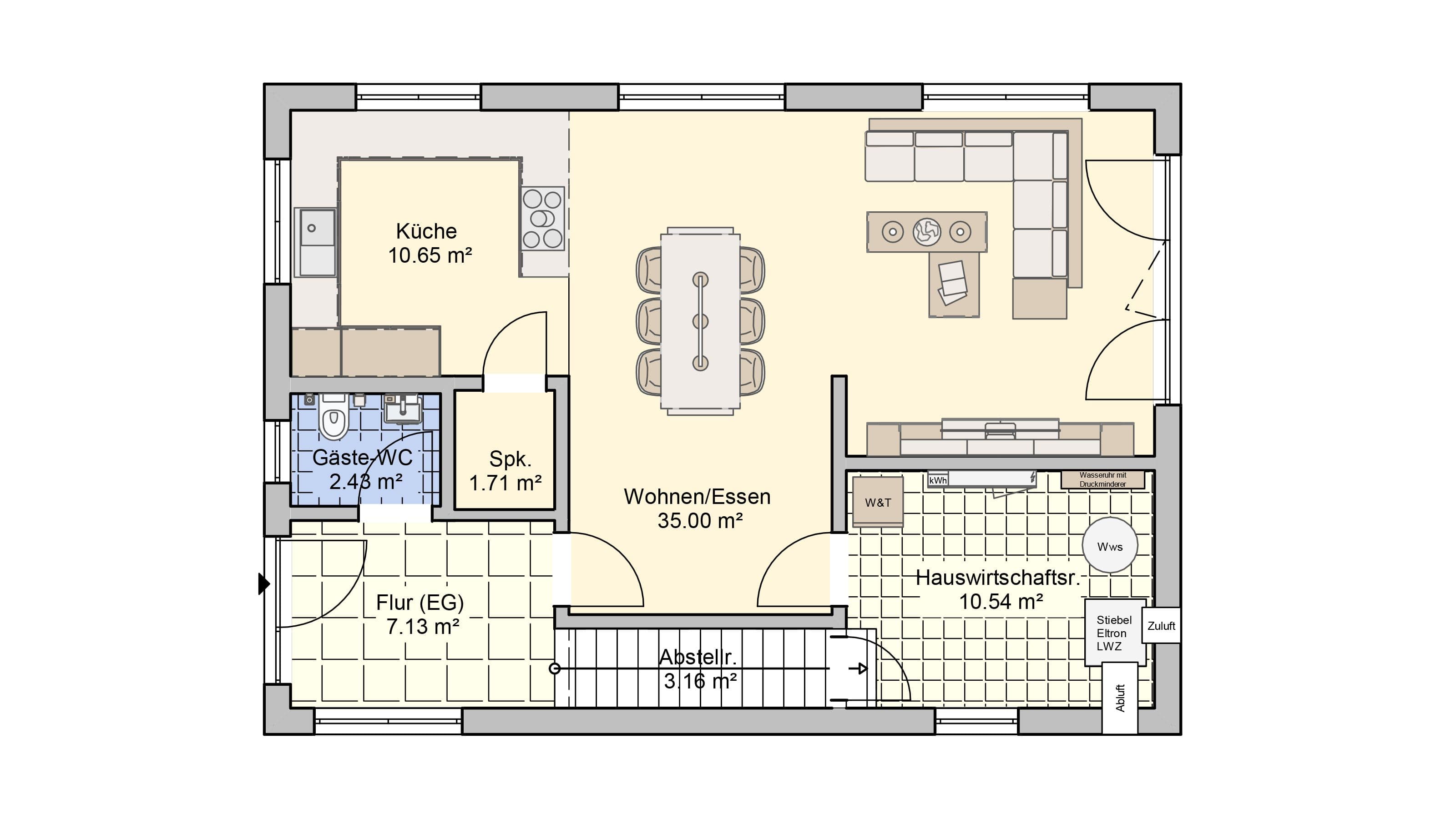
Unser Haus Dublin wurde für Wohnansprüche moderner Häuslebauer konzipiert. Der offen geplante Wohn-, Koch- und Essbereich erstreckt sich im Erdgeschoss über knapp 47m². Die bodentiefen Fenster und Fenstertüren verstärken die weitläufige Optik des Raumes. Neben dem großen Wohnbereich sind im Erdgeschoss der Hauswirtschaftsraum, das Gäste-WC und eine praktische Abstellkammer neben der Küche. Der Raum unter der Treppe kann praktisch als Abstellraum genutzt werde, so geht kein Wohnraum verloren. Im Dachgeschoss gelangt man von der Galerie in das Büro und das große Badezimmer. Ebenso in beide Kinderzimmer und das Schlafzimmer. Die Zimmer sind jeweils mit großen Fenstern versehen, sodass auch hier alle Räume mit Licht durchflutet werden können.

